Prodej bytu 1+1 • 30 m² bez realitkyMainz Marienborn Hessen 55127
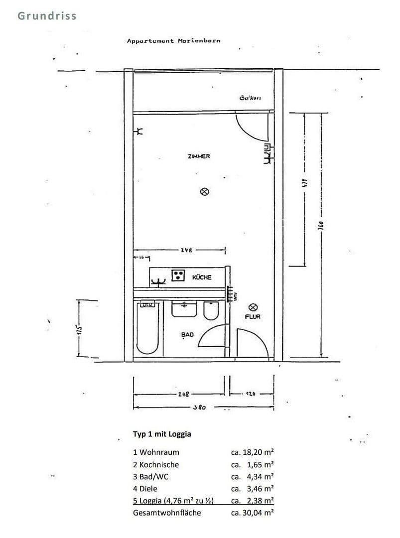
Mainz Marienborn Hessen 55127MHD 3 minuty pěšky • VýtahNa prodej je zcela čerstvě zrekonstruovaný a plně zařízený designerský apartmán s jednou místností v Mainzu. Byt se rozkládá na přibližně 30 m² a je skvělý jak jako studentské bydlení, tak i pro dojíždějící, kteří nechtějí slevit na designu ani na komfortu bydlení. Díky atraktivní lokaci a promyšlenému uspořádání místností si tento byt získá i nadále vysokou poptávku u zájemců o pronájem – výhodná investice s dlouhodobou hodnotovou stabilitou.
Byt byl zrekonstruován a zařízen v moderním, kvalitním stylu a je ihned k nastěhování či pronájmu připraven. Díky jasnému a promyšlenému uspořádání místností se obytná plocha zdá být efektivně využitá; bydlení, spaní a práce lze kombinovat v harmonickém konceptu. Slunečný balkon s výhledem do zeleně se táhne přes celý obytný prostor a zve k posezení.
**Čísla, data, fakta k tvé první investici**
Kupní cena: 145 000 EUR
Čistý nájem: 650 EUR (650 x 12 měsíců = 7 800 EUR ročně)
Poplatky spojené s domem: 198 EUR, z nichž 130 EUR se přenáší na nájemce. Tvůj podíl činí tedy pouze 68 EUR měsíčně, přičemž většina jde do rezervačního fondu.
Nevážeš svou budoucí penzi osudu? Pak nečekej a začni řešit již dnes. Byt není jen opticky atraktivní, ale také se vyplatí!
Bytový komplex přesvědčuje nejen svým upraveným vzhledem, ale také vynikající polohou. Mainz-Marienborn spojuje blízkost města s bydlením v přírodě. Díky dobrému spojení s veřejnou dopravou i dálnicemi směřujícími do oblastí Rýn-Main a Rheinhessen je lokalita obzvlášť atraktivní pro dojíždějící.
Pro milovníky přírody a odpočinku poskytují okolní pole, louky a cyklostezky ideální možnosti, jak si odpočinout a uniknout každodennosti. Zároveň jsou v blízkosti obchody, restaurace a další důležitá zařízení.
– Čerstvě zrekonstruováno a zařízeno – okamžitě k nastěhování nebo pronájmu (již existuje potenciální nájemce)
– Hladce zpracované stěny pro klidné, kvalitní dokončení
– Vysoce kvalitní designová podlaha s parketovým vzhledem
– Nová moderní koupelna se sprchou, černými armaturami a saunovými obklady
– Nová vestavěná kuchyně
– Plné vybavení včetně boxspring postele, skříně (Jutzler), psacího stolu a dalšího nábytku od XXXL-Lutz
– K bytu patří vlastní sklepní oddělení, které je přístupné bez schodů – praktické řešení pro dodatečný úložný prostor
Přímo od vlastníka, bez provize makléře.
V okolí nemovitosti najdete
Stále hledáte to pravé?
Nastavte si hlídacího psa. Nabídky vybrané na míru dostanete souhrnně 1× denně e-mailem. S Premium profilem máte k ruce hlídačů rovnou 5 a když se něco objeví, informují vás obratem.











