Prodej chaty, chalupy 3+1 • 75 m² bez realitky, Mecklenburg-Vorpommern
, Mecklenburg-VorpommernMHD 2 minuty pěškyExkluzivní domácí člun (obytná jachta) s kotvištěm na Usedomu – prémiová rekreační nemovitost
– udržitelný, komfortní, připravený na charteri –
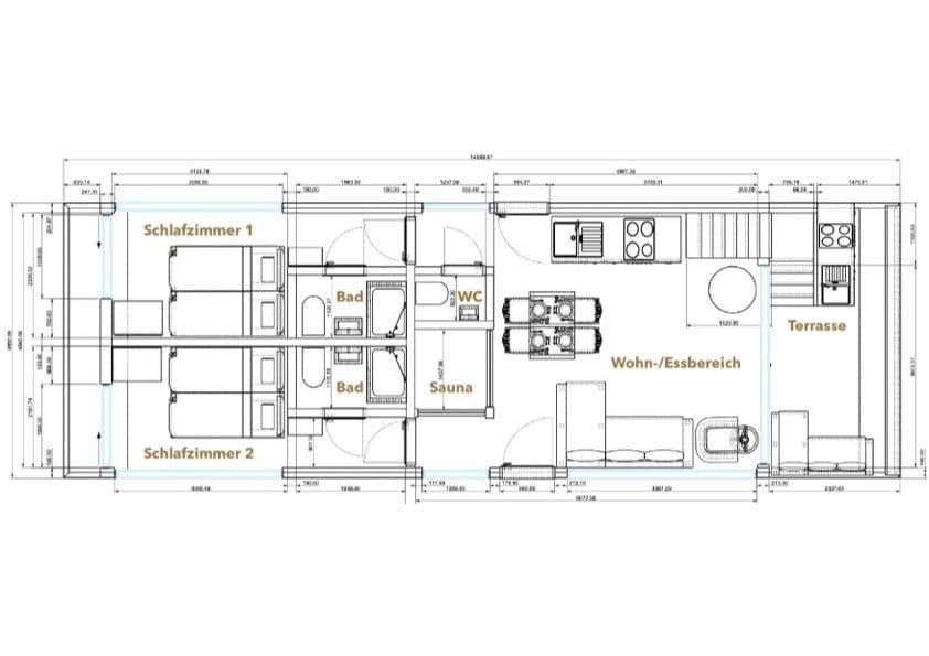
Splňte si sen o životě na vodě: Nabízíme vám vysoce kvalitní ocelovou obytnou jachtu (vyrobeno v Německu) kategorie C (blízko pobřeží) – plně vybavenou pro charteri a ideální pro soukromé využití či profesionální pronájem.
Využijte IAB a dosáhněte velmi vysoké návratnosti.
Máme pro vás připravené atraktivní kotviště na slunečném ostrově Usedomu.
Pronajímatelné kotviště (vhodné pro celoroční charteri trvající 12 měsíců) se nachází ve vnitřní oblasti u nejdelšího německého mola.
Dlouhodobě pronajímatelné (např. na 10 let)
Plně vybavená marina se všemi službami souvisejícími s charteri
Na přání vám zajistíme kompletní servis:
– Marketing a správa rezervací
– Úklid a péče o hosty
– Technická údržba a servis
Hlavní přednosti na první pohled:
• Udržitelný ocelový trup a robustní ocelová konstrukce nadstavby zajišťují celoživotní bezúdržbovou odolnost
• Exkluzivní, odolné interiérové vybavení pro dlouhodobé užívání
• BIO čistírna odpadních vod a úprava pitné vody – samostatná a ekologicky šetrná
• Vytápění a klimatizace s moderní technologií tepelných čerpadel
• Tichý elektrický pohon: 50 kW / 48 V
• Prostorná bateriová zásobárna s vysokou kapacitou
Ideální pro komfortní bydlení, celoroční užívání a charteri provoz
Máte zájem?
Rádi vám zodpovíme vaše dotazy a poskytneme osobní poradenství ohledně vybavení, možností využití a charter konceptů.
Kontaktujte nás – těšíme se na vás!
V okolí nemovitosti najdete
Stále hledáte to pravé?
Nastavte si hlídacího psa. Nabídky vybrané na míru dostanete souhrnně 1× denně e-mailem. S Premium profilem máte k ruce hlídačů rovnou 5 a když se něco objeví, informují vás obratem.










