Pronájem bytu 4+1 • 97 m² bez realitkySchmidtstedter Str. 28 Erfurt Altstadt Thüringen 99084
Schmidtstedter Str. 28 Erfurt Altstadt Thüringen 99084MHD 2 minuty pěškyK pronájmu je nabízena čerstvě zrekonstruovaná 4-pokojová bytová jednotka v 1. patře, vhodná k prvnímu nastěhování. Byt se nachází ve vstupní části historické budovy z dob zakladatelské éry v centru Erfurtu. Pokoje jsou orientovány buď k klidné straně ulice, nebo do vnitřního nádvoří, čímž nabízí dokonalou kombinaci centrálního městského života a klidného odpočinku.
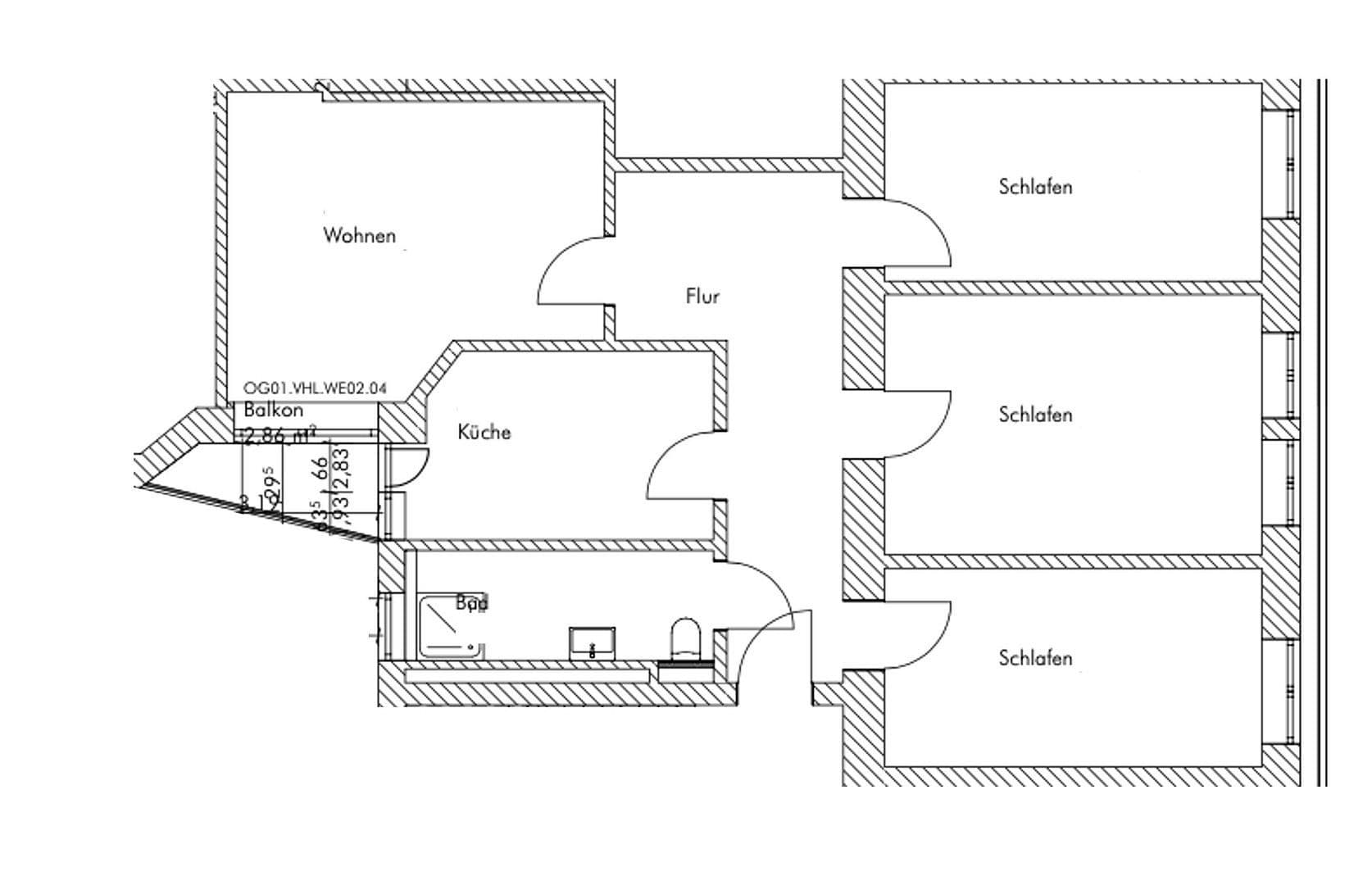
Byt disponuje 3 ložnicemi a jedním obývacím pokojem. Balkon je přístupný z kuchyně. Vysoké stropy historické budovy působí dojmem otevřenosti a dodávají místnostem prostorný pocit.
Moderní koupelna má přirozené denní světlo a je momentálně v rekonstrukci; dokončení je plánováno na konec ledna (včas k prohlídce). Kuchyň může budoucí nájemce navrhnout sám, nebo ji lze na přání za příplatek nechat instalovat. Kuchyň je prostorná, světlá a nabízí místo pro společné vaření a stolování, což je ideální pro rodinu.
Byt se nachází na ulici Schmidtstedter, v centrální části Erfurtu. Hlavní nádraží i náměstí Anger 1 jsou dosažitelné pěšky za pár minut. Poloha nabízí vynikající spojení s veřejnou městskou i dálkovou dopravou a krátkou vzdálenost k obchodům a nabídce centra města, jako jsou kavárny, restaurace, lékárny a ordinace lékařů.
Přestože se byt nachází v centru, je součástí poměrně klidného obytného prostředí. Nedaleký městský park a oblasti podél řeky Gera zve k procházkám nebo k relaxaci v přírodě.
Kuchyň není součástí pronájmu; může být individuálně navržena a instalována budoucím nájemcem, nebo ji lze na přání za příplatek nechat instalovat.
Všechny ostatní místnosti jsou čerstvě zrekonstruovány a připraveny k nastěhování.
K bytu náleží také sklepní místnost ve stejném domě pro další uskladnění.
Prohlídka se předpokládá ve středu 28. 1. 2026.
V okolí nemovitosti najdete
Stále hledáte to pravé?
Nastavte si hlídacího psa. Nabídky vybrané na míru dostanete souhrnně 1× denně e-mailem. S Premium profilem máte k ruce hlídačů rovnou 5 a když se něco objeví, informují vás obratem.






