Pronájem domu 4+1 • 130 m² bez realitkySteinbergstr. 1, , Hessen
Steinbergstr. 1, , HessenMHD 2 minuty pěšky • Parkování • GarážBydlení na jedné úrovni – kompletně zrekonstruováno, energeticky skvělé, s velkou zahradou.
Tento samostatně stojící bungalov (cca 130 m²) je ideální pro páry, které hledají moderní dům – bez stavebního zmatku – a kladou důraz na bydlení na jedné úrovni. Dům byl v roce 2023 kompletně zrekonstruován (druhé nasazení) a je k dispozici od 01.05.2026 (po dohodě případně i dříve).
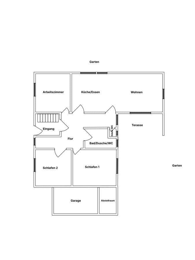
Půdorys je praktický pro každodenní život: otevřený obývací a jídelní kout s kuchyní, dále dvě ložnice a samostatná místnost (perfektní pro domácí kancelář nebo jako pokoj pro hosty). Koupelna se sprchou/WC plus hostinské WC jsou nové a moderní.
Něco, co zaujme mnohé: Z obývacího pokoje máte přímý vstup na velkou terasu – a odtud rovnou do zahrady. Zahrada je dostatečně prostorná pro pohodové večery nebo jiné aktivity.
Kromě toho je dům kompletně podsklepen (pracovna/koníčky/sklad/technika – opravdu hodně místa). Ve dvojité garáži je zahrnuta i studená nájemná částka.
Studený nájem: 1.050 €
Provozní náklady (bez vytápění): 170 €
Náklady na vytápění (tepelné čerpadlo/elektřina): cca 230 €
Kauce: 2.100 €
(Půdorys ukazuje rozložení s obytným prostorem, kuchyní/jídelnou, pracovnou/pokojem pro hosty, ložnicemi 1/2 a přístupem na terasu/se zahradou.)
Prosím, u dotazu stručně uveďte: počet osob, domácí mazlíčky, požadovaný termín nastěhování a vaši pracovní situaci.
Heringen (Werra) – klidná maloměstská lokalita se vším, co potřebujete pro každodenní život. Autobusové linky 330/331 jsou dosažitelné pěšky. V blízkosti najdete venkovní i krytý bazén, tenisová hřiště a krásné cesty v poli a lese. Supermarkety, pekárny, lékaře, kavárny i restaurace jsou přímo na místě.
– cca 130 m² obytné plochy, 813 m² pozemku
– Samostatně stojící bungalov – bydlení na jedné úrovni
– Kompletně zrekonstruováno v roce 2023 (druhé nasazení)
– Otevřený obývací a jídelní kout s kuchyní (kuchyň lze odkoupit od současného nájemce)
– 2 ložnice + pracovna/pokoj pro hosty
– Nová koupelna (sprcha/WC) + hostinské WC
– Velká terasa s přímým přístupem do zahrady
– Okna od podlahy ke stropu / krásný výhled do přírody
– Kompletně podsklepeno (možnost dílny/koníčků/skladu)
– Tepelné čerpadlo (elektřina) + podlahové topení
– Energetická třída B, konečná energetická spotřeba 68,8 kWh/(m²·rok) (potřebový průkaz)
– Dvojitá garáž v ceně
V okolí nemovitosti najdete
Stále hledáte to pravé?
Nastavte si hlídacího psa. Nabídky vybrané na míru dostanete souhrnně 1× denně e-mailem. S Premium profilem máte k ruce hlídačů rovnou 5 a když se něco objeví, informují vás obratem.























