
Pronájem bytu 2+1 • 41 m² bez realitky, Hessen
, HessenMHD 7 minut autemHezký starý dům byl v roce 2025 zrekonstruován. Nové centrální topení pohání vzduchové tepelné čerpadlo (všechny radiátory byly obnoveny). Ohřev teplé vody se zajišťuje pomocí průtokového ohřívače (není zahrnuto v poplatcích za energie). Půvabný dvůr a zahrada.
Dům se nachází na klidné jednosměrné ulici. Za tři minuty chůze se dostanete na Kirdorfer Feld se svými ovocnými sady a přírodní a krajinnou chráněnou oblastí u úpatí pohoří Taunus. Za dvě minuty (o roh) je autobusová zastávka linky 3, která směřuje k lázním a na stanici S-Bahn v Bad Homburgu.
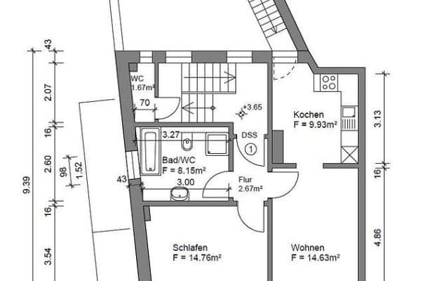
Byt má promyšlený půdorys, je světlý a čerstvě zrekonstruovaný. Všechny místnosti jsou přístupné z chodby. Dále disponuje malou skladovou místností. Ve sklepě se nachází samostatné připojení pro pračku určené pro tento byt. Přes sklápěcí schodiště v chodbovém stropě je pak vstup na nevyhřívaný půdní prostor, který mohou exkluzivně využívat nájemníci podkrovních bytů. O optické připojení (glasové vlákno) již byla podána žádost.
V okolí nemovitosti najdete
Stále hledáte to pravé?
Nastavte si hlídacího psa. Nabídky vybrané na míru dostanete souhrnně 1× denně e-mailem. S Premium profilem máte k ruce hlídačů rovnou 5 a když se něco objeví, informují vás obratem.
























