
Pronájem bytu 3+1 • 93 m² bez realitkyKarl-Marx-Straße 8, , Braniborsko
Novostavba rodinného domu s devíti nájemními byty, bez pražců a s výtahem, dokončeno v roce 2023.
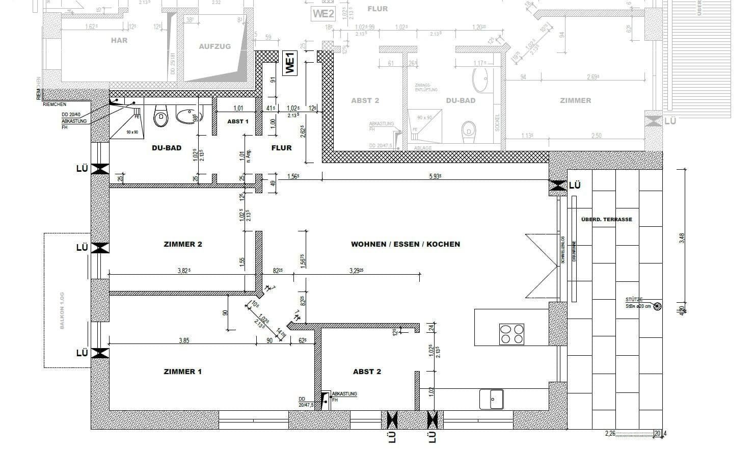
3-pokojový byt se nachází v přízemí a disponuje obytnou plochou 92,60 m², prostornou terasou orientovanou na jihovýchod a zahradou.
Nemovitost je vybavena výtahem, podlahovým vytápěním a chlazením, terasami a balkony a rovněž venkovními parkovacími místy.
Nemovitost byla navržena a postavena jako úsporný dům (KfW 40+) s nejvyšší energetickou účinností.
Tepelná zásoba je zajištěna moderními vzduchovými tepelnými čerpadly, dále je zde fotovoltaická elektrárna s modelem „nájemní spotřeba“ a akumulátorem.
Nemovitost se vyznačuje moderní architekturou s otevřenými dispozicemi a značkovou vestavěnou kuchyní.
Koupelny jsou moderně navrženy s podlahově až k úrovni sprchovým koutem s dešťovou sprchou, velkoformátovými dlaždicemi z porcelánové kameny a značkovým vybavením.
Byty mají kvalitní designovou podlahu.
Byt je k nastěhování.
Hohen Neuendorf patří k okrsku Oberhavel v braniborském státě a leží na severním okraji hlavního města Berlína.
V docházkové vzdálenosti se nachází autobusová linka 822. Regionální destinace jsou díky nedaleké železniční lince RB20 dobře dostupné. Pěšky se dostanete do několika restaurací, pekáren, kaváren, k lékařům a dvou supermarketů. Kromě toho je zde i několik zelených ploch a parků, fitness center, módních obchodů, dvou barů a knihkupectví.
Díky napojení na S1 a S8 přes nádraží Hohen Neuendorf a dobrému připojení na dálnici A111 dojedete jak do City West, tak na Friedrichstraße přibližně za 30 minut.
Impresum
Berlisax Vermögensverwaltungs-GmbH
Birkbuschstr. 91
12167 Berlín
Zastupováno jednoco oprávněným jednatelem:
Thorben Riesen
Kontakt:
Telefon: 030 897 45700
E-mail: info@berlisax.eu
Zápis do rejstříku:
Zapsáno u rejstříkového soudu: Amtsgericht Charlottenburg
Registrační číslo: HRB 202341
V okolí nemovitosti najdete
Stále hledáte to pravé?
Nastavte si hlídacího psa. Nabídky vybrané na míru dostanete souhrnně 1× denně e-mailem. S Premium profilem máte k ruce hlídačů rovnou 5 a když se něco objeví, informují vás obratem.

















