Prodej domu • 443 m² bez realitkyOttobeurer Straße 17, , Bavorsko
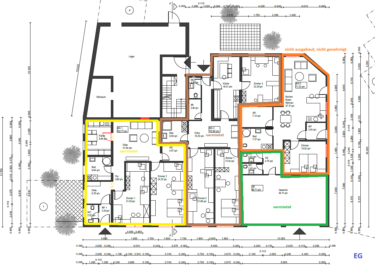
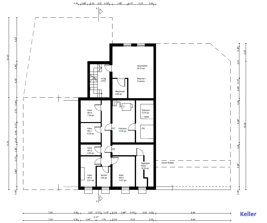
Ottobeurer Straße 17, , BavorskoMHD 2 minuty pěškyTento bytový dům (pravděpodobně z roku 1900; přístavba z roku 1990) s pěti obytnými jednotkami a jednou pronajatou obchodní jednotkou představuje atraktivní investiční příležitost s průběžným cashflow a značným rozvojovým potenciálem.
V současnosti jsou čtyři byty pronajaty, jedna jednotka je neobsazená (z nichž jedna je k dispozici od února). Současný roční nájem bez režijních nákladů činí přibližně 43 000 € a již nabízí solidní základní výnos.
Hlavním lákadlem pro investory je nezávazně odhadovaná výstavbová rezerva o rozloze přibližně 350 m², která – s předpokladem úředních povolení – umožňuje vytvoření dalších obytných jednotek a tím výrazné zvýšení příjmů z nájmu i hodnoty nemovitosti.
Nemovitost je ideální jak pro strategie buy-and-hold se zaměřením na dlouhodobý cashflow, tak i pro koncepty fix-and-flip s jasnou exit strategií.
Cílenými rekonstrukčními a optimalizačními opatřeními lze krátkodobě zvýšit a dlouhodobě rozvíjet stávající výnosový potenciál. Stavební stav je celkově solidní, částečně je možný okamžitý vstup do užívání, nicméně je třeba provést rekonstrukce, což aktivním investorům poskytuje prostor pro tvorbu hodnoty.
Okna jsou částečně plastová s dvojsklem, částečně dřevěná. Ústřední topný systém byl v roce 2018 obnoven a tvoří dobrou technickou základnu.
Zobrazené půdorysy na fotografiích slouží pouze jako nezávazný návrh.
Celkově se jedná o nemovitost s rozvojovým potenciálem, která generuje průběžné příjmy, má volné prostory k okamžité optimalizaci a značnou výstavbovou rezervu – ideální pro investory s vizí a představivostí.
Nemovitost se nachází v centrální lokalitě Markt Rettenbach (87733). Všechny zařízení pro každodenní potřeby, jako pekárna, řeznictví, obchod s potravinami, lékař, banka, mateřská škola a autobusová zastávka, jsou pohodlně dostupné pěšky.
Zároveň se během několika minut dostanete do zeleně a můžete si užívat klidného, venkovského prostředí Allgäus.
Blízkost Ottobeuren a umístění mezi Kemptenem, Memmingenem a Mindelheimem činí lokalitu zvláště atraktivní. Dálnice A96 je snadno dostupná a zajišťuje dobré regionální i nadregionální napojení.
Dům má balkony orientované na jih, což zajišťuje hojnost slunečního světla a příjemnou obytnou atmosféru.
Vezměte prosím na vědomí, že doba odpovědi může trvat přibližně 2 dny. Rádi se domluvíme na termínu prohlídky.
Parametry nemovitosti
| Stáří | Nad 50 let |
|---|---|
| Stav | Před rekonstrukcí |
| PENB | F - Velmi nehospodárná |
| Plocha pozemku | 1 079 m² |
| Dostupné od | 27. 1. 2026 |
|---|---|
| Číslo inzerátu | 984212 |
| Užitná plocha | 443 m² |
| Cena za jednotku | 1 916 € / m2 |
Co tato nemovitost nabízí?
| Balkón | |
| Terasa |
| Sklep | |
| MHD 2 minuty pěšky |
V okolí nemovitosti najdete
Stále hledáte to pravé?
Nastavte si hlídacího psa. Nabídky vybrané na míru dostanete souhrnně 1× denně e-mailem. S Premium profilem máte k ruce hlídačů rovnou 5 a když se něco objeví, informují vás obratem.





































