
Pronájem bytu 4+1 • 99 m² bez realitkyJahnstr. 7 Osnabrück Osnabrück Niedersachsen 49078
Jahnstr. 7 Osnabrück Osnabrück Niedersachsen 49078MHD 1 minuta pěškyKonečně prostor pro Vaše sny: Zažijte opravdový pocit z novostavby na přibližně 98 m² v nádherném historickém domě v centrální lokalitě!
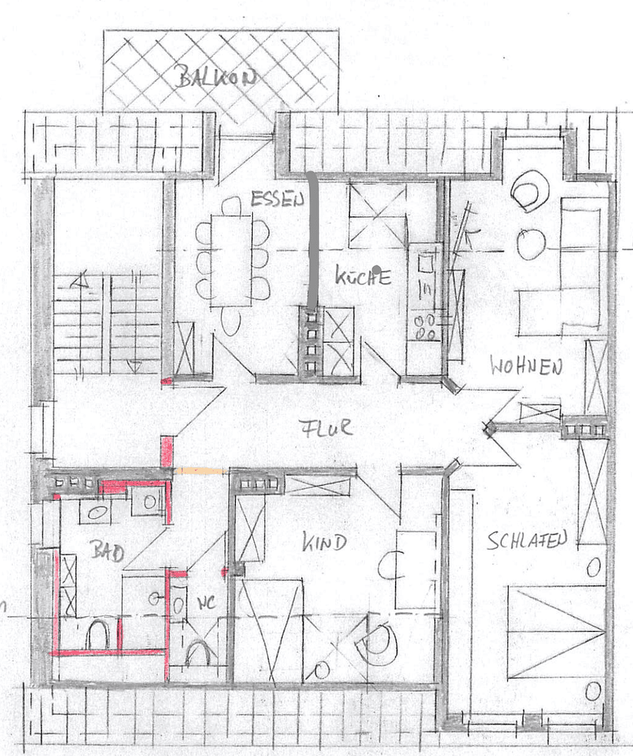
Tato čerstvě zrekonstruovaná podkrovní část (první nastěhování!) Vám nabízí 4 světlé pokoje, 1 moderní koupelnu s otevřeným sprchovým koutem, prostorné hostinské WC a jako naprostý vrchol 10 m² velký balkon.
Skvěle zatepleno a okamžitě k zamilování.
Zažijte moderní bydlení na nové úrovni. Tato čerstvě zrekonstruovaná podkrovní bytová jednotka v centrální části Osnabrücku (Jahnstraße 7) Vám na přibližně 96 m² poskytuje čistý pocit z novostavby v vyspělém prostředí.
Kdo se sem nastěhuje, má rád výjimečnost: Všechno v tomto bytě je nové. Od elegantního designového podlahového krytu, přes moderné obklady ve dvou koupelnách (hlavní koupelna + hostinské WC) až po pečlivou izolaci podle aktuálních energetických standardů. Bydlíte úplně nahoře, užíváte si klid a soukromí, aniž byste se vzdali výhod městské lokace.
Dispozice bytu je chytrě promyšlená: Čtyři pokoje Vám dávají flexibilitu pro spaní, práci i pohostinnost. Velká, nová okna přivádějí spoustu světla a zdůrazňují otevřený charakter prostoru.
"Wow faktor": Váš nový venkovní prostor. Impozantní balkon o rozloze 10 m² (dokončení v březnu) rozšiřuje Váš obytný prostor ven. Ať už jde o lounge nábytek nebo jídelní stůl – zde máte prostor pro Vaše soukromé místo na čerstvém vzduchu.
Vzácná příležitost pro náročné, kteří hledají něco výjimečného.
Lokalita:
Jahnstraße patří mezi velmi žádané a centrální rezidenční lokality Osnabrücku. Obchody, veřejná doprava, školy, lékaři i centrum města jsou dostupné pěšky nebo za několik minut.
V okolí nemovitosti najdete
Stále hledáte to pravé?
Nastavte si hlídacího psa. Nabídky vybrané na míru dostanete souhrnně 1× denně e-mailem. S Premium profilem máte k ruce hlídačů rovnou 5 a když se něco objeví, informují vás obratem.









