Pronájem bytu 5+1 • 140 m² bez realitky, Mecklenburg-Vorpommern
, Mecklenburg-VorpommernMHD 1 minuta pěšky • Výtah • ParkováníModerní maisonette byt v Greifswaldu
Tento výjimečný pětirpokojový byt v domě s energetickou efektivitou KfW 40 a certifikací „Udržitelná budova Plus“ se nachází v klidné a přesto centrální obytné lokalitě na okraji historického centra Greifswaldu. Vyznačuje se prvotřídní výbavou.
Maisonetta se rozprostírá ve 2. a 3. patře klimaticky šetrného vícebytového domu. Budova je vybavena inteligentním konceptem energetického managementu, který zahrnuje fotovoltaickou elektrárnu a dálkové vytápění. Byt je opatřen podlahovým topením a kvalitními, bezškodlivými materiály od renomovaných výrobců. K bytu vede výtah.
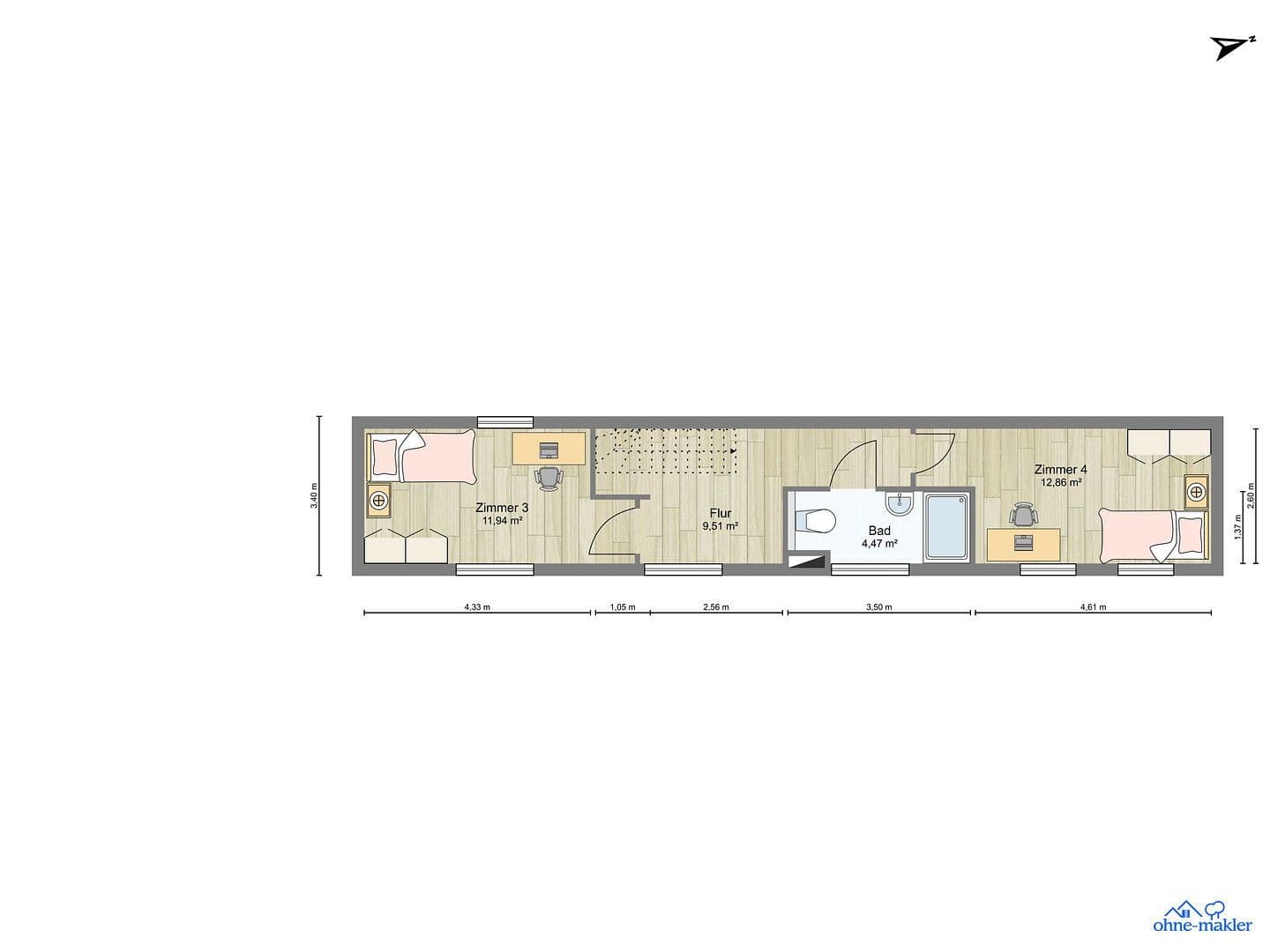
Tento pětirpokojový maisonette byt disponuje prostorným balkonem orientovaným na severovýchod směřujícím do zadního dvora. Nabízí čtyři ložnice, hostinské WC, dvě kompletní koupelny – jedna s vanou – a samostatný technický prostor s připojením pro pračku přímo v bytě. K bytu náleží také sklepní kóje. Pronájem probíhá bez kuchyně. Za předchozí domluvu je však možné individuálně zařídit instalaci moderní kuchyně s elektrospotřebiči.
Dále je možno volitelně pronajmout až dvě parkovací místa přímo ve vnitrodomě. Pro elektromobily jsou k dispozici nabíjecí stanice.
Byt se nachází v jedné z nejžádanějších lokalit Greifswaldu – v historické Fleischervorstadt. Tato čtvrť je známá svým půvabným historickým prostředím a uvolněnou, téměř městskou atmosférou přímo v srdci města.
Historické centrum s tržištěm, četnými kavárnami, restauracemi a obchody je dosažitelné pěšky během méně než 10 minut.
Instituty Univerzity v Greifswaldu, stejně jako univerzitní knihovna a univerzitní lékařská fakulta, se nacházejí v bezprostřední blízkosti.
Supermarkety, pekárny, školy a lékárny jsou v bezprostředním okolí. Díky blízkosti nádraží (cca 8 minut pěšky) je zajištěno také vynikající spojení s veřejnou dopravou.
Oblíbená obytná čtvrť je umístěná v klidné a půvabné vedlejší ulici, aniž byste se museli vzdát výhod života přímo v centru Greifswaldu.
- První kolaudace od 1. června 2026
- Koncept energetického managementu s fotovoltaickou elektrárnou a dálkovým vytápěním
- Výtah
- Nabíjecí stanice pro elektromobily
- Připraveno na připojení optickou kabelovou sítí
- Kvalitní podlahové krytiny od německého značkového výrobce Parador
- Keramické dlaždice ve koupelnách
- Koupelnové vybavení renomovaných výrobců jako Grohe a Geberit
- Vybavení zahrnuje hostinské WC a dvě koupelny, každá s bezbariérovou přístupovou sprchou, přičemž jedna koupelna je navíc kompletně zařízená s vanou
- Hladce opracované stěny s difuzně otevřeným nátěrem minerální barvou
- Soukromá parkovací místa přímo ve vnitrodomě
- Prostorný balkon
- Sklepní kóje
- Možnost využití společného prostoru pro kola
Pronájem probíhá přímo od vlastníka, bez makléřských poplatků.
Minimální doba nájmu je 18 měsíců.
Prohlídky probíhají na dotaz.
V okolí nemovitosti najdete
Stále hledáte to pravé?
Nastavte si hlídacího psa. Nabídky vybrané na míru dostanete souhrnně 1× denně e-mailem. S Premium profilem máte k ruce hlídačů rovnou 5 a když se něco objeví, informují vás obratem.


