Pronájem kanceláře • 133 m² bez realitkyDopplergasse 5 Wien 11. Bezirk Wien 1110
Dopplergasse 5 Wien 11. Bezirk Wien 1110MHD 4 minuty pěškyK pronájmu se nabízí světlá a všestranně využitelná kancelářská plocha na adrese Dopplergasse 5, 1110 Vídeň. Nemovitost nabízí příjemné pracovní prostředí, dobré světelné podmínky a flexibilní možnosti využití.
Hlavní nájemné: € 1.314,00
Provozní náklady: € 243,88
Příspěvek na kauci: € -9,50
Náklady na výtah: € 34,30
Čistý nájem: € 1.582,68
HRUBÉ NÁJEMNÉ: € 1.899,22
Kauce: € 5.700,00
Poplatky finančního úřadu: € 683,72
Nabídka byla vytvořena za předpokladu, že nájemce je plně povinen k odvádění DPH.
Upozorňujeme, že mezi pronajímatelem a makléřem existuje ekonomická úzká souvislost.
Prostory se nacházejí v 1. obvodu, na vedlejší ulici Simmeringer Hauptstraße.
Dopravní spojení v bezprostředním okolí:
U3 Zippererstraße
Tramvajové linky 71, D Molitorgasse
Noční autobusová linka N71
V okruhu 10 minut chůze naleznete kromě drobných místních provozoven řadu nákupních možností, jako jsou např. BILLA, LIDL, HOFER, SPAR, OBI, …
Rozložení prostor:
Přízemí
Předprostory
WC
Čajovna
Velký prostor
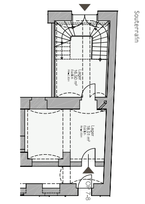
Suterén
2 skladové prostory
Parametry nemovitosti
| Dostupné od | 2. 2. 2026 |
|---|---|
| Plocha kanceláře | 133 m² |
| Číslo inzerátu | 984244 |
|---|---|
| Cena za jednotku | 10 € / m2 |
Co tato nemovitost nabízí?
| MHD 4 minuty pěšky |
V okolí nemovitosti najdete
Stále hledáte to pravé?
Nastavte si hlídacího psa. Nabídky vybrané na míru dostanete souhrnně 1× denně e-mailem. S Premium profilem máte k ruce hlídačů rovnou 5 a když se něco objeví, informují vás obratem.



















