Prodej domu 5+1 • 134 m² bez realitky, Hessen
, HessenMHD 3 minuty pěškyTato polovina dvojdomu ve fachwerkovém stylu z období kolem roku 1900 se nachází uprostřed historického centra Dietzenbachu a nabízí ihned nastěhovatelný, pečlivě udržovaný a přitom cenově dostupný obytný prostor v zavedené atmosféře.
K dispozici je domov o přibližně 134 m² obytné plochy s aktuálně pěti pokoji, který lze okamžitě využívat a zároveň nabízí prostor pro individuální úpravy.
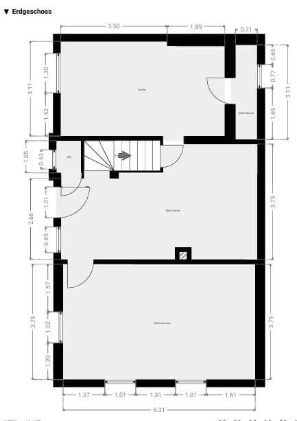
Významným prvkem domu je prostorná kuchyň spojená s obývacím prostorem a vybavená spižírnou, která poskytuje dostatek místa pro společné vaření, stolování a setkávání, čímž příjemně strukturuje každodenní život.
Na kuchyni navazuje velká otevřená jídelna s keramickým krbem.
Přízemí je dále doplněno velkým, světlým obývacím pokojem, který nabízí otevřenou a přátelskou kvalitu bydlení.
V prvním patře se momentálně nacházejí tři ložnice a koupelna s vanou.
S minimálním úsilím lze na tomto patře ještě vyčlenit čtvrtý pokoj – například pro home office, hosty nebo jako další ložnici; což představuje skutečnou přidanou hodnotu pro různé životní situace.
Typická struktura historického domu dodává místnostem charakter a vytváří klidný pocit z bydlení. Přírodní pískovecový sklep odpovídá původnímu využití těchto historických budov a je ideální pro skladování zásob nebo nápojů.
Dále vám prostorný půdní prostor nabízí potřebný velký úložný prostor a další možnosti přestavby pro obytné prostory.
Terasa umístěná ve dvoře doplňuje dům jako malé útočiště na čerstvém vzduchu.
Tato nemovitost je určena kupcům, kteří oceňují umístění v historickém centru, historii a okamžitou použitelnost, a kteří hledají domov, jenž zůstává cenově dostupný, ale zároveň má svou osobnost.
Další (finanční) výhodou je, že obě poloviny dvojdomu tvoří společenství vlastníků, například v souvislosti s pozemkem a inženýrskými sítěmi. K dispozici je prohlášení o rozdělení, o kterém se rádi pobavíme osobně.
Ještě jedna poznámka k energetickému štítku: Vzhledem k roku výstavby se jedná o štítek určený dle potřeby. Poslední roční rozúčtování za rok 2024 vykazuje náklady na plyn pouhých 830 € za celý rok!
Prosím, neváhejte nás kontaktovat pro další informace a termíny prohlídek.
Dietzenbach se nachází v jižní oblasti Rýn-Main a propojuje městskou infrastrukturu s množstvím zeleně a krátkými cestami do Frankfurtu.
Historické jádro tvoří staré město, které ohromuje svým vyspělým šarmem, klidnými obytnými ulicemi a příjemným sousedským prostředím.
Obchody, kavárny, školy, mateřské školy a lékaři jsou pohodlně dosažitelní pěšky.
Díky spojení S-Bahn a rychlé dostupnosti dálnic A3 a A661 je centrum Frankfurtu dosažitelné během krátké doby.
Tato lokalita tak dokonale spojuje historickou atmosféru, dobrou dostupnost a vysokou kvalitu života.
V okolí nemovitosti najdete
Stále hledáte to pravé?
Nastavte si hlídacího psa. Nabídky vybrané na míru dostanete souhrnně 1× denně e-mailem. S Premium profilem máte k ruce hlídačů rovnou 5 a když se něco objeví, informují vás obratem.





















