Pronájem bytu 3+1 • 77 m² bez realitkyAm Fuchsberg 10b Magdeburg Leipziger Straße Sachsen-Anhalt 39112
Am Fuchsberg 10b Magdeburg Leipziger Straße Sachsen-Anhalt 39112MHD 4 minuty pěšky • Výtah • GarážNa přibližně 76 m² nabízí byt prostory zalité světlem.
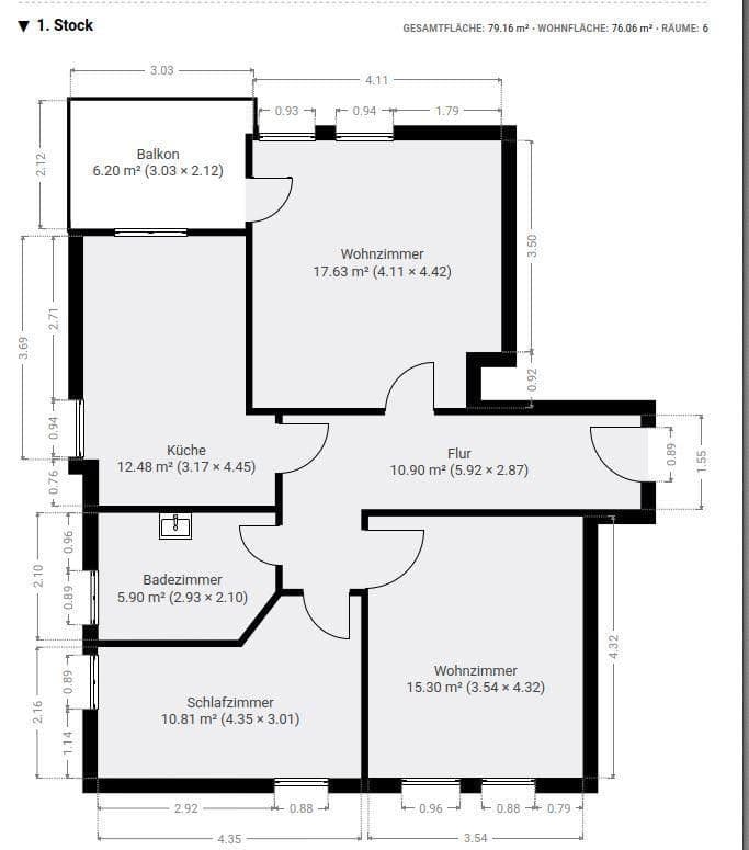
Byt se skládá ze 3 krásných pokojů, koupelny a samostatné (prostorné) kuchyně a chodby.
Toaleta je vybavena vanou.
Další přednosti
Bezstarostné a bezpečné parkování zajištěné vlastním parkovacím místem v podzemní garáži:
Flexibilita pro řidiče bez stresu z hledání parkovacího místa.
Další prostor díky prostorné skladovací místnosti:
Dostatek místa pro vše, co máte rádi, aniž by vaše obytné prostory byly přeplněné.
Bezprostřední blízkost MHD se tramvajovými a autobusovými linkami:
Perfektní spojení, které vás rychle a pohodlně doveze do centra i dále.
Možnosti nákupu a restaurace v bezprostřední blízkosti:
Aldi, Edeka a mnoho restaurací zajišťují krátké cesty a kulinářskou rozmanitost.
Výborné spojení se městskou dálnicí:
Ideální pro dojíždějící či víkendové výlety – příjezd/odjezd je jen pár křižovatek dál (blízko, ale bez rušení hlukem).
Energeticky efektivní budova:
Energetická třída C+ šetří provozní náklady a chrání životní prostředí – moderní bydlení s odpovědností.
Zaujali jsme vás? Kontaktujte nás ještě dnes a zajistěte si prohlídku, než bude tento byt opět zarezervován!
V jedné z nejkrásnějších obytných čtvrtí města, blízko centra a přesto klidné, se nachází tento světlý 3-pokojový byt.
Budova byla postavena v roce 1996 a disponuje osobním výtahem, který zaručuje bezbariérové bydlení vhodné pro seniory.
Příjemná kvalita bydlení je patrná již při vstupu do bytu.
- Osobní výtah
- Toaleta s vanou
- Laminátová podlaha
- Podzemní garáž
Byt zalitý světlem:
Velká okna zajišťují světlé, přívětivé prostory a vytvářejí teplou, vítavou atmosféru, která zve k pohodlí.
Kvalitní laminátová podlaha v dubové dřevěné optice:
Stylová podlaha dodává bytu moderní a útulný charakter – robustní a snadno udržovatelná zároveň.
Nově instalované bílé dveře:
Čerstvé a moderní – malý, ale vkusný akcent, který celkový dojem doplňuje.
Různé zásuvky v každé místnosti:
Více zásuvek na místnost pro maximální flexibilitu – konec s nutností používat prodlužovací kabely, ideální pro domácnosti s moderní technikou a více elektronickými zařízeními.
Nově natřené radiátory v celém bytě:
Nový vzhled a optimální rozložení tepla pro útulné klima v každém ročním období.
Závěsné WC:
Moderní vzhled spojený s jednoduchou údržbou – hygienické a praktické.
V okolí nemovitosti najdete
Stále hledáte to pravé?
Nastavte si hlídacího psa. Nabídky vybrané na míru dostanete souhrnně 1× denně e-mailem. S Premium profilem máte k ruce hlídačů rovnou 5 a když se něco objeví, informují vás obratem.
















