Prodej bytu 4+1 • 119 m² bez realitkySchlossberg 20, , Porýní-Falc
Reprezentativní podkrovní byt spojuje historický šarm s moderním obytným komfortem: V památkově chráněné budově z roku 1888 (bývalá elementární škola, později katastrální úřad) vznikl v rámci rozsáhlé kompletní revitalizace v letech 2013/2014 vysoce kvalitní architektonický byt s loftovým charakterem a působivou prostorem.
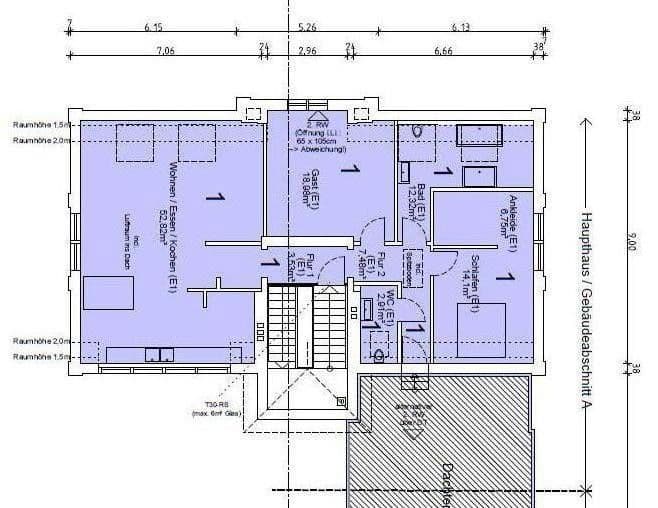
S podlahovou plochou přibližně 128,5 m² (upravená obytná plocha cca 118,9 m²) navíc s knižní palandou a palandou pro hosty nabízí byt výrazně více prostoru než klasický byt v patrové budově. Velkorysé výhledové osy, vzdušné stropy a pečlivě propracované detaily definují pocit z bydlení.
Skutečným lákadlem je střešní terasa o rozloze přibližně 80 m², která byla v roce 2017 zcela obnovena a nabízí neomezený výhled.
Podkroví bylo energeticky kvalitně zrekonstruováno (mimo jiné instalací střešní izolace a izolace mezi krokvemi), přičemž byly použity ekologické materiály jako hlínové cihly a izolační desky z dřevovlákna. Celé potrubí bylo obnoveno a stávající parketové podlahy byly odborně opracovány truhlářem.
Dnes je celek využíván jako kombinace bydlení a pracovního prostoru: Kromě nabízeného bytu budova hostí další dva byty, architektonickou komunitu a dvě ordinace (jednu využívanou vlastníkem, druhou pronajatou).
Večer a o víkendech máte historickou budovu jen pro sebe.
Byt s výhledem na hradiště hraběte se nachází v žádané jižní poloze nad historickým centrem Diezu a jeho centrum. Díky centrální poloze jsou veškeré zařízení denní potřeby snadno dostupná pěšky.
Budova se nachází u vlastního příjezdu (soukromá cesta) u vrcholu hradu a díky své vyvýšené poloze nabízí příjemně klidnou, zároveň však snadno dostupnou obytnou situaci.
Otevřený obytný, jídelní a kuchyňský prostor, který sahá až pod střešní svah, tvoří srdce bytu. Integrovaná knižní palanda, dostupná po žebříku, dodává prostoru další prostornost a kvalitu pobytu. Vestavěná kuchyň (Next125 od Schüller), která je součástí kupní ceny, se harmonicky začlení do celkového konceptu. Všechna střešní okna značky Velux jsou elektricky ovládaná (se solárním modulem) a v obytné části jsou navíc vybavena stínícím systémem.
V obytné části byl použit designový omítkový nátěr Claytec s příměsí hliníku, v zadní části druhého chodby pak Claytec s příměsí slámy. Dveře jsou opatřeny elegantními designovými lištami. Na místech vzdálených stěn byl parket odborně doplněn a upraven truhlářem.
I dětský či hostinský pokoj disponuje vlastní palandou, využitelnou jako další prostor pro spaní či hry, ke které vede žebřík. Nad koupelnou a šatnou se nachází půda, přístupná pomocí zasuvného schodiště. V této místnosti je instalován volně stojící průtokový ohřívač vody, který zajišťuje ohřev vody pro koupelnu.
Koupelna s italskými obklady je kvalitně vybavena kombinací umyvadlového stolku se zrcadlovou skříňkou, vanou a prostornou walk-in sprchou. Šatna je přístupná přímo ze ložnice.
V nadzemním sklepě přístavby se nacházejí dvě obložené sklepní místnosti s denními světelnými okny. Přiléhající prádelna nabízí dostatek místa pro pračku a sušičku. Kromě toho jsou ve starší části domu k dispozici bývalá společenská místnost a kuchyň určená ke společnému využití, doplněné o chladný sklep s nápoji.
Připojení od Telekomu a Vodafone je k dispozici. Optické připojení bylo již požádáno, rozšíření však ještě probíhá.
V okolí nemovitosti najdete
Stále hledáte to pravé?
Nastavte si hlídacího psa. Nabídky vybrané na míru dostanete souhrnně 1× denně e-mailem. S Premium profilem máte k ruce hlídačů rovnou 5 a když se něco objeví, informují vás obratem.































