Prodej domu 2+1 • 56 m² bez realitky, Dolní Sasko
V Sandhorstu byl v roce 2025 postaven tento atraktivní dvojbungalov na vlastnickém pozemku o rozloze přibližně 679 m², přibližně 900 metrů od lesa, se dvěma vysoce kvalitními jednotkami. Renomovaný developer a všechny řemeslné firmy jsou odborníci z regionu. Tento bungalow má přibližně 56 m² obytné plochy. Přední obytná jednotka byla již prodána.
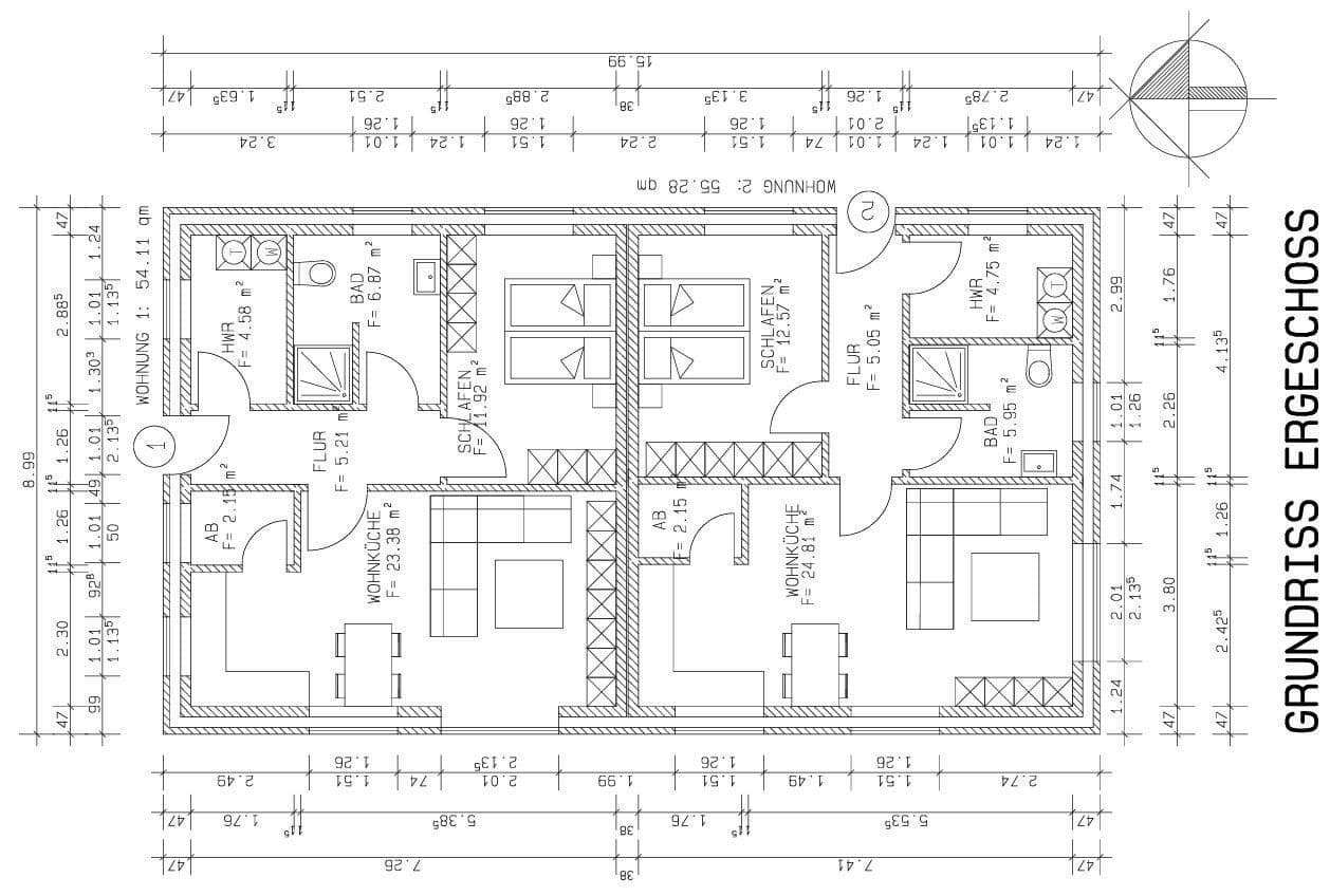
V přízemí se nachází prostorná, světlá „obytná kuchyně“ s podlahovými okny a přímým vstupem na terasu. Dále zde najdete ložnici, koupelnu, úložnu na zásoby, prádelnu s připojením pro pračku a chodbu, která přízemí doplňuje.
Kompletní dispozici prostor naleznete v přiložených náčrtcích půdorysu.
Celý dům disponuje podlahovým vytápěním. Další výhodou bydlení je decentralizovaný systém přívodu a odvodu vzduchu od firmy Bosch s rekuperací tepla, plastová okna s trojsklem (v antracitové barvě) s elektrickými žaluziemi, vzduchové tepelné čerpadlo Bosch, satelitní přijímač a přípojky domu. Všechny stropy v přízemí budou tapetovány drsnou tapetou a natřeny, stěny budou natřeny bílou barvou. Mezipodlaží je izolováno a v podkroví máte k dispozici další možnosti dokoupení prostoru. Podlahy v přízemí – v chodbě, v místnosti „obývání, stolování a vaření“, ve skladišti i ložnici – budou vybaveny vinylovými designovými podlahovými krytinami (v standardní verzi pokládky). Koupelna s přístupnou sprchou a prádelna budou obloženy dlažbou. Exteriér, včetně dláždění chodníků, parkovacího místa a terasy, stejně jako úprava zahrady (sejba trávníku), byly zajištěny námi. Vestavěná kuchyň není součástí kupní ceny, může být ale dodatečně nabídnuta.
Tento skvělý dvojbungalov byl obložen vysoce kvalitním klinkerem (Röben „Sheffield“) a střecha byla pokryta černými střešními taškami.
V exteriéru máte k dispozici kromě vlastní zahrady i terasu a parkovací místo pro automobil.
Koupě nemovitosti je pro kupujícího bez provize. Nabídková cena 249 000 € se vztahuje na jednotku č. 2 (zadní, s větším zahradním podílem, 481 m² pozemku). Přední jednotka č. 1 již byla prodána.
Energetický průkaz bude zájemci při prohlídce předán, případně dodán dodatečně!
Tento pozemek se nachází v klidné obytné čtvrti, vzdálený cca 800 metrů od závodu Enercon. V cca 900 metrech se nachází les.
V okolí nemovitosti najdete
Stále hledáte to pravé?
Nastavte si hlídacího psa. Nabídky vybrané na míru dostanete souhrnně 1× denně e-mailem. S Premium profilem máte k ruce hlídačů rovnou 5 a když se něco objeví, informují vás obratem.









