Prodej domu 5+1 • 127 m² bez realitky, Dolní Sasko
Tento půvabný řadový dům okouzluje svou štědrou dispozicí a atraktivní polohou. Disponuje dvěma plnými podlažími postavenými z masivní konstrukce a nevyužitým podkrovím, které nabízí široké možnosti využití – ať už jako dodatečný obytný prostor, prostor pro koníčky nebo úložný prostor. Střední řadový dům nabízí v přízemí prostorný obývací a jídelní prostor spojený s kuchyní, technickou místností, kanceláří/hostinskou místností či další ložnicí, hostinskou toaletou se sprchou a halou s věšáky.
V horním patře se nacházejí tři ložnice, skladovací místnost a koupelna s přirozeným denním světlem. Dům je vybaven pohodlným podlahovým vytápěním, které vytváří příjemné teplo, a elektrickými rolety, jež zajišťují bezpečnost a soukromí.
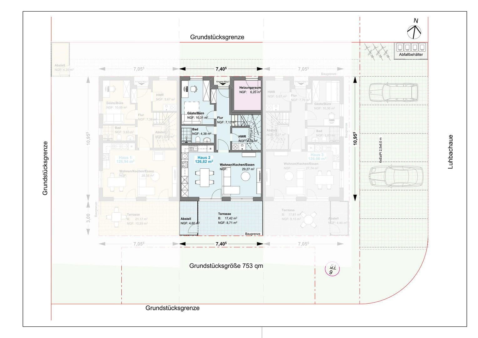
Na atraktivním pozemku o rozloze celkem 753 m² vzniknou tři moderní řadové domy (východní, střední a západní), které jsou ještě volné. Máte-li zájem o řadový dům na konci řady (západní nebo východní), neváhejte nás kontaktovat.
Pozemek zůstává jednotný, nicméně každý dům obdrží vlastní zvláštní užívací právo na terasu, zahradu a parkovací místo. Společná stanice pro dálkové vytápění zajišťuje efektivní napájení energií. Jižní orientace přináší spoustu slunečního světla a příjemnou atmosféru v exteriéru.
Dispozice a vybavení jsou v současnosti ještě flexibilní – všechny domy nabízejí variabilní dispozice, které lze přizpůsobit vašim potřebám. Také je možné vytvořit dvě obytné jednotky v rámci jednoho domu, což může napomoci optimalizaci nákladů nebo umožnit ubytování více generací pod jednou střechou.
Tato nemovitost představuje ideální kombinaci obytného komfortu, flexibility a slunné polohy – ideální volbu pro rodiny nebo páry hledající domov s potenciálem. Nezakoupíte zde jen dům, ale architektonicky promyšlený domov, který byl plánován odborně, postaven regionálními řemeslníky a profesionálně doprovázen architektonickou kanceláří – pro nejvyšší kvalitu, transparentnost a dlouhodobou bezpečnost.
Nový vývoj "Luhbach Auen" se nachází jižně od ulice Kampweg v Rosdorfu – atraktivní obci, která svým klidným a rodinně přívětivým prostředím okouzluje. Poloha nabízí dokonalou rovnováhu mezi přírodou a blízkostí města. Obchodní možnosti, školy, mateřské školy a zdravotní péče jsou snadno dostupné.
Obec má výborné dopravní spojení, což usnadňuje cestu do nedalekého města Göttingen. To činí Rosdorf ideálním místem pro rodiny, které hledají klidný domov, ale přitom nechtějí vzdát blízkost městských výhod. Kombinace přírody, kvalitní infrastruktury a přátelského sousedství činí Rosdorf tak oblíbeným – zde naleznete domov v klidné, ale zároveň dobře dostupné lokalitě.
Díky optickému připojení v novostavbě je možný domácí připojení rychlostí až 1 Gigabit.
V nabídkové ceně jsou mimo jiné zahrnuty podíl na pozemku, parkovací místo pro automobil, fotovoltaický systém, dlažba příjezdové cesty a přípojky domu (elektřina, voda, dálkové vytápění a telekomunikace). Budova bude postavena podle standardu efektivity domu 55 a bude zásobována dálkovým vytápěním společnosti Biogas Göttingen GmbH.
Podrobnější informace získáte přímo od prodávajícího. Nebudou vám účtovány žádné makléřské nebo provizní poplatky.
Těšíme se na váš dopis. Prosím, mějte pochopení, že odpovídáme pouze na dotazy, u nichž uvedete své celé jméno, telefonní číslo a e-mailovou adresu. Vaše kontaktní údaje budou samozřejmě důvěrné a nebudou dále předávány.
Prosíme, vyvarujte se dotazů makléřů.
V okolí nemovitosti najdete
Stále hledáte to pravé?
Nastavte si hlídacího psa. Nabídky vybrané na míru dostanete souhrnně 1× denně e-mailem. S Premium profilem máte k ruce hlídačů rovnou 5 a když se něco objeví, informují vás obratem.











