
Prodej bytu 5+1 • 143 m² bez realitkyRelingstr. 20 Berlin Grünau Berlin 12527
Slunný a klidný penthouse s 5 pokoji se nachází v udržitelně postaveném obytném čtvrti 52° Grad Nord. Díky konceptu „dům v domě“ disponuje vlastním, samostatným vchodem s individuálním číslem domu, velkou slunnou terasou i dvěma krásnými zahradními prostory, které vás zvou ke slunění, relaxaci a dokonce i k lehkým zahradnickým činnostem. Z terasy si můžete vychutnat nádherný výhled na přilehlou vodní plochu i na sousední vilu. Milovníci vody se zde mohou přímo před domem rozproudit s motorovou lodí, na SUP, kajaku, nebo jednoduše při plavání apod.
Hlavním lákadlem bytu je jeho poloha na konci domu – má souseda pouze na jedné straně. Druhá strana je oddělena zahradou, která náleží bytu, a klidným přechodem k vodní ploše (která není veřejně přístupná!) vedoucím k sousedním domům. I přes sousedství si tak můžete užívat naprosté soukromí.
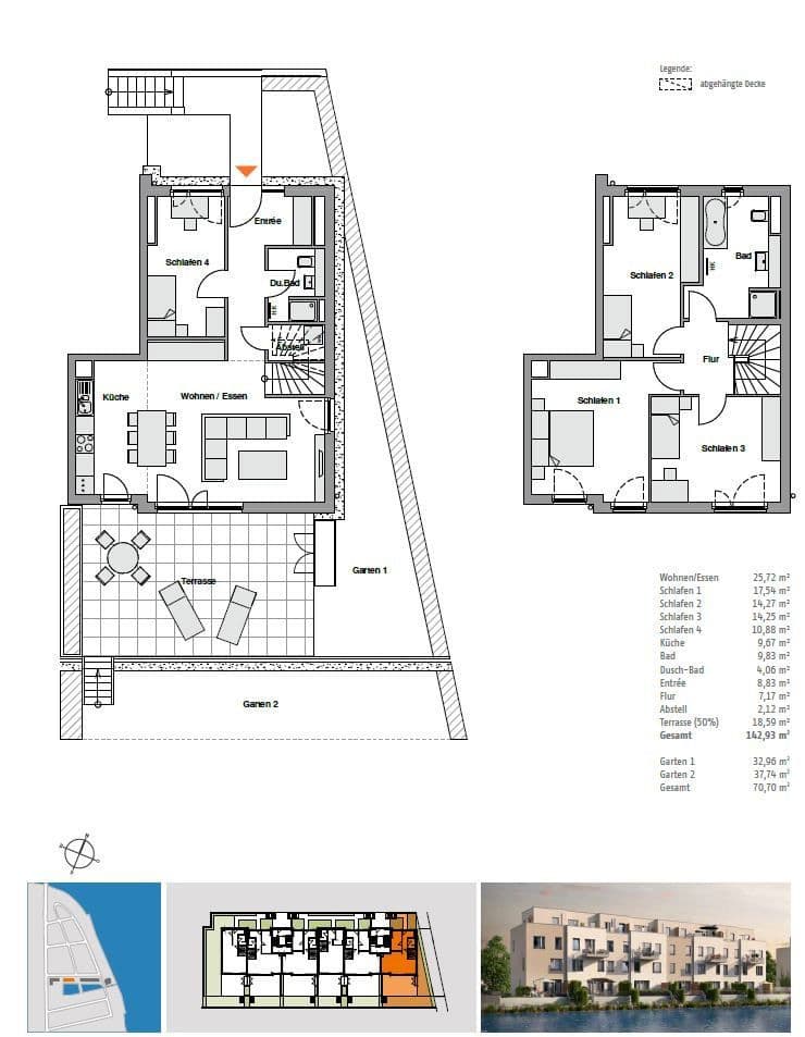
V mimořádně prostorných obytných částech pocítíte působivou otevřenost, která díky promyšlenému uspořádání dispozic získává jasnou strukturu. V obývací a jídelní části se nachází harmonicky a útulně zařízená vestavěná kuchyně. Středobodem bydlení jsou dále velkorysě prostranné místnosti a kvalitně vybavené koupelny. Výška stropů až 2,75 m a velká okna zajišťují, že všechny místnosti jsou zalité slunečním světlem. Podlahové vytápění s individuálním ovládáním, dlažba a parketové podlahy, koupelna s denním světlem, rolety či lamely, zamykatelné kliky oken a dveří v přízemí s pilotkovým zámkem, praktické úložné prostory a technická místnost s připojením pro pračku dokončují vysoký standard bydlení. Dokonce byla myslela i na praktickou možnost uskladnění zahradního náčiní, díky čemuž se práce na terase promění v potěšení.
K bytu dále patří prostorný sklep v suterénu objektu a řada míst pro kola v rámci společného vlastnictví. Volitelně je k prodeji i krásné parkovací místo v příslušné podzemní garáži.
Berlínský distrikt Treptow-Köpenick, protkán vodami a lesy, je co do své přírodní nedotčenosti a relaxační atmosféry ve městě téměř nepřekonatelný. Čtvrť Grünau zaujme množstvím pláží, rozličnými pěšími a cyklistickými stezkami, rozsáhlými lesy a jezery a útulnými kavárnami a restauracemi, které vytvářejí intimní a naprosto relaxační prostředí.
Jen pár metrů od vchodu do bytu začíná Grünauer Forst. Odtud si můžete například projít nebo zaběhat podél zakřiveného jezera Krummen až do Schmöckwitz – téměř celou cestu obklopeni lesem.
Celý okruh lze také skvěle prozkoumat s lodí. Pokud máte rádi aktivní dovolenou, půjčte si kánoi nebo SUP a objevujte krajinu jezer kolem obytného čtvrti!
Všechna vymoženost, po které se v každodenním životě sníte, máte přímo před dveřmi v Grünau. Různé obchody, školy, školky a lékaři se dostanete rychle a snadno pěšky, na kole nebo tramvají linky 68.
- Školka přímo v obytném čtvrti
- 5 minut chůze ke gesamtschule (střední škole) v Grünau
- Tramvajová zastávka přímo před domu
- 13 minut chůze na příměstskou vlakovou stanici Grünau
- 15 minut autem na letiště BER
- 15 minut autem k Forum Köpenick
- Pár minut chůze k supermarketům a gastronomickým zařízením
Vybavení a přednosti tohoto bytu:
• Prostorná obytná/jídelní/kuchyňská část
• Útulná vestavěná kuchyň
• Přibližně 18 m² velká ložnice
• Dvě další místnosti (každá cca 15 m²), dále pak pokoj pro hosty nebo pracovna v přízemí (cca 11 m²)
• Koupelna s denním světlem vybavená vanou a sprchou
• Další sprchová koupelna v přízemí
• Technická místnost s vodovodním připojením pro vaši pračku a prostorem pro sušičku či vše, co je třeba uložit
• Velká slunná terasa (cca 38 m²)
• Zahradní box
Další vybavení:
• Okna až od podlahy pro světlé místnosti
• Vysoce kvalitní dlaždice v celém přízemí
• Masivní dřevěné parkety v patře
• Individuálně ovládané podlahové vytápění ve všech místnostech
V okolí nemovitosti najdete
Stále hledáte to pravé?
Nastavte si hlídacího psa. Nabídky vybrané na míru dostanete souhrnně 1× denně e-mailem. S Premium profilem máte k ruce hlídačů rovnou 5 a když se něco objeví, informují vás obratem.



























