Prodej domu 7+1 • 238 m² bez realitkyHof Hof Bayern 95032
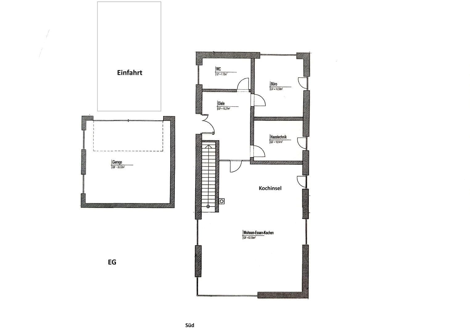
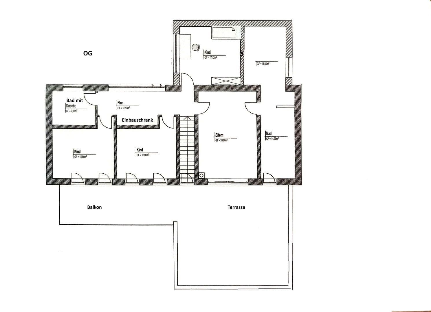
Nabízí se hrubá stavba s již dokončenou základovou deskou, zděnými cihlovými zdmi s integrovanou izolací a s hotovou plochou střechou. Stavební prvky jsou již osazeny. Pro dokončení zahrnuje práce mimo jiné úpravy střešní stavby (attika), vnější omítku, těsnění a kompletní vnitřní vybavení. Je ideální pro kupce, kteří chtějí realizovat své vlastní představy a hledají projekt s tvůrčím prostorem.
Dům se nachází mezi stávající obytnou zástavbou a přesto nabízí přírodní prostředí s otevřeným charakterem. Jižní orientace zajišťuje optimální osvětlení a příjemný, slunný vývoj pozemku.
Jde o hrubou stavbu s dokončenou základovou deskou, zděnými cihlovými zdmi s integrovanou izolací a hotovou plochou střechou. Okna a dveře jsou již osazeny. Základní omítka a surové instalace pro elektřinu a sanitární zařízení jsou hotové. Úpravy attiky, vnější omítky, těsnění a kompletní vnitřní vybavení ještě zbývají.
V okolí nemovitosti najdete
Stále hledáte to pravé?
Nastavte si hlídacího psa. Nabídky vybrané na míru dostanete souhrnně 1× denně e-mailem. S Premium profilem máte k ruce hlídačů rovnou 5 a když se něco objeví, informují vás obratem.


