Pronájem domu 7+1 • 150 m² bez realitkyWaldblickstr. 30, , Bavorsko
Tento moderní dům ve formě dvojdomu, novostavba s celkovou plochou cca 220 m², nabízí spoustu místa pro pohodlí, práci i život. Dům je vybaven vysoce kvalitně, je energeticky efektivní (tepelným čerpadlem a podlahovým topením na všech úrovních) a disponuje velkou zahradou i dvojgaráží.
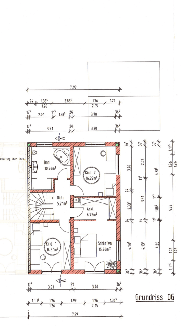
Rozložení místností:
Přízemí (cca 75 m²):
• Prostorný obývací/jídelní kout s přístupem na terasu a do zahrady
• Otevřená kuchyň
• Kancelář nebo pokoj pro hosty
• Koupelna se sprchou
• Spižírna
Patro (cca 75 m²):
• 3 ložnice
• Prostorná koupelna s vanou
• Světlá chodba
Suterén (cca 70 m²):
• Kompletně zařízený, vytápěný a se samostatným vstupem
• Ideálně využitelný pro dospělé děti, prarodiče, kancelář nebo domácí kancelář
• Světlý obývací/jídelní kout
• Další 2 místnosti
• Moderní koupelna se sprchou
Simbach am Inn se nachází idylicky na hranici s Rakouskem a zároveň nabízí vynikající dopravní spojení. Dálnice A94 umožňuje rychlé spojení do Mnichova za přibližně 1 hodinu. V místě máte k dispozici možnosti nakupování, školy, mateřské školy a zdravotní péči. Okolní příroda poskytuje řadu volnočasových možností – od cyklostezek podél Innu až po výlety do nedalekého Rakouska.
• Novostavba, dokončení 2025
• Přibližně 220 m² celkové plochy (včetně upraveného suterénu)
• Podlahové topení na všech úrovních
• Energeticky efektivní tepelné čerpadlo
• Vysoce kvalitní dlažby a podlahové krytiny
• Moderní koupelny s bezbariérovými sprchami
• Velká terasa se zahradou
• Dvojgaráž v ceně
• K nastěhování ihned
• Dvojgaráž + parkovací místa
• Tepelné čerpadlo (nízké provozní náklady)
• Připojení na optiku
V okolí nemovitosti najdete
Stále hledáte to pravé?
Nastavte si hlídacího psa. Nabídky vybrané na míru dostanete souhrnně 1× denně e-mailem. S Premium profilem máte k ruce hlídačů rovnou 5 a když se něco objeví, informují vás obratem.















