Prodej domu 7+1 • 230 m² bez realitkyFriedrich-Pecht-Weg, 10, , Bádensko-Württembersko
V jedné z mála čtvrtí rodinných domů v Konstanci, kde převládá neformální zástavba a zelené vnitřní dvory, se nachází tento prostorný, světlem prosvětlený architektonický dům – skutečný ráj. Rok výstavby: 2006
Dům je postaven masivní konstrukcí a zcela má podsklepené úrovně. V suterénu se nachází dobře osvětlený, kompletně zrekonstruovaný dvoupokojový byt s plně vybavenou kuchyňskou linkou (EBK). Tento byt může být využit samostatně jako samostatná část pro nájemníka nebo je možné jej využívat společně prostřednictvím vnitřního schodiště.
V přízemí se nachází prostorný obývací a jídelní prostor. Je možný přípoj švédského kamna. Tento obytný prostor se otevírá na terasu a zahradu s výhledem do zeleného vnitřního dvora.
V horním patře jsou umístěny ložnice či pracovny. Na každé úrovni je k dispozici volný přístup (balkón nebo terasa), takže si můžete celý den užívat slunce přímo z domu.
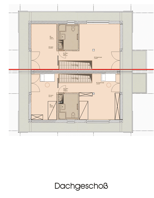
Podkrovní patro se zasazuje ve stylu penthousu. Díky tomu lze na této úrovni posedět, zahradničit či oslavovat – se sluncem od ranních hodin až do večera, s možností se dívat na východ, jih a západ.
Vedle dvojdomu jsou dvě nezávislá parkovací místa v dvojitém parkovišti. Za ně se k kupní ceně nemovitosti účtuje dodatečná cena 40 000 €. Kromě toho je v okolí k dispozici další parkovací prostor.
Za fotovoltaickou elektrárnu se s úložištěm se počítá částka 16 000 €. Celková cena tak činí 1,7 milionu €.
Rekonstrukce:
• Podlahy v hlavním bytě: kvalitní třešňové parkety a pravý břidlice (přírodní kámen)
Zvláštnosti:
• Nízký energetický standard díky silnému „dýchajícímu“ cihlovému zdivu
• Vnitřní zdi z cihel, žádné sádrokartonové přepážky
• Dřevěná okna z limského dřeva
• Kvalitní vestavěný nábytek od truhláře
• Zvláště vysoké místnosti v přízemí
• Viditelný dřevěný strop se vzepřenými trámy v podkroví
• Fotovoltaická instalace s 6,8 kW zajišťuje nejnižší náklady na elektřinu
Budova se nachází v dětské ulici a přesto je velmi dopravně výhodně situovaná v bezprostřední blízkosti švýcarské hranice a silnic B33 / Neue Rheinbrücke. V docházkové vzdálenosti najdete několik pekáren, obchod Edeka, lékárnu, řeku Rýn, Tägermoos i centrum města. Také jsou v blízkosti školky a školy. V létě se nabízí výlety k Schänzle nebo na Tägerwiler pláž.
Další rekonstrukční práce:
• Podlahy v hlavním bytě: kvalitní třešňové parkety a pravý břidlice (přírodní kámen)
Další zvláštnosti:
• Nízký energetický standard díky silnému „dýchajícímu“ cihlovému zdivu
• Vnitřní zdi z cihel, žádné sádrokartonové přepážky
• Vnitřní omítka místo tapety
• Dřevěná okna z limského dřeva
• Kvalitní vestavěný nábytek od truhláře
• Zvláště vysoké místnosti v přízemí
• Viditelný dřevěný strop se vzepřenými trámy v podkroví
• Fotovoltaická instalace z roku 2023 s 6,8 kW Peak a úložištěm SolarEdge zajišťuje nejnižší náklady na elektřinu – s možností příspěvku za dodanou elektřinu
• Flexibilní využití díky možnosti připojit samostatný byt (Einliegerwohnung)
V okolí nemovitosti najdete
Stále hledáte to pravé?
Nastavte si hlídacího psa. Nabídky vybrané na míru dostanete souhrnně 1× denně e-mailem. S Premium profilem máte k ruce hlídačů rovnou 5 a když se něco objeví, informují vás obratem.























