
Pronájem bytu 2+1 • 87 m² bez realitkyBleichstr. 28, , Hessen
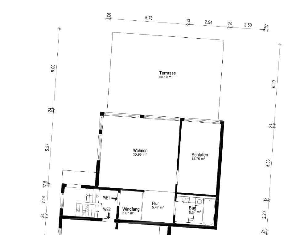
Bleichstr. 28, , HessenMHD do minuty pěšky • ParkováníTento krásný byt ve výborné centrální lokalitě v Gernsheim am Rhein se nachází v přízemí čerstvě zrekonstruovaného vícebytového domu se čtyřmi byty. Středobodem bytu je otevřená kuchyň s obývacím prostorem, která má přímý vstup na terasu a k parkovacím místům pro automobily. Byt oslní velkými okny a prostornou terasou, jež zve na grilovací párty nebo k zahrádkářským koníčkům. K dispozici je rovněž nová kuchyňská linka.
Byt má vlastní připojení pro pračku a je vybaven připojením od společnosti Telekom.
K bytu náleží také sklepní kóje, která poskytuje dodatečný úložný prostor.
Nemovitost se nachází v Gernsheim. V docházkové vzdálenosti jsou autobusové linky 44 a PG. Mimoregionální cíle jsou díky blízké traťové lince RE70 snadno dosažitelné. V bezprostředním okolí naleznete několik restaurací, lékařů, supermarketů, pekáren a kaváren. Rovněž je tu několik zelených ploch a parků, fitness center, bar, knihkupectví a knihovna, které jsou dosažitelné pěšky. O něco dál se navíc nachází mateřská škola.
- Praktický sklep s dodatečným úložným prostorem
- nová kuchyňská linka
- dvě parkovací místa
- prostorná terasa
Byt se pronajímá s obytnou plochou 87 m².
Čistá obytná plocha bytu činí 62 m², přičemž terasa tvoří podíl 25 m².
Uvedené fotografie jsou ukázkové.
V okolí nemovitosti najdete
Stále hledáte to pravé?
Nastavte si hlídacího psa. Nabídky vybrané na míru dostanete souhrnně 1× denně e-mailem. S Premium profilem máte k ruce hlídačů rovnou 5 a když se něco objeví, informují vás obratem.












