Pronájem kanceláře • 133 m² bez realitky, Hessen
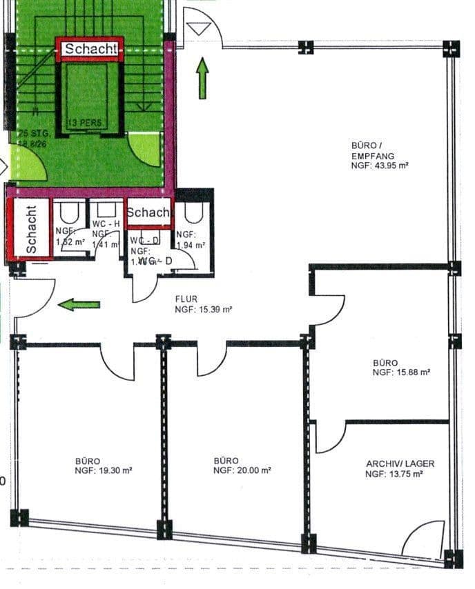
, HessenMHD 2 minuty pěšky • VýtahNemovitost představuje pečlivě udržovanou šestipodlažní obchodní budovu s obchody, kancelářemi a ordinacemi. Zde je nabídnuta přízemní kancelářská/praktická plocha v oblasti s velmi vysokou návštěvností a v bezprostřední blízkosti autobusového terminálu (ZOB) a hlavního nádraží (HBF). Přes velkou, otevřenou recepci/velkou kancelář vstoupíte do tří přilehlých místností. Všechny jsou vybaveny prostornými výkladními okny, díky čemuž jsou prostorné a prosvětlené, což je činí ideálními pro různé servisní podniky. Kromě velké kanceláře se zde nachází ještě chodba s kuchyňským koutem, sklad a dvě toalety. V podzemní garáži, která náleží obchodní budově, je možnost pronájmu parkovacích míst.
Lokalita obchodní budovy se vyznačuje svou centrální infrastrukturou. Budova se nachází přímo u ZOB a jen dvěma minutami chůze od ICE/HBF. Automobil vám umožní během velmi krátké doby dosáhnout dálnic směřujících sever-jih a východ-západ a také letiště je dosažitelné za pouhou hodinu po dálnici A66.
Okolí kancelářského komplexu je přímo napojeno na hlavní nákupní ulici "Bahnhofstraße", kde najdete obchody se spotřebním zbožím, módou, drogeriemi, lékárny a také pobočku DHL v budově naproti.
Místnosti jsou prostorné s vysokými stropy, což vytváří otevřený a příjemný pocit. Recepce je vybavena designovou podlahou s dřevěným vzhledem a zbývající místnosti mají kobercovou podlahu. Byla instalována klimatizace a místnosti jsou vybaveny vestavěnými stropními svítidly.
Prohlídky je možné uskutečnit výhradně na žádost a po domluvě s předchozím nájemcem.
Parametry nemovitosti
| Stáří | Nad 50 let |
|---|---|
| Stav | Dobrý |
| Plocha kanceláře | 133 m² |
| Dostupné od | 1. 4. 2026 |
|---|---|
| Číslo inzerátu | 986130 |
| Cena za jednotku | 0 € / m2 |
Co tato nemovitost nabízí?
| Bezbariérový přístup | |
| MHD 2 minuty pěšky |
| Sklep | |
| Výtah |
V okolí nemovitosti najdete
Stále hledáte to pravé?
Nastavte si hlídacího psa. Nabídky vybrané na míru dostanete souhrnně 1× denně e-mailem. S Premium profilem máte k ruce hlídačů rovnou 5 a když se něco objeví, informují vás obratem.






