Prodej domu 4+1 • 124 m² bez realitkyFREIBADNÄHE GRUNDSSTÜCK EXKLUSIV NUR FÜR DANWOOD-HAUSBAU Güssing Burgenland 7540
Kompaktní a promyšlený – prostorový zázrak na malém půdorysu.
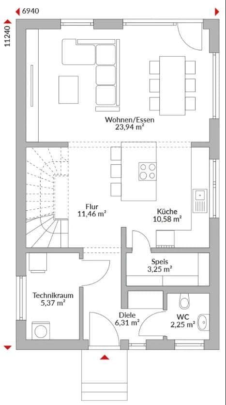
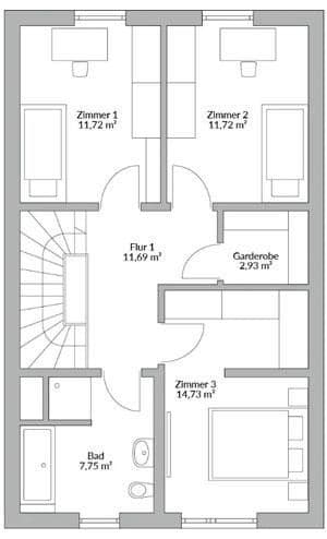
I přes malou zastavěnou plochu tento dům splňuje všechny požadavky moderního bydlení. Kuchyň je funkčně uspořádaná, technická místnost poskytuje dostatek místa pro domácí techniku a úložné prostory. Koupelna je vybavena vanou i sprchou a navíc je k dispozici hostinská toaleta. Chodba nabízí velký prostor pro uložení oděvů a dětské pokoje i ložnice disponují dobrými možnostmi pro zařizování. Obývací/jídelna okouzlí velkými okenními plochami a otevřenými přechody, které prostor opticky zvětšují.
Ideální pro všechny, kteří se soustředí na to podstatné – aniž by museli slevit ze komfortu.
Na Vašem pozemku nebo v …
Güssing: přibližně 2 600 m², umístění zcela rovné, rozlohy a polohu pozemků lze volit dle přání. Dostupné rozměry od 500 m² do 1 500 m².
Zde naleznete stavební pozemky extraktřídy! V nejlepším umístění a s dechberoucím výhledem na nádherný hrad Güssing!
Güssing nabízí budoucnost bezpečný, dostupný a energeticky nezávislý život v přírodě – což investici do nemovitosti zde činí strategickou hodnotovou investicí.
Proč Güssing
Energetický průkopník a udržitelnost:
Město je energeticky soběstačné a mezinárodně uznávané. Vysoké pokrytí (nad 85 %) regionálním teplem z biomasy vede ke stabilním a dostupným nákladům na vytápění.
Dostupné ceny nemovitostí:
Ceny jsou stále výrazně nižší než rakouský průměr, což umožňuje splnit sen o vlastním domě s prostorným pozemkem.
Silná infrastruktura a kvalita života:
Jako okresní předměstí zaručuje Güssing krátké vzdálenosti a nejlepší zásobování.
Plánované velké investice:
Nový vzdělávací kampus a moderní lékařské centrum (od roku 2026).
Kulturní centrum (hrad Güssing) a blízkost termálních lázní.
Plné otevření S7 přináší významné výhody pro Güssing a jeho obyvatele:
• Rychlejší spojení s aglomeracemi: Rychlostní silnice výrazně zkracuje dobu jízdy na dálnici A2 Jižní, čímž se cestovní časy do Grazu a Vídně podstatně zkracují.
• Úleva pro region: Nová trasa nasměruje průjezdní dopravu, která dříve zatěžovala obce jako Fürstenfeld a Rudersdorf.
• Ekonomické impulzy: Nové spojení, mimo jiné přes přípojku u Rudersdorf/Dobersdorf a blízkost k propojení s Königsdorf, posiluje Güssing jako okresní předměstí a ekonomické centrum díky lepší dostupnosti a podpoře nových obchodních parků.
Stabilita hodnoty a rozvojový potenciál:
Cílené komunální investice do infrastruktury, oživení městského centra a technologického hubu zajišťují dlouhodobou hodnotovou stabilitu nemovitostí. Komunální strategie se zaměřuje na zvládnutí demografických výzev a na etablování Güssingu jako atraktivního místa pro bydlení i podnikání.
Cílová skupina
Rodiny hledající budoucnost, bezpečí a přírodu, stejně jako všichni, kteří kladou důraz na nízké náklady na energii a ekologickou odpovědnost.
Další pozemky v:
Pozemek, 8323 Kohldorf: Stavební parcela se spoustou slunce v východním štýrském kopcovitém kraji, 15 km od Grazu!
Rozloha 758 m² – kupní cena 66 000 €
Pozemek, 8323 Kohldorf: Slunná stavební parcela v Kohldorfu, 15 km východně od Grazu!
Rozloha 787 m² – kupní cena 69 000 €
Pozemek, 8311 Markt Hartmannsdorf: Kompletně inženýrsky vybavená, slunná stavební parcela v Markt Hartmannsdorf
Rozloha 920 m² – kupní cena 53 000 €
Pozemek, 9335 Lölling Graben: Stavební parcela s nádherným panoramatickým výhledem v malebném karantnském horském prostředí
Rozloha 1001 m² – kupní cena 50 000 €
Pozemek, 8075 Hart bei Graz: Slunný pozemek u bran Grazu
Rozloha 1980 m² – kupní cena 475 000 €
Pozemek ve Stainzu – slunný pozemek na okraji obce Stainz
Rozloha 825 m² – kupní cena 149 000 €
Mezi vlastníkem pozemku a stavitelem domu neexistuje žádné ekonomické spojení.
Technika
Technika, která usnadňuje bydlení
Technologický balíček Today 3AL kombinuje moderní tepelná čerpadla s úložištěm teplé vody a inteligentním ventilačním systémem.
Výsledek: domov, který se automaticky stará o příjemné vnitřní klima – teplý v zimě, svěží v létě a efektivní po celý rok. Podlahové topení zajišťuje útulné teplo v každém pokoji, zatímco centrální ventilace s rekuperací šetří energii a současně dodává konstantně čerstvý vzduch. Technologický balíček dokonale spojuje komfort, efektivitu a budoucí bezpečnost.
Elektrické rolety:
Rolety od DANWOOD jsou perfektním doplňkem k energeticky úspornému systému DANWOOD. Chrání v létě před horkem, udržují v zimě teplo v domě a kdykoli zajišťují soukromí a bezpečí. S elektrickým ovládáním nebo chytrým řízením je lze pohodlně a intuitivně používat – to je komfort, který pocítíte každý den. Stručně řečeno, u DANWOOD jsou rolety volitelné, ale technicky dokonale integrovatelné – elektrické, odolné a ideální pro moderní architekturu.
Sanitární vybavení:
• Skleněná sprchová kabina – bezpečná, pohodlná
• Wstěnová toaleta – snadno se čistí, hygienická
• Umyvadlo
• Kvalitní baterie – odolné, snadné na ovládání, teplotně stabilní
• Volitelně dle modelu:
– Vana – perfektní pro relaxaci nebo společné večerní rituály
– Volitelně dvojité umyvadlo – žádné shlukování během ranního spěchu
– Uskryté baterie – bezpečné, elegantní, snadno se čistí
Všechno je navrženo tak, aby usnadnilo každodenní život a zároveň dlouhodobě zůstalo krásné.
Malířské práce:
Stěny a stropy – připraveny k nastěhování.
Všechny vnitřní stěny a stropy jsou standardně dokončeny na klíč. To znamená:
• Hladké, omítnuté a broušené povrchy
• Bílá finální úprava vysoce kvalitní disperzní barvou
• Čistý, rovnoměrný vzhled ve všech obytných prostorech
DANWOOD dodává již hotovou povrchovou úpravu
• Žádné viditelné spáry nebo přechody díky průmyslové preciznosti
Tím je dům ihned obyvatelný, aniž by bylo třeba další malířské práce.
Vinyl / Laminát / Dlaždice:
Obývací pokoje a ložnice – teplé, robustní, útulné!
Všechny obývací pokoje a ložnice jsou vybaveny vysoce kvalitními, snadno udržovatelnými podlahovými krytinami, které kombinují teplo, komfort a praktičnost.
Standardní provedení (v závislosti na modelu):
• Vysoce kvalitní designový vinylový podlahový materiál s dřevěným vzhledem
• Odolný, tichý, příjemně teplý na nohy
• Ideální pro rodiny, domácí mazlíčky a každodenní použití
• Harmonické barevné varianty (světlý dub, přírodní dub, šedý dub – dle výběru v Design Centru Pinkafeld)
Volitelně:
• Laminát v prémiové kvalitě
• Parkety z masivního dřeva (příplatkem)
Alternativní designové linie (vzhled betonu, tmavá dřevěná optika, teplé přírodní tóny) DANWOOD
Poznámka: Všechny ceny domů jsou uvedeny od horní hrany základové desky. Obrázky mohou zobrazovat volitelné speciální vybavení.
V okolí nemovitosti najdete
Stále hledáte to pravé?
Nastavte si hlídacího psa. Nabídky vybrané na míru dostanete souhrnně 1× denně e-mailem. S Premium profilem máte k ruce hlídačů rovnou 5 a když se něco objeví, informují vás obratem.





















