Prodej bytu 5+1 • 145 m² bez realitkyHamburg Harburg Hamburg 21079
Hamburg Harburg Hamburg 21079MHD 1 minuta pěšky • Výtah • GarážKdyž hledáte něco výjimečného, daleko od běžného 08/15, jste na správném místě. Zažijte bydlení v loftovém stylu s hodně prostoru pro rozvoj, rozprostřeném na více než třech světlých úrovních.
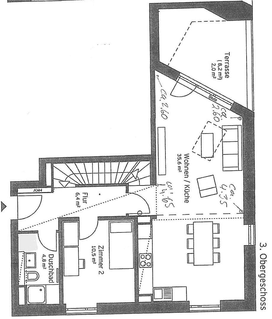
Na spodní úrovni (2. patro) se nacházejí tři ložnice a koupelna s vanou. Střední patro (3. patro = hlavní vstupní úroveň) je vybaveno obývacím pokojem, kuchyní s jídelnou, pracovnou/hostinským pokojem a sprchovou koupelnou, a v horním patře (4. patro) se nachází galerie a prádelna s dalším vstupem/východem do schodiště.
Hlavní vstup je ve středním patře (3. patro). Odtud se chodbou dostanete do světlého, impozantního obytného prostoru s téměř 5 metry vysokými stropy. Díky volnému výhledu na galerii se rozprostírá výjimečný pocit prostornosti – velkorysý, plný světla a s působivým architektonickým dojmem. Z každého okna prostorného obývacího a jídelního prostoru se naskýtá široký výhled na klidné vodní plochy vnitřního přístavu, s přilehlým obchodním kanálem a kanálem pilotů.
Obývací část má také přístup na slunný balkon s výhledem na západ. Díky velmi dobrému dispozici má dostatek místa pro rostliny, povinný gril a útulnou sezeníčku. Zde si můžete vychutnat odpočinkové chvíle na čerstvém vzduchu – ideální pro zakončení dne při atmosférickém západu slunce.
Dále se zde nachází hostinský pokoj/pracovna a sprchová koupelna. Sprchová koupelna byla, podobně jako koupelna s vanou v nižším patře, vybavena tmavou podlahou, světlými stěnovými dlaždicemi a pro oživení s barevně akcentovanými mozaikovými dlaždicemi v některých částech.
V dolním patře (2. patro) jsou tři ložnice a také hlavní koupelna s vanou. Stylová kombinace tmavých podlahových dlaždic, světlých stěnových dlaždic a jemných mozaikových detailů dodává koupelně – stejně jako sprchové koupelně v horním patře – elegantní a zároveň uvolněnou atmosféru.
Podlahová okna dodávají všem pokojům dostatek denního světla a vytvářejí příjemný pocit z bydlení. Trojitě zasklená okna s integrovaným ventilačním systémem zajišťují kdykoliv vyvážené klima a jsou při prohlídce ráda představena.
Galerie ve 4. patře okouzlí otevřenou architekturou a impozantním výhledem přes střechy okolních domů až k obchodnímu kanálu. Otevřený a světlý prostor je v současnosti využíván jako relaxační a volnočasový lounge, který nabízí prostor pro sportovní aktivity stejně jako pro klidné chvíle v útulné sezeníčce.
Vedle se nachází prádelna a technické zázemí domu. Prádelna se představuje jako multifunkční místnost domu. Kromě pračky a sušičky je zde rovněž umístěna technika pro automatickou výměnu vzduchu s rekuperací tepla a jističová skříňka. Navzdory tomuto vybavení nabízí místnost stále štědrý prostor pro regály a úložné prostory – ideální k pohodlnému uskladnění zásob či každodenních nákupů (kromě toho je zde také samostatný sklepní pokoj).
Zvláštním komfortem je dodatečný vstup v prádelně, který slouží nejen jako druhá úniková cesta, ale také umožňuje krátkou cestu při vnášení nákupů. Tímto promyšleně navrženým prostorem se technika, funkčnost a komfort skvěle doplňují – opravdový přínos pro každodenní život.
Byt se nachází v oblíbeném Harburském vnitřním přístavu, čtvrti, která není bez důvodu označována za „menší sestru“ HafenCity. Zde se moderní bydlení u vody spojuje s městskou atmosférou a bezprostřední blízkostí k přírodě.
Četné vysoce kvalitní restaurace, útulné kavárny a populární Lámmertwiete se svou rozmanitou gastronomickou scénou jsou dosažitelné během několika minut pěšky. Pravidelně se zde koná „Týdenní trh na písku“ s regionálními produkty, který zajišťuje živou atmosféru a komfortní zásobování čerstvými potravinami.
Vnitřní přístav navíc láká k odpočinku s množstvím volnočasových možností. Vybudovaná cyklotrasa je ideální pro dlouhé cyklistické výlety, zatímco milovníci vodních sportů a procházky podél nábřežní promenády a na Elbstrand jsou na své. Zejména četné kotevní místa pro obytné a domovní lodě dodávají čtvrti jedinečný, námořně-městský charakter. I zelené oblasti určené k rekreaci se nacházejí jen pár minut odtud – idylické parky u Außenmühlenteich se svým rozlehlým parkem a Harburgské hory se svými turistickými a cyklistickými stezkami poskytují ideální možnosti, jak si vychutnat přírodu a odpočinout si.
Harburský vnitřní přístav je navíc v neustálém vývoji. Čtvrť se již řadu let plynule rozrůstá a vyvíjí jak architektonicky, tak infrastrukturně, aby se stala moderní, prestižní městskou čtvrtí. Nové obytné a komerční plochy, atraktivně upravené prostory u vody a neustálé zvyšování hodnoty celého areálu činí tuto lokalitu mimořádně perspektivní.
Zvláštním vrcholem je výjimečná architektura komplexu budov navrženého v rámci IBA, ve kterém se tento byt nachází. Výrazně se odlišuje od okolí a dodává čtvrti moderní, jedinečný charakter.
Dopravní spojení & dostupnost
Dopravní spojení v Harburském vnitřním přístavu je excelentní. Autobusová zastávka se nachází přímo před vchodem a nádraží Harburg Rathaus je pohodlně dosažitelné pěšky za pouhých 7 minut. Odtud vás S-Bahn během 18 minut (šest zastávek) dopraví na hlavní nádraží v Hamburku. Díky vybudované síti cyklostezek je centrum města snadno dosažitelné i na kole.
Přátelskost rodinám & vzdělávání
Harburský vnitřní přístav je rodinná čtvrť s krátkými vzdálenostmi a ideální infrastrukturou. Hned tři mateřské školy se nachází v docházkové vzdálenosti, a také “Základní škola u parku” je snadno dosažitelná pěšky. Různé střední školy jsou rovněž v blízkosti a je možné je dosáhnout jak pěšky, tak pohodlně autobusem. Kombinace dobré dostupnosti, rozmanitých volnočasových možností a přirozeného okolí činí tuto lokalitu velmi atraktivní i pro rodiny.
Harburský vnitřní přístav spojuje urbanitu, námořní kouzlo a blízkost k přírodě do životního prostředí s výjimečnou kvalitou – lokalita, která nadchne singles, páry i rodiny a nabízí prostor pro individuální životní plány.
+ Trojitě zasklená, podlahová okna na všech patrech – v 4 ložnicích se speciálními ventilačními systémy
+ Automatický systém pro přívod a odvod vzduchu s rekuperací tepla
+ Podlahové topení ve všech místnostech
+ Masivní parkety ve všech místnostech (kromě koupelen s dlaždicemi)
+ Koupelna s vanou a hostinská koupelna se sprchou
+ Vestavěná kuchyně se značkovými spotřebiči
+ Všechny zásuvky jsou již stavebně vybaveny dětskými pojistkami
+ Velký balkon s výhledem na západ, pro dokonalý západ slunce
+ Velux střešní okna s vnější rolettetou, ovladatelná dálkovým ovladačem a s automatickým zavíráním při dešti
+ Prádelna/skladovací místnost v bytě s samostatným vchodem
+ Soukromý sklep, dále společné prostory pro kočárky/hračky apod. a samostatné a prostorné úložné prostory pro kola v úrovni podzemní garáže
+ Parkovací místo v podzemní garáži s připraveným připojením pro elektromobilní nabíječku (Wallbox)
+ Výtah
Pro další informace nebo domluvení prohlídky jsme Vám plně k dispozici.
!ŽÁDNÝ PROVIZNÍ/COURTAGE, JELIKOŽ JE PRODEJ SOUKROMÝ!
V okolí nemovitosti najdete
Stále hledáte to pravé?
Nastavte si hlídacího psa. Nabídky vybrané na míru dostanete souhrnně 1× denně e-mailem. S Premium profilem máte k ruce hlídačů rovnou 5 a když se něco objeví, informují vás obratem.


































