
Prodej bytu 2+1 • 73 m² bez realitky, Bádensko-Württembersko
, Bádensko-WürttemberskoMHD 1 minuta pěšky • ParkováníTento světlý a prostorný dvoupokojový byt se nachází ve vyšším přízemí vícebytového domu se šesti jednotkami v Mariabrunn, části obce Eriskirch. Obytná plocha činí přibližně 73 m².
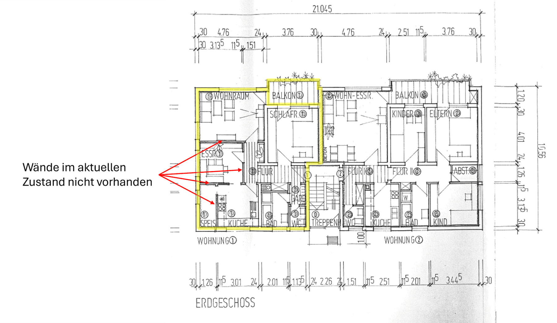
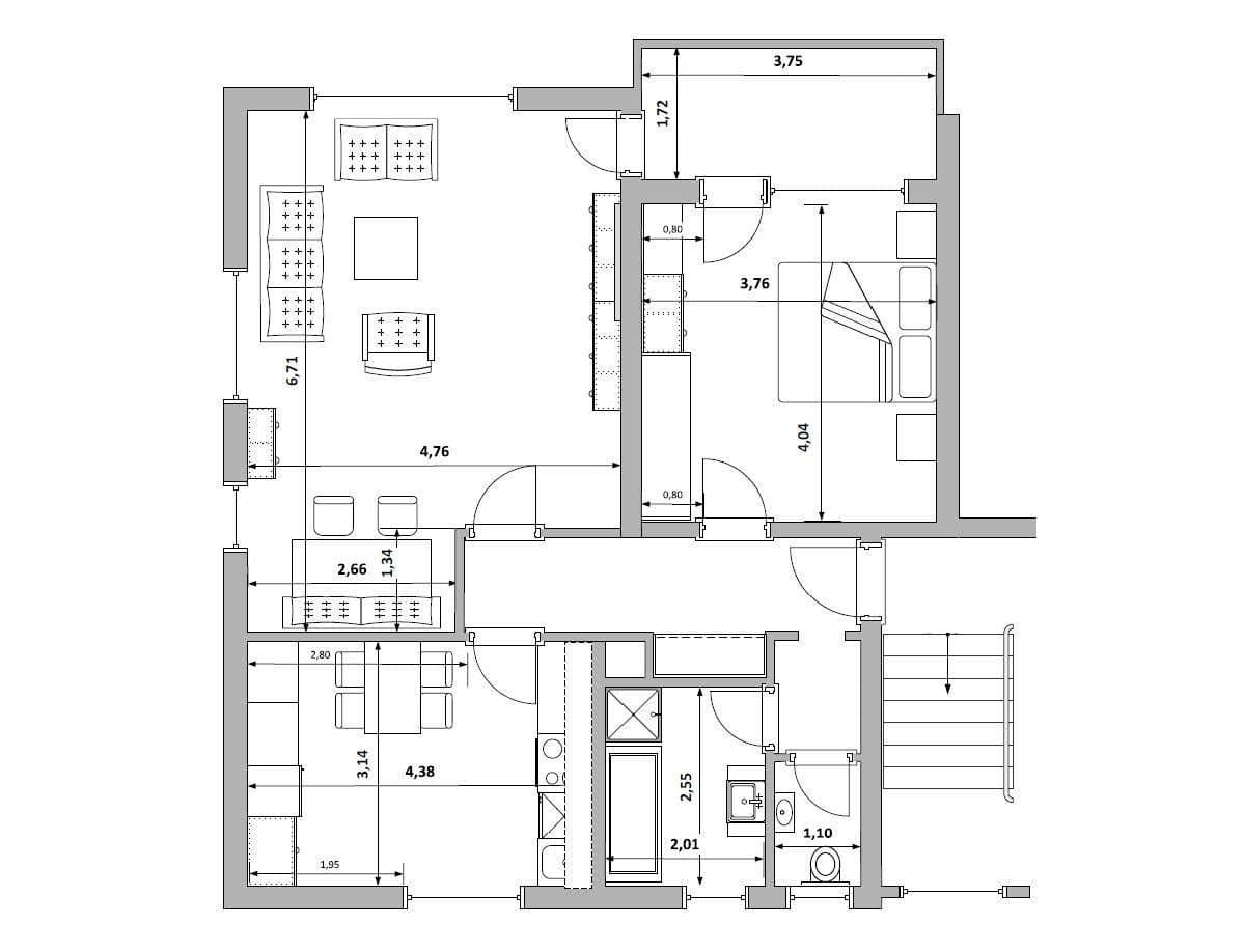
Byt byl původně plánován jako třípokojový (viz půdorys), avšak je v současnosti využíván jako dvoupokojový. Je ideální pro jednotlivce, páry i jako rekreační byt.
Koupelna je funkčně vybavena sprchou, vanou a přípojkou pro pračku. V suterénu máte k dispozici prádelnu se sušicí, která je momentálně využívána pro pračku a/nebo sušičku.
Prostorná kuchyně disponuje kvalitní vestavěnou kuchyňskou linkou s přírodní kamennou deskou a skleněným obkladem, která zůstává v bytě. Balkon je přístupný jak ze ložnice, tak z obývacího pokoje a je vybaven dálkově ovládanou markýzou.
V obývacím pokoji a ložnici jsou položené parkety z masivního dřeva, ostatní místnosti jsou obložené dlažbou. Byt prošel komplexní renovací a je tedy ihned po našem odchodu k nastěhování. V rámci renovace byly stěny odbornou firmou potaženy jemnou maltou, parkety byly obroušeny, všechny ostatní podlahové krytiny byly obnoveny a okna byla vybavena elektrickými žaluziemi. Balkon je vybaven elektrickou a dálkově ovládanou markýzou.
K bytu náleží velký sklep o rozloze přibližně 15 m² a také parkovací místo v carportu pro vaše vozidlo. Rezidenční objekt dále nabízí společnou zahradu. V poplatcích je zahrnuta služba domovníka, který se stará o úklid společných prostor a údržbu zahrady.
Vstupové dveře do domu i vytápění byly v roce 2024 obnoveny.
Byt se nachází v části Mariabrunn obce Eriskirch. Mariabrunn je idylická část obce Eriskirch, situovaná přímo u severního břehu Bodamského jezera. Region vyniká svou přírodou a blízkostí k Eriskircher Ried – významné chráněné přírodní oblasti, která zve ke procházkám a pozorování přírody. Tettnanger Wald je vzdálen jen několik set metrů od bytu, stejně jako cesta podél řeky Schussen, kterou lze sledovat až do Langenargen.
Infrastruktura je dobře rozvinutá: v okruhu 2 km se nacházejí obchody, lékaři, lékárny, mateřské školy a základní škola. Zastávka autobusu se nachází přímo vedle pozemku a nádraží Eriskirch nabízí vlakové spojení do Ulmu, Friedrichshafenu a Lindau. Silnice B31 zajišťuje rychlé napojení na region Bodamského jezera. Dobře vyvinutá síť cyklostezek, včetně stezky kolem Bodamského jezera, doplňuje možnosti mobility.
V okolí nemovitosti najdete
Stále hledáte to pravé?
Nastavte si hlídacího psa. Nabídky vybrané na míru dostanete souhrnně 1× denně e-mailem. S Premium profilem máte k ruce hlídačů rovnou 5 a když se něco objeví, informují vás obratem.
















