
Prodej bytu 2+1 • 74 m² bez realitkyBachemer Str. 341 Köln Lindenthal Nordrhein-Westfalen 50935
Bachemer Str. 341 Köln Lindenthal Nordrhein-Westfalen 50935MHD 9 minut pěškyExkluzivní zahradní byt v Köln-Deckstein – přímý prodej bez provize
Exkluzivní zahradní byt v klidné lokalitě Köln-Deckstein, přímo u městského lesa
Některé byty nejsou jen místem k bydlení.
Jsou to oázy klidu, kus kvality života – domov.
V jedné ze zelenějších a reprezentativnějších rezidenčních lokalit Kolína, klidně umístěné v dopravně uklidněné slepé ulici v Köln-Deckstein, se nachází tento jedinečný zahradní byt v nadzemním suterénu velmi udržovaného rodinného domu s pouhými pěti obytnými jednotkami.
Okolí bytu je charakteristické soukromím, klidem a příjemným sousedstvím. Zároveň je kolínské centrum dostupné během několika minut jízdou na kole nebo městskou hromadnou dopravou – což vytváří vzácnou kombinaci blízkosti města a bydlení v přírodě.
Kvalita bydlení s atmosférou
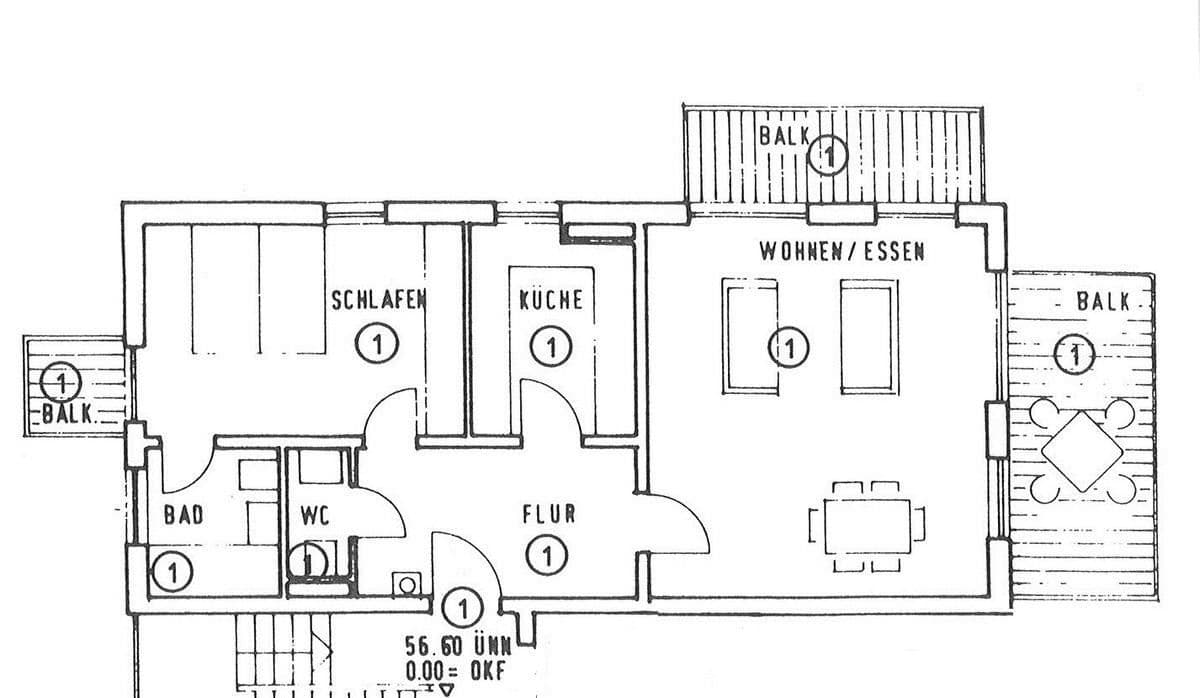
Byt disponuje přibližně 74 m² obytné plochy a okouzlí harmonickým uspořádáním, vysoce kvalitními materiály a znatelně příjemnou atmosférou.
Prostorný obývací pokoj s kvalitními dubovými podlahami, podlahovým vytápěním a velkými okny tvoří srdce bytu. Dostatek denního světla a výhled do zeleně vytváří klidnou, teplou atmosféru během celého roku.
Samostatná kuchyň je vybavena vysoce kvalitním vestavěným nábytkem a stylovými terakotovými dlaždicemi, které spojují nadčasovou eleganci s středomořským teplem – místo pro gurmánské vaření a setrvání.
Ložnice s přilehlou koupelnou s denním světlem nabízí soukromou oázu klidu. Další samostatné hostinské WC dokonale doplňuje promyšlený půdorys.
Elektrické rolety zajišťují ve všech místnostech komfort, klid a soukromí.
Jedinečným rysem této nemovitosti jsou dvě terasy a zahrada určená k výlučnému užívání.
Ať už ráno s kávou v záři zeleně, odpoledne s knihou, nebo večer se sklenkou vína – tyto terasy a zahrada elegantním způsobem rozšiřují obytný prostor do exteriéru a poskytují vzácný útočiště v nejlepší městské lokalitě.
Vybavení & Highlights
- přibližně 74 m² obytné plochy
- nadzemní suterén (hochparterre)
- velmi udržovaný dům s pouhými 5 obytnými jednotkami
- kvalitní dubové podlahy
- podlahové vytápění
- elektrické rolety
- koupelna s denním světlem + samostatné hostinské WC
- dvě terasy a soukromá zahrada
- kvalitní, plně vybavená kuchyň
- vlastní sklep o rozloze 8 m², uzamykatelný
- společný, dobře větraný a udržovaný prádelní sklep
- samostatný sklep na kola
- klidná lokalita v slepé ulici
- zelená, reprezentativní rezidenční lokalita
- podzemní místo k parkování lze také pronajmout
Ostatní
Prodej probíhá bez provize přímo přes člena rodiny – makléřská provize se neplatí.
Prohlídky a další vyřizování jsou osobně, spolehlivě a diskrétně doprovázeny.
Tento byt je určen pro kupce, kteří ocení kvalitu, lokaci a jedinečný pocit z bydlení.
Rádi vám při vážném zájmu poskytneme další informace a těšíme se, až vám tento jedinečný byt budeme moci představit osobně.
Nemovitost se nachází na ulici Bachemer v srdci Kolína-Lindenthal – čtvrti, která je již desetiletí ceněná pro svou jedinečnou kvalitu bydlení, vybudovanou strukturu a příjemnou atmosféru. Lindenthal harmonicky spojuje městský život s klidnou zelení a patří mezi nejžádanější rezidenční lokality města.
Okolí je charakterizováno udržovanými obytnými domy, starými stromy a sousedstvím, kde se snoubí stabilita a živost. Podél ulice Bachemer se nachází rozmanité možnosti nákupů, malé kavárny, restaurace a poskytovatelé služeb, kteří dělají každodenní život příjemným a nenáročným. Vše důležité je v komfortní blízkosti – často jen pár kroků od domova.
Dopravní dostupnost je vynikající: Městská hromadná doprava je dosažitelná pěšky a umožňuje rychlé spojení do kolínského centra a dalších čtvrtí. Zároveň lokalita nabízí útočiště a relaxaci. Nedaleké zelené plochy a parky vybízejí ke procházkám, sportovním aktivitám či klidnému odpočinku na čerstvém vzduchu a tvoří příjemnou rovnováhu proti městskému shonu.
I rodiny profitují z vynikající infrastruktury s jeslemi, školami a zdravotní péčí v okolí. Blízkost ke vzdělávacím zařízením a kulturním zařízením dodává čtvrti ještě živější, inspirativní nádech.
Adresa Bachemer Straße 341 symbolizuje domov s charakterem – v čtvrti, která jedinečným způsobem spojuje kvalitu života, hodnotovou stabilitu a příjemný pocit z bydlení.
Vybavení tohoto zahradního bytu podtrhuje vysoké nároky na kvalitu, komfort a atmosféru bydlení. Všechny materiály byly vybírány s ohledem na dlouhověkost, estetiku a harmonický celek.
V obytné části dodávají kvalitní dubové podlahy místnostem teplou, přírodní eleganci. V kombinaci s celopodlahovým vytápěním vzniká útulný pocit z domova, který je příjemný v každém ročním období. Prostorná okna zajišťují dostatek denního světla a harmonicky spojují interiér s výhledem do zeleně.
Samostatná kuchyň zaujme vysoce kvalitními vestavěnými prvky a stylovými terakotovými dlaždicemi, které prostoru dodávají nadčasový, lehce středomořský nádech. Je funkčně promyšlená a zároveň představuje prostor, kde se vaření a vychutnávání jídla stávají přirozenou součástí života.
Ložnice společně s přilehlou koupelnou s denním světlem tvoří soukromý klidový kout. Koupelna je světlá a útulná, s oknem, které zajišťuje příjemné osvětlení a větrání. Další, samostatné hostinské WC dokonale doplňuje půdorys a zvyšuje denní komfort bydlení.
Elektrické rolety ve všech místnostech umožňují pohodlné ovládání světla, zajištění soukromí a přispívají k celkové klidné atmosféře a kvalitě bydlení.
Jedinečným vybavením jsou dvě terasy a zahrada náležející bytu, určené k výlučnému užívání. Tyto venkovní prostory výrazně rozšiřují obytný prostor a tvoří soukromé, chráněné útočiště uprostřed zeleně – což je v této lokalitě opravdová vzácnost. Ať už jako klidný začátek dne, nebo jako uvolněný konec večera – zde se bydlení prožívá hmatatelným způsobem.
Celý zážitek doplňuje vlastní uzamykatelný sklep o rozloze 8 m², velmi udržovaný společný prádelní sklep a samostatný sklep na kola. Případně lze navíc pronajmout parkovací místo v podzemní garáži, které ještě více zvyšuje komfort této nemovitosti.
V okolí nemovitosti najdete
Stále hledáte to pravé?
Nastavte si hlídacího psa. Nabídky vybrané na míru dostanete souhrnně 1× denně e-mailem. S Premium profilem máte k ruce hlídačů rovnou 5 a když se něco objeví, informují vás obratem.



























