Pronájem kanceláře • 163 m² bez realitkyWilhelmshöher Allee 320 Kassel Kassel Hessen 34131
Wilhelmshöher Allee 320 Kassel Kassel Hessen 34131MHD 3 minuty pěšky • Parkování • GarážAtraktivní obchodní prostory v reprezentativním mnohostanovém domě – Wilhelmshöher Allee 320, Kassel
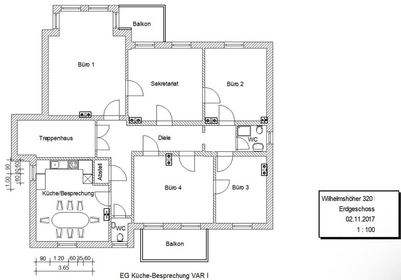
V upraveném a reprezentativním mnohostanovém domě na adrese Wilhelmshöher Allee 320 jsou k novému pronájmu k dispozici dva prostorné obchodní prostory. Nemovitost se nachází na jedné z nejžádanějších a nejviditelnějších adres v Kasselu s vynikající dostupností a vysokou kvalitou lokality.
Dostupné prostory:
• Přízemí: cca 163 m², k dispozici od 01.05.
• 1. patro: cca 163 m², k dispozici od 01.07.
Prostory lze pronajmout samostatně nebo společně a jsou ideální pro kancelářské, ordinace, poskytování služeb nebo poradenské využití.
Vybavení a dispozice:
Jednotky nabízejí funkční, dobře osvětlené dispozice s flexibilními prostorovými uspořádáními, která umožňují individuální přizpůsobení různým koncepcím využití. Prostorná okna zajišťují příjemné pracovní prostředí. Technická infrastruktura je moderní a přizpůsobená obchodnímu využití.
Lokalita a okolí:
Wilhelmshöher Allee patří k nejvýznamnějším dopravním a obchodním tepnám Kasselu. Lokalita nabízí vynikající propojení s veřejnou dopravou i s regionální silniční sítí. V bezprostředním okolí se nachází řada poskytovatelů služeb, maloobchodních prodejen, gastronomických podniků i obytných budov, což činí tuto lokalitu obzvláště atraktivní jak pro zaměstnance, tak pro zákazníky.
Závěr:
Tyto obchodní prostory spojují reprezentativní lokalitu, prostornou strukturu a vysokou flexibilitu – ideální pro firmy, které kladou důraz na viditelnost, dostupnost i profesionální prostředí.
Další informace a termíny prohlídek Vám rádi poskytneme na vyžádání.
Wilhelmshöher Allee 320 se nachází v Kasselu v oblíbené západní části města – v oblasti, která spojuje městský život s množstvím zeleně a velmi dobrou infrastrukturou. Adresa se nachází na jedné z nejznámějších hlavních tepen Kasselu – Wilhelmshöher Allee. Tato ulice formuje městský obraz svými prostornými alejemi, vyvinutými obytnými čtvrtěmi a kombinací reprezentativních historických budov, pečlivě udržovaných mnohostanových domů a modernějších staveb. Mikro-lokalita je proto atraktivní jak pro pracující, tak pro studenty a páry, kteří oceňují krátké cesty a živé prostředí.
Velkým plusem je vynikající propojení s veřejnou dopravou. Podél Wilhelmshöher Allee jezdí tramvaje a autobusy v krátkých intervalech, které spojují tuto lokalitu rychle s centrem Kasselu, s nádražím ICE Kassel-Wilhelmshöhe a dalšími městskými částmi. Cestující do práce tak mají výhodu rychlé dostupnosti klíčových dopravních uzlů a dobrého začlenění do regionální sítě. I automobilovou dopravou je místo pohodlně dosažitelné: Velké odbočkové silnice zajišťují snadný přístup k dálnicím a přilehlým průmyslovým a podnikatelským centrům, aniž by bylo třeba se vzdát výhod městského bydlení.
V bezprostředním okolí najdete řadu zařízení pro každodenní potřeby. Supermarkety, pekárny, lékárny, lékaři, banky a další poskytovatelé služeb se nacházejí v krátké vzdálenosti. Nabídku doplňují kavárny, restaurace a menší obchody, které dodávají čtvrti příjemný, vyvinutý charakter. Pro rodiny je lokalita rovněž zajímavá – mateřské školy, školy a možnosti volnočasových aktivit jsou v okolí rozmístěny a obvykle snadno dostupné.
Regenerace a volný čas zde také nezůstávají opomenuty. Západ Kasselu se vyznačuje vysokou kvalitou pobytu a relativně hojností zeleně. Podle směru výhledu jsou snadno dostupné procházkové i běžecké trasy, zelené pásy a další možnosti pro relaxaci v okolí. Výjimečným lákadlem čtvrti je blízkost k rekreačním a kulturním lokalitám okolo Bergparku Wilhelmshöhe se svým rozsáhlým areálem, výhledovými liniemi a různorodými atrakcemi – ideální pro víkendy, sportovní aktivity či odpočinkové večerní procházky.
Celkově Wilhelmshöher Allee 320 nabízí lokalitu, která přesvědčivě kombinuje centrální dostupnost, silnou infrastrukturu a kvalitní obytné prostředí. Kombinace dobré mobility, dostupnosti každodenních potřeb, gastronomie a zeleného okolí činí tuto adresu atraktivní pro všechny, kteří si přejí pohodlně a v blízkosti centra bydlet v Kasselu.
Pronajímaná plocha se nachází ve kvalitně zrenovovaném historickém domě, který spojuje kouzlo klasické architektury s nároky moderního pracovního prostředí. Historické prvky byly pečlivě zachovány a současně doplněny o moderní řešení, takže vznikla reprezentativní a zároveň funkční kancelářská atmosféra.
Vybavení je charakterizováno kvalitním parketovým podlahovým krytem z masivního dřeva, který dodává místnostem teplý, elegantní vzhled a zároveň přispívá k příjemné pracovní atmosféře. Prostorné rozměry a světlé osvětlení podporují moderní kancelářské prostředí a nabízejí široké možnosti pro individuální uspořádání místností a jejich využití – od klasické samostatné kanceláře až po otevřené pracovní prostory.
Technická infrastruktura odpovídá dnešním požadavkům: V současnosti se instaluje připojení optickým vláknem, které vytvoří základ pro rychlé, stabilní internetové připojení a perspektivní digitální využití. Celkové vybavení přesvědčuje svým úspěšným spojením vysoce kvalitní stavební podoby, moderní technologie a profesionální, reprezentativní estetiky, jež poskytuje ideální podmínky pro produktivní práci.
Pro rok 2026 je plánována výstavba výtahu.
V červenci 2026 bude navíc volné druhé patro (1. patro) o podobné rozloze.
Parametry nemovitosti
| Dostupné od | 1. 5. 2026 |
|---|---|
| Číslo inzerátu | 987255 |
| Cena za jednotku | 15 € / m2 |
| Stav | Velmi dobrý |
|---|---|
| Plocha kanceláře | 163 m² |
Co tato nemovitost nabízí?
| Balkón | |
| MHD 3 minuty pěšky |
| Garáž | |
| Parkování | |
| Terasa |
V okolí nemovitosti najdete
Stále hledáte to pravé?
Nastavte si hlídacího psa. Nabídky vybrané na míru dostanete souhrnně 1× denně e-mailem. S Premium profilem máte k ruce hlídačů rovnou 5 a když se něco objeví, informují vás obratem.






















