Prodej bytu 1+1 • 25 m² bez realitkySpielbergerstraße 32 Stuttgart Zuffenhausen Baden-Württemberg 70435
Spielbergerstraße 32 Stuttgart Zuffenhausen Baden-Württemberg 70435MHD 6 minut pěškyProdávaný 1-pokojový sklepní byt se nachází v udržovaném vícebytovém domě z roku 1975 se celkem osmi obytnými jednotkami. Budova je vytápěna olejovým kotlem z roku 2006.
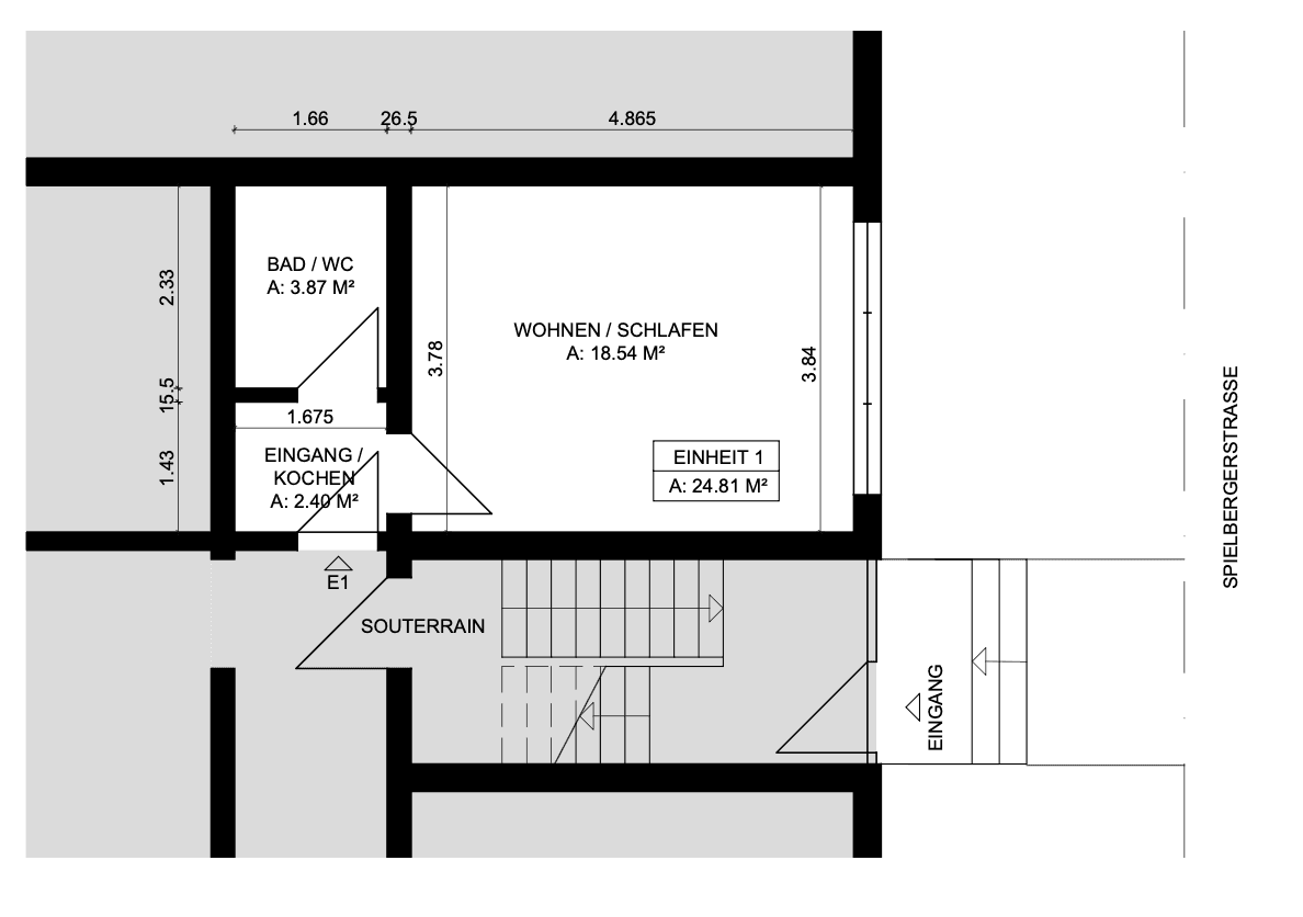
Byt se nachází ve stejné úrovni jako sklepní prostory, avšak díky okennímu pásu orientovanému na jih nabízí příjemné přirozené osvětlení. Zejména během poledne proniká do obytných prostor dostatek denního světla, což vytváří přátelskou atmosféru.
Jednotka je v typickém stavu dle roku výstavby. Okna byla před několika lety vyměněna a jsou vybavena plastovými rámy s dvojitým zasklením. Funkční dispozice zahrnuje obývací a ložnicovou část, kuchyňský kout umístěný přímo za vstupními dveřmi a poměrně prostornou koupelnu s umyvadlem, toaletou a vanou.
Byt není v současné době pronajat, což poskytuje flexibilní možnosti využití jak pro vlastní bydlení, tak pro investory. Prodává se zařízený; stávající nábytek je již zahrnut v kupní ceně.
Díky kompaktnímu uspořádání, dostupnému nábytku a dobrému osvětlení se byt ideálně hodí pro jednotlivce, dojíždějící nebo pro krátkodobý pronájem. Celkově představuje tato nemovitost zajímavou příležitost pro kupce, kteří chtějí pořídit solidní a univerzálně využitelnou jednotku.
Nemovitost na adrese Spielbergerstraße 32 se nachází v atraktivní rezidenční oblasti ve stuttgartskej čtvrti Zuffenhausen, ekonomicky silném a zavedeném okrese na severu hlavního města. Okolí je charakterizováno udržovanými obytnými domy a klidným, vyspělým sousedstvím.
Zuffenhausen vyniká svou vynikající dopravní dostupností. Stanice městské železnice a S-Bahn jsou rychle dosažitelné a umožňují přímé spojení do centra města i do okolních hospodářských oblastí. Díky silnicím B10 a A81 je také velmi dobré spojení s regionální silniční sítí.
Obchody pro každodenní potřeby, lékaři, lékárny a gastronomická zařízení se nacházejí v bezprostřední blízkosti. Zvláště atraktivní je blízkost velkých zaměstnavatelů, jako je Porsche, a dalších průmyslových či technologických firem, což zajišťuje trvale vysokou poptávku po bydlení.
Ulice Spielbergerstraße samotná je klidná rezidenční ulice s malým průjezdem a nabízí příjemné prostředí k bydlení. Celkově lokalita spojuje městské bydlení, výbornou infrastrukturu a trvalou atraktivitu pro pronájem – ideální pro vlastníky i investory.
Byt se nachází ve stavu typickém pro dobu výstavby. Okna byla před několika lety vyměněna a nyní jsou to plastová okna s dvojitým zasklením.
Kuchyňský kout, který se nachází přímo za vstupními dveřmi, je vybaven troubou, sporákem a dřezem. Přiléhající koupelna je poměrně prostorná a vybavena umyvadlem, toaletou a vanou.
Byt je v současné době zařízený a nábytek je již zahrnut v nabídnuté ceně.
V okolí nemovitosti najdete
Stále hledáte to pravé?
Nastavte si hlídacího psa. Nabídky vybrané na míru dostanete souhrnně 1× denně e-mailem. S Premium profilem máte k ruce hlídačů rovnou 5 a když se něco objeví, informují vás obratem.






