Prodej domu 7+1 • 170 m² bez realitkyHugo-Lang-Bogen 13 München Neuperlach Bayern 81735
Dieses moderne Neubau-Reihenhaus überzeugt auf ca. 170 m² Wohnfläche durch eine durchdachte Raumaufteilung, lichtdurchflutete Wohnbereiche und eine hochwertige Ausstattung. Die trapezförmige Architektur verleiht dem Haus ein außergewöhnliches Design und sorgt für eine besondere räumliche Dynamik. Das Haus erstreckt sich über zwei Etagen und bietet eine ideale Kombination aus Komfort, Funktionalität und stilvollem Wohnen.
Tento moderní řadový dům s novou výstavbou o obytné ploše přibližně 170 m² zaujme promyšleným plánováním prostor, světlými obytnými částmi a kvalitním vybavením. Ve tvaru lichoběžníku navržená architektura dává domu jedinečný design a vytváří zvláštní prostorovou dynamiku. Dům se rozkládá na dvou podlažích a nabízí ideální kombinaci pohodlí, funkčnosti a elegantního bydlení.
Im Erdgeschoss empfängt Sie ein großzügiger Wohn- und Essbereich mit offener Küche sowie einer geräumigen Speisekammer, die für Ordnung und praktische Aufbewahrung sorgt. Besonders praktisch: Die Speisekammer kann zusätzlich über eine Tür von außen betreten werden, sodass Einkäufe direkt vom Auto unter der Bedachung des Carports bequem eingeladen werden können. Ergänzt wird diese Ebene durch ein Gästezimmer, ein Arbeitszimmer, ein separates WC und den Hauswirtschafts- und Technikraum. Große bodentiefe Fenster lassen viel Tageslicht herein und verbinden den Innenbereich harmonisch mit der Terrasse und dem Garten. Ein überdachter Carport am Haus bietet praktischen Schutz für Ihr Fahrzeug.
V přízemí na vás čeká prostorný obývací a jídelní kout s otevřenou kuchyní a velkou spižírnou, která přispívá k pořádku a praktickému uskladnění věcí. Velmi praktické je, že ke spižírně vede také dveře zvenčí, takže si můžete pohodlně vyložit nákupy přímo z auta pod krytem nad garáží. Tuto úroveň doplňuje pokoj pro hosty, pracovnu, samostatná toaleta a technická místnost určená pro domácí potřeby. Velká francouzská okna propouštějí dostatek denního světla a harmonicky propojují interiér s terasou a zahradou. Nad domem se nachází krytá garáž (carport), která poskytuje praktickou ochranu pro vaše vozidlo.
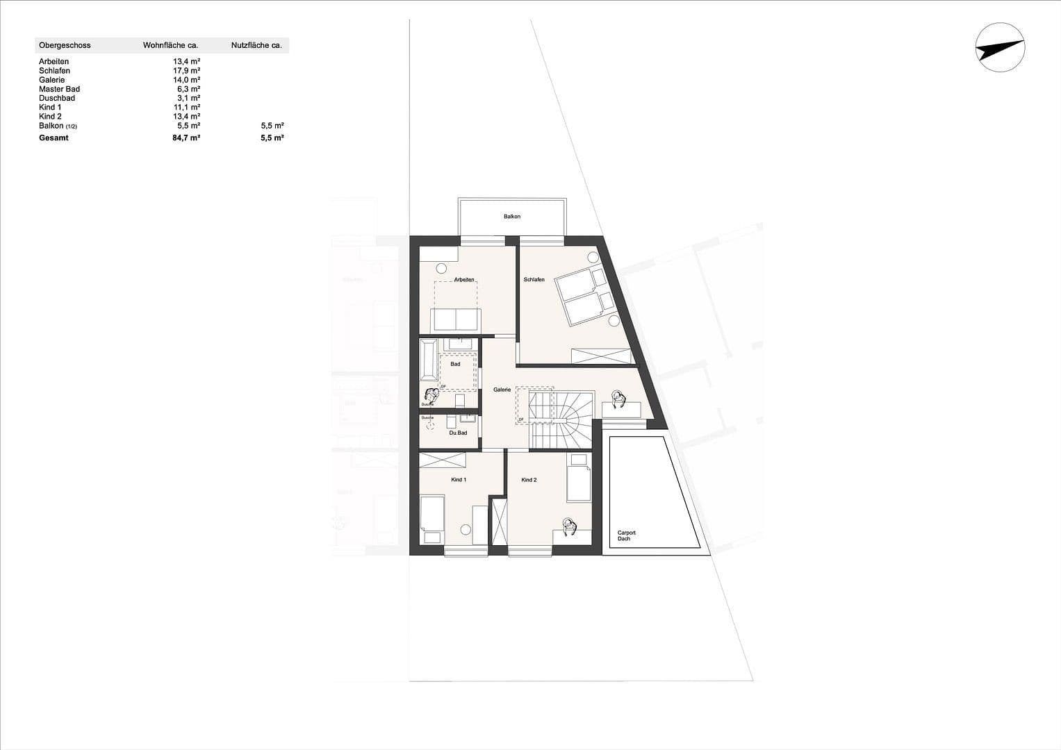
Im Obergeschoss befinden sich zwei Kinderzimmer, die sich ein Kinderbad teilen, ein großes und komfortables Elternschlafzimmer mit eigenem Badezimmer sowie ein geräumiges Arbeitszimmer, das sich auch ideal als Ankleidezimmer nutzen lässt. Eine Galerie eröffnet zusätzliche Möglichkeiten als Arbeitsplatz, Leseecke oder gemütlicher Rückzugsbereich. Auch hier sorgen große Fensterflächen für eine helle und freundliche Atmosphäre.
V patře se nacházejí dvě dětské pokoje, které si společně užívají dětskou koupelnu, velká a komfortní ložnice pro rodiče s vlastní koupelnou a prostorná pracovna, jež se dá ideálně využít také jako šatna. Galerie nabízí další možnosti využití – jako pracovní koutek, čtecí zónu nebo pohodlné útočiště. I zde přispívají velká okna k světlé a přívětivé atmosféře.
Das Haus verfügt über einen eigenen Garten, eine großzügige Terrasse und einen Balkon mit Freisitz, auf dem Sie die Abendsonne in westlicher Ausrichtung genießen können – ideal für entspannte Stunden im Freien.
Dům disponuje vlastní zahradou, velkou terasou a balkonem s posezením, kde si můžete vychutnat západní odpolední slunce – ideální pro poklidné chvíle venku.
Dieses Reihenhaus verbindet modernes Wohnen mit durchdachter Architektur, lichtdurchfluteten Räumen und einem privaten Außenbereich. Die Kombination aus offener Raumgestaltung, außergewöhnlichem trapezförmigem Design, großen Fenstern, hochwertigen Details und flexiblen Raumangeboten macht es zu einem perfekten Zuhause für Familien und Paare, die urbanes Wohnen mit hoher Lebensqualität schätzen.
Tento řadový dům spojuje moderní bydlení s promyšlenou architekturou, prostory prosvětlenými přirozeným světlem a soukromým venkovním prostorem. Kombinace otevřeného konceptu, výjimečného lichoběžníkového designu, velkých oken, kvalitních detailů a flexibilního uspořádání místností z něj činí ideální domov pro rodiny a páry, kteří si cení městského bydlení s vysokou kvalitou života.
Die Immobilie befindet sich in einer urban geprägten und gut angebundenen Wohnlage von Neuperlach, die durch kurze Wege zu Nahversorgern, Schulen und dem öffentlichen Nahverkehr überzeugt.
Die Umgebung ist geprägt von einer ausgewogenen Mischung aus modernen Wohnanlagen, Grünflächen sowie einer gut ausgebauten Nahversorgungsstruktur. Das Quartier bietet eine angenehme, urbane Wohnqualität mit gleichzeitig hoher Alltagstauglichkeit.
Nemovitost se nachází v městské, dobře dostupné lokalitě Neuperlach, která svými krátkými vzdálenostmi ke každodenním potřebám, školám a místní dopravě osloví každého. Okolí je charakterizováno vyváženou směsí moderních bytových komplexů, zelených ploch a dobře rozvinuté občanské vybavenosti. Celé čtvrti nabízí příjemnou městskou kvalitu bydlení s vysokou praktickou uplatnitelností v každodenním životě.
In fußläufiger Nähe stehen zahlreiche Einkaufsmöglichkeiten, Supermärkte, Bäckereien, Apotheken und verschiedene Dienstleister zur Verfügung. Mehrere Kindertagesstätten sowie Schulen befinden sich im direkten Umfeld, was die Lage insbesondere für Familien attraktiv macht. Parks und Grünanlagen in der Umgebung sorgen für erholsame Rückzugsorte und laden zu Freizeitaktivitäten im Freien ein.
V bezprostřední blízkosti se nachází řada obchodů, supermarkety, pekárny, lékárny a různí poskytovatelé služeb. V bezprostředním okolí se rovněž nachází několik mateřských škol a škol, což činí lokalitu obzvláště atraktivní pro rodiny. Parky a zelené plochy v okolí poskytují relaxační zázemí a vybízejí k venkovním rekreačním aktivitám.
Die Anbindung an den öffentlichen Nahverkehr ist sehr gut: Eine Bushaltestelle befindet sich nur wenige Gehminuten entfernt. Von dort aus bestehen schnelle Anschlüsse an die U-Bahnstationen Neuperlach Zentrum und Neuperlach Süd, die direkte Verbindungen in die Münchner Innenstadt bieten.
Über den Karl-Marx-Ring und die Zehntfeldstraße ist der Standort zudem hervorragend in das städtische Straßennetz eingebunden. Die Autobahn A8 sowie der Mittlere Ring sind in kurzer Fahrzeit erreichbar, was Pendlern und Gewerbetreibenden Flexibilität bietet.
Dopravní dostupnost k veřejné hromadné dopravě je výborná: autobusová zastávka se nachází jen pár minut chůze od domu. Odtud jsou k dispozici rychlá spojení na metro stanice Neuperlach Zentrum a Neuperlach Süd, které nabízejí přímé spoje do centra Mnichova. Lokalita je rovněž skvěle propojena s městskou silniční sítí přes Karl-Marx-Ring a Zehntfeldstraße. Dálnice A8 a střední okruh jsou dosažitelné během krátké jízdy, což poskytuje flexibilitu především dojíždějícím a podnikatelům.
Neuperlach zählt zu den größten und am besten erschlossenen Siedlungsgebieten im Münchner Osten. Der Stadtteil zeichnet sich durch ein breites Angebot an Einkaufszentren, Sportmöglichkeiten, medizinischer Versorgung und Gastronomie aus. Gleichzeitig besteht eine gute Verbindung zu den umliegenden Stadtteilen sowie zum Münchner Umland.
Neuperlach patří k největším a nejlépe vybudovaným sídlištním oblastem na východě Mnichova. Tato čtvrť se vyznačuje širokou nabídkou obchodních center, sportovních zařízení, zdravotnické péče a gastronomických zařízení. Zároveň má velmi dobrou dostupnost do okolních městských částí i okolí Mnichova.
Dieser Standort, bietet eine gut angebundene und alltagsnahe Wohnlage mit ausgezeichneter Infrastruktur. Die Kombination aus Grünflächen, moderner Stadtentwicklung und schneller Erreichbarkeit macht die Adresse sowohl für Familien als auch für Berufstätige und Dienstleister ausgesprochen attraktiv.
Tato lokalita nabízí dobře dostupné a praktické bydlení s vynikající infrastrukturou. Kombinace zelených ploch, moderního městského rozvoje a rychlé dostupnosti činí tuto adresu velmi atraktivní jak pro rodiny, tak pro pracující a poskytovatele služeb.
Hochwertige Ausstattung:
• Massive monolithische Ziegelbauweise für beste Wärmedämmung und Langlebigkeit
• KfW 55 Standard für niedrige Energiekosten
• Fußbodenheizung in allen Räumen
• Hochwertiger Echtholzparkett
• Großformatige Fliesen in Bädern und WC
• Fensterbänke aus Naturstein (Granit)
• Elektrische Rollläden für Komfort und Sicherheit
• Marken-Sanitärobjekte von namhaften Herstellern
Kvalitní vybavení:
• Masivní monolitická cihlová konstrukce zajišťující nejlepší tepelnou izolaci a dlouhověkost
• Standard KfW 55 pro nízké náklady na energii
• Podlahové vytápění ve všech místnostech
• Kvalitní parkety z masivního dřeva
• Velkoformátová dlažba v koupelnách a na toaletách
• Okenní parapety z přírodního kamene (žula)
• Elektrické rolety pro pohodlí a bezpečnost
• Sanita od renomovaných výrobců
Bei diesem Projekt handelt es sich um die exklusive Umsetzung eines baurechtlich abgesicherten Wohnkonzepts – entwickelt in enger Zusammenarbeit mit erfahrenen Architekten, zertifizierten Immobiliengutachtern und Grundstücksbewertern, Marketingexperten sowie dem Bauberater und Betreuer des ausführenden Bauunternehmens.
Jedná se o exkluzivní realizaci stavebně právně zajištěného konceptu bydlení – vyvinutého ve úzké spolupráci se zkušenými architekty, certifikovanými znaleckými odhady nemovitostí a specialisty na hodnocení pozemků, marketingovými experty a stavebním poradcem spolu s vedoucím stavební firmy.
Die grundstücksbezogenen Baunebenkosten, wie z. B. Anschlusskosten, Erdbauarbeiten, Abriss des Altbestands oder Gestaltung der Außenanlagen, sind bereits im Hauspreis enthalten. Damit bedeutet „schlüsselfertig“ hier wirklich schlüsselfertig, ohne dass Sie sich um zusätzliche Kosten oder Organisation kümmern müssen.
Pozemkové příslušné náklady na výstavbu, jako jsou např. náklady na přípojky, zemní práce, demolice stávající stavby nebo úprava venkovních ploch, jsou již zahrnuty v ceně domu. Tedy zde "na klíč" skutečně znamená na klíč, aniž byste se museli starat o další náklady či organizaci.
Aus unserem Beraterteam steht Ihnen ein unabhängiger Finanzierungsexperte zur Verfügung, der ein individuell auf Ihre Bedürfnisse zugeschnittenes Finanzierungskonzept erstellt. Dabei profitieren Sie von den bestmöglichen Markt-Konditionen und der optimalen Nutzung aller aktuellen Fördermöglichkeiten. Dieser exklusive Service ist für unsere Mandanten im Leistungsumfang enthalten und kostenlos.
Náš poradenský tým vám poskytne službu nezávislého finančního experta, který vám připraví finanční koncept přesně odpovídající vašim potřebám. Tím si užijete co nejlepší tržní podmínky a optimální využití všech aktuálních dotačních možností. Tato exkluzivní služba je pro naše klienty součástí nabízeného servisu a je bezplatná.
Alle von uns bereitgestellten Informationen beruhen auf Angaben des Verkäufers bzw. der Verkäuferin. Für die Richtigkeit und Vollständigkeit dieser Angaben kann keine Gewähr übernommen werden. Zwischenverkauf und Irrtümer bleiben vorbehalten. Die Visualisierungen enthalten aufpreispflichtige Sonderausstattungen.
Všechny informace, které zde poskytujeme, vycházejí z údajů prodávajícího/prodávající. Za správnost a úplnost těchto údajů nelze převzít odpovědnost. Meziprodej a případné chyby vyhrazujeme. Vizualizace obsahují nadstandardní vybavení, na které se vztahují příplatky.
V okolí nemovitosti najdete
Stále hledáte to pravé?
Nastavte si hlídacího psa. Nabídky vybrané na míru dostanete souhrnně 1× denně e-mailem. S Premium profilem máte k ruce hlídačů rovnou 5 a když se něco objeví, informují vás obratem.
















