Prodej domu • 144 m² bez realitkyBremerhaven Klushof Bremen 27576
Tento řadový dům se 8 pokoji nabízí na přibližně 144 m² obytné plochy mnoho možností pro individuální úpravy. Je zvláště vhodný pro:
• rodiny, které chtějí své prostory používat flexibilně a podle vlastních představ,
• vícegenerační domácnosti s oddělenými obytnými a pracovními oblastmi,
• bydlení a práci pod jednou střechou, např. s kanceláří nebo studiem,
• hobby i řemeslníky, kteří potřebují prostor pro dílnu a sklad.
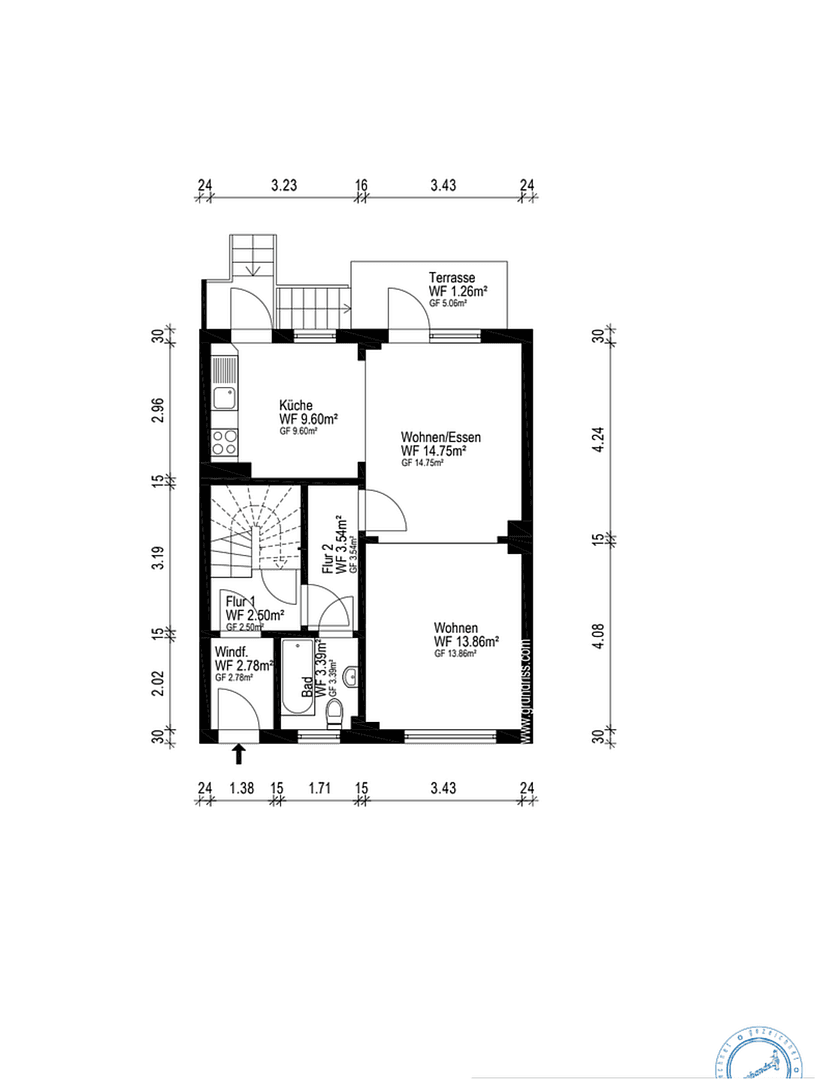
V přízemí se nachází kuchyně, obývací a jídelní část o prostorných 55,38 m². Otevřená dispozice vytváří moderní pocit bydlení. Odtud máte přímý vstup do zahrady s terasou.
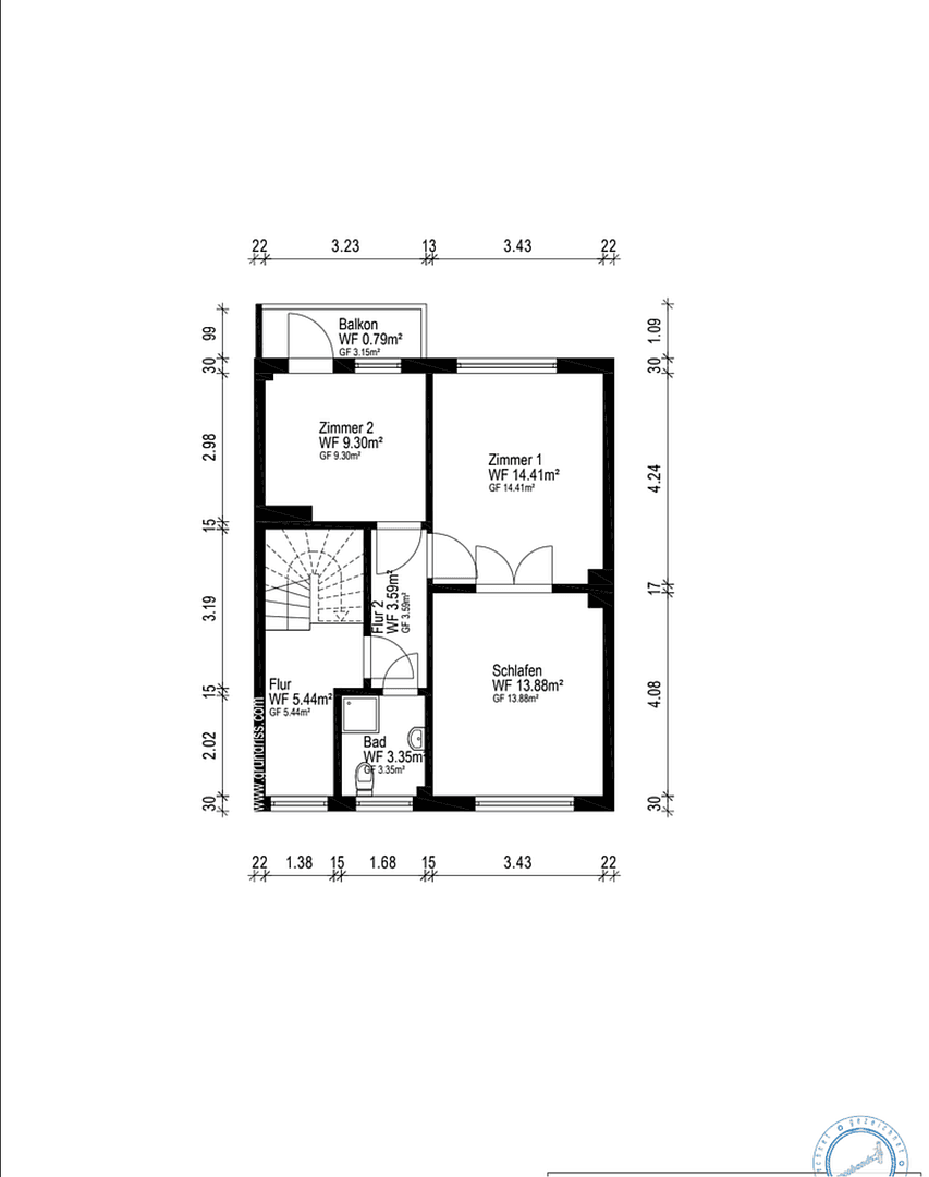
Patro nabízí na 51,60 m² klidné útočiště pro celou rodinu.
V přestavěném půdním prostoru je k dispozici dalších 41,55 m² s vlastní toaletou – ideální jako dětský pokoj, pracovní prostor nebo studio.
Kotelna doplňuje nabídku prostoru o 49,70 m² a poskytuje dostatek úložného místa a prostor pro pračku i sušičku.
Řadový dům se nachází v klidné a oblíbené rezidenční oblasti v bremerhavenské čtvrti Lehe. Okolí je plné zelených zahrad a příjemného sousedství. Obchody pro běžné potřeby, stejně jako školy a školky, jsou snadno dostupné. Velmi dobré napojení na veřejnou dopravu a blízkost k silnicím B 212 a A 27 zajišťují rychlé spojení do všech směrů. Možnosti volnočasových a rekreačních aktivit podél Weseru, kulturní nabídka i centrum města jsou také rychle dostupné.
Využijte příležitosti proměnit tento dům v Bremerhavenu-Lehe ve svůj osobní domov. Potřeba rekonstrukce není omezením, ale nabízí mnoho prostoru pro vlastní nápady a kreativní úpravy.
Prosím, žádosti realitních kanceláří!
Parametry nemovitosti
| Stáří | Nad 50 let |
|---|---|
| Stav | Před rekonstrukcí |
| PENB | F - Velmi nehospodárná |
| Plocha pozemku | 320 m² |
| Cena za jednotku | 1 388 € / m2 |
| Dostupné od | 4. 2. 2026 |
|---|---|
| Číslo inzerátu | 987645 |
| Užitná plocha | 144 m² |
| Celkem podlaží | 3 |
Co tato nemovitost nabízí?
| Balkón | |
| Terasa |
| Sklep | |
| MHD 4 minuty pěšky |
V okolí nemovitosti najdete
Stále hledáte to pravé?
Nastavte si hlídacího psa. Nabídky vybrané na míru dostanete souhrnně 1× denně e-mailem. S Premium profilem máte k ruce hlídačů rovnou 5 a když se něco objeví, informují vás obratem.






















