Prodej domu 3+1 • 87 m² bez realitkyGRUNDSTÜCK FERNBLICK EXKLUSIV NUR FÜR DANWOOD-HAUSBAU Lölling Graben Lölling Graben Kärnten 9335
Bungalow: V přiloženém PDF naleznete několik příkladů cen!
Vážené budovatelky a budovatelé,
Chcete si splnit sen o vlastních čtyřech stěnách, ale nejste si jisti, který dodavatel je pro vás ten pravý, nebo kdo vám dokáže nabídnout dům ve vámi požadovaném stylu?
S DAN-WOOD-HOUSE si můžete realizovat svůj vysněný dům – i když ještě nemáte konkrétní stavební plán. Vyberte si z 130 různých typů domů a přizpůsobte si je dle vlastních přání zcela zdarma. Kromě toho máte na výběr několik variant konstrukce zdí.
Jaký geniální poznatek: Nejde o to, co DAN-WOOD nebo jednotlivé firmy nabízejí, ale o to, jak vypadají vaše individuální představy o vysněném bydlení! Zde vám nabídneme odborné poradenství, které vás nadchne!
Nabízím vám své individuální poradenství pro váš projekt! Začínám úvodní konzultací, kterou preferuji přímo na vašem stavebním pozemku. Tvar, výškový rozdíl a orientace pozemku jsou zde absolutními hlavními faktory!
Ještě nemáte pozemek? Žádný problém! Rád vám poskytnu přehled o mnoha úžasných možnostech designu domů DAN-WOOD. Existuje tolik zajímavých aspektů, které je třeba projednat: typ domu, dispozice, tvar střechy, vytápění, elektroinstalace, zastínění a možné vybavení jako například „chytrý dům“.
Je opravdu důležité znát celkové finanční náklady včetně ukázkového provedení!
S potěšením vám oznamuji, že provedu předběžné ukázkové provedení, abyste tyto náklady mohli snadno započítat! Je to opravdu velká pomoc – nejenže si můžete sestavit finanční plán, ale také hledat vhodné financování.
Neváhejte a kontaktujte mě nyní! 0676 5537747
Objednávku katalogu zašlete pod názvem „Katalog Serie Today“ na tatjana.wyss@danwood.at
Při objednávce uveďte prosím vaši adresu a telefonní číslo, na kterém vás můžeme kontaktovat.
Na vašem pozemku nebo v …
Güssing: cca 2 600 m², lokalita je zcela rovinná, pozemkové rozměry a umístění jsou volitelné. Velikosti od 500 m² do 1500 m².
Zde jsou stavební pozemky první třídy! V nejlepší lokalitě a s dechberoucím výhledem na nádherný hrad Güssing!
Güssing nabízí perspektivní, dostupný a energeticky nezávislý život v přírodě, což činí investici do nemovitosti zde strategickou hodnotovou investicí.
Proč Güssing
Energetický průkopník a udržitelnost:
– Město je energeticky soběstačné a mezinárodně uznávané.
– Vysoké pokrytí (více než 85 %) regionálním teplem z biomasy zajišťuje stabilní a výhodné náklady na vytápění.
Dostupné ceny nemovitostí:
Ceny jsou stále výrazně nižší než rakouský průměr, což umožňuje splnit sen o vlastním domově s prostornými pozemky.
Silná infrastruktura a kvalita života:
Jako okresní předměstí zajišťuje Güssing krátké vzdálenosti a nejlepší dostupnost služeb.
Plánované velké investice:
– Nový vzdělávací kampus a moderní lékařské centrum (od roku 2026).
– Kulturní centrum (hrad Güssing) a blízkost termálních lázní.
Kompletní otevření S7 přináší značné výhody pro Güssing a jeho obyvatele:
– Rychlejší spojení s metropolitními oblastmi: Rychlá silnice výrazně zkracuje jízdu na dálnici A2 směrem na jih, čímž se výrazně zkracují cesty do Grazu a Vídně.
– Odlehčení regionu: Nová trať přesměrovává tranzitní dopravu, která dříve zatěžovala obce jako Fürstenfeld a Rudersdorf.
– Ekonomické impulsy: Nové spojení, mimo jiné přes přípojku u Rudersdorfu/Dobersdorfu a blízkost spojení u Königsdorfu, posiluje Güssing jako okresní předměstí a podnikatelské centrum díky lepší dostupnosti a podpoře nových průmyslových zón.
Stabilita hodnoty a růstový potenciál:
Cílené komunální investice do infrastruktury, oživení centra města a technologického centra zajišťují dlouhodobou stabilitu hodnoty nemovitostí.
Místní strategie je zaměřena na zvládnutí demografických výzev a na vybudování Güssingu jako atraktivního místa pro bydlení a podnikání.
Cílová skupina:
Rodiny hledající budoucnost, bezpečnost a přírodu, ale i všichni, kdo kladou důraz na nízké náklady na energii a ekologickou odpovědnost.
Další pozemky v:
Pozemek, 8323 Kohldorf: Stavební pozemek se spoustou slunce v východním štýrském kopcovitém terénu, 15 km od Grazu!
Velikost: 758 m², kupní cena: € 66 000,––
Pozemek, 8323 Kohldorf: Slunečný stavební pozemek v Kohldorfu, 15 km východně od Grazu!
Velikost: 787 m², kupní cena: € 69 000,––
Pozemek, 8311 Markt Hartmannsdorf: Plně inženýrsky připravený, slunečný stavební pozemek v Markt Hartmannsdorf
Velikost: 920 m², kupní cena: € 53 000,––
Pozemek, 9335 Lölling Graben: Stavební pozemek s nádherným výhledem do dálky v malebném rakouském karpatském prostředí
Velikost: 1001 m², kupní cena: € 50 000,––
Pozemek, 8075 Hart bei Graz: Slunečný pozemek na okraji Grazu
Velikost: 1980 m², kupní cena: € 475 000,––
Pozemek ke koupi v Stainzu: Slunečný pozemek na okraji Stainzu
Velikost: 825 m², kupní cena: € 149 000
Mezi vlastníkem pozemku a dodavatelem domu neexistuje žádné hospodářské spojení.
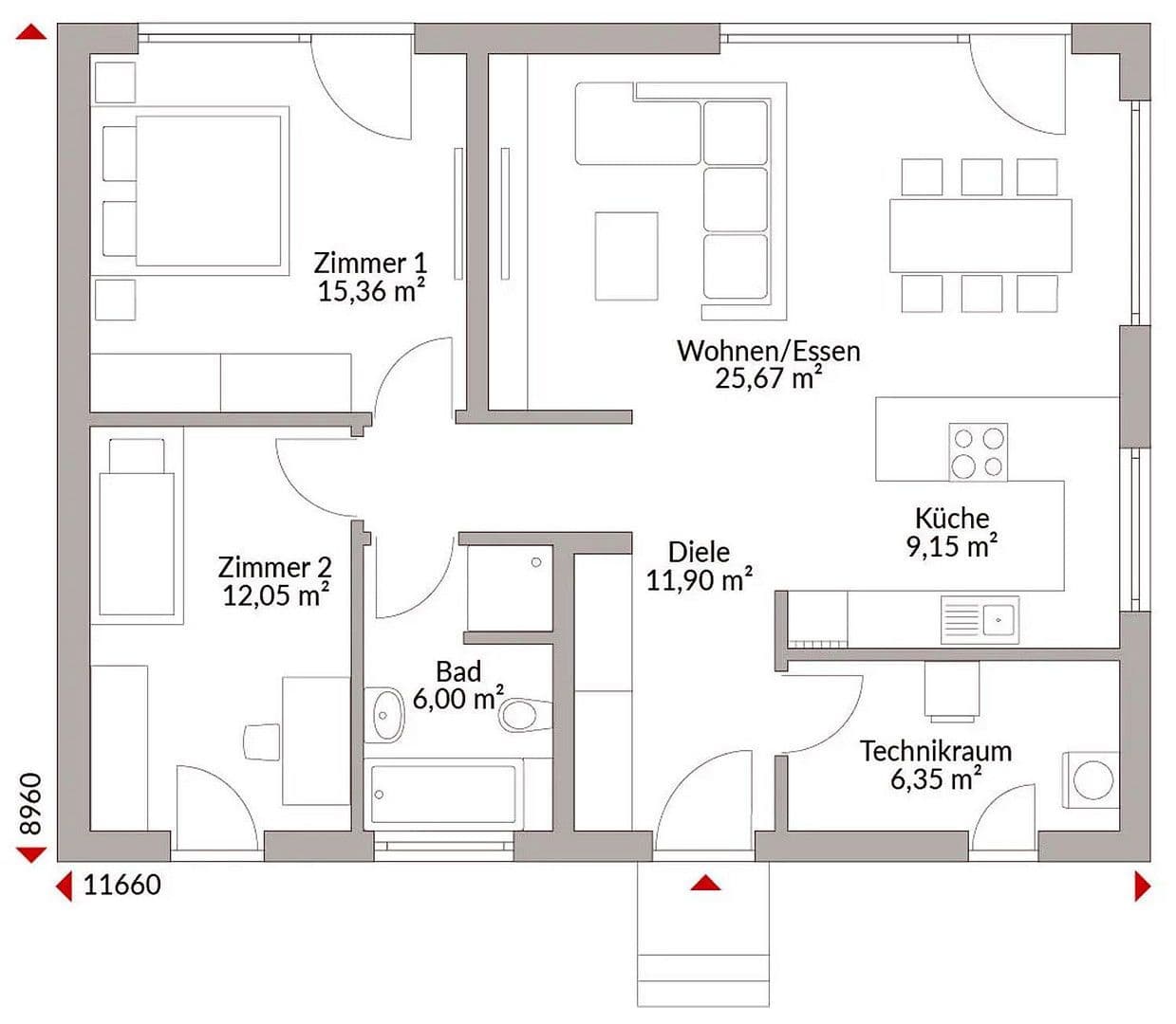
BUNGALOW s 3 pokoji, koupelnou, WC, exkluzivním vybavením!
Pozemek: 500 m² / 1000 m² / 1500 m² – dle přání k dispozici
V ceně je zahrnuto:
– Výstavba na klíč (nábytek zůstane – můžete ihned bydlet!)
– Doručení a montáž od vrchní hrany základů
– Střešní konstrukce zesílená proti sněhové zátěži
– Vzduch-vodní tepelná čerpadla, podlahové vytápění
– Decentralizovaná ventilace obytných prostor s rekuperací tepla (v létě chladí)
– Elektrické žaluzie v celém domě
– Všechny podlahové krytiny dle vašeho výběru
– Všechna sanitární zařízení dle vašeho výběru
– Příprava na instalaci fotovoltaických panelů
– Kompletní balíček „bez starostí“
VOLITELNĚ: Samostatná práce je samozřejmě možná!
Poradenství – prodej
Paní Tatjana Wyss
Telefon: +43 676 553 77 47
Email: tatjana.wyss@danwood.at
Okamžité informace nebo úvodní konzultace!
Další nabídky naleznete na:
https://qr.scan.page/uploads/pdf/1751712478803_686335a001f76.pdf
Požádejte o stavební popis a katalogy!
Pro tento účel je nutné uvést vaše telefonní číslo, emailovou adresu a adresu.
Děkujeme!
V okolí nemovitosti najdete
Stále hledáte to pravé?
Nastavte si hlídacího psa. Nabídky vybrané na míru dostanete souhrnně 1× denně e-mailem. S Premium profilem máte k ruce hlídačů rovnou 5 a když se něco objeví, informují vás obratem.











