Prodej domu • 754 m² bez realitkyKrämpferufer 4 Erfurt Altstadt Thüringen 99084
Níže naleznete překlad textu do češtiny:
Udržovaný vícerodinný dům z doby zakladatelů, centrálně umístěný na okraji historického centra, avšak v klidné lokalitě.
Bytový dům se nachází mezi ulicí Stauffenbergallee a centrem Erfurtu; toto centrum i nádraží jsou snadno dosažitelné pěšky, na kole nebo tramvají.
Dům nemá vyhrazená parkovací stání. Protože je ulice osídlena pouze na jedné straně a parkování je povoleno na obou stranách chodníku, jsou k dispozici dostatečné veřejné parkovací možnosti.
Správa domu a domovník jsou přímo na místě a budou se o objekt i nadále starat.
Objekt byl kompletně zrenovován v letech 1996/1997.
Prosím, mějte na vědomí, že vyřizujeme pouze dotazy s úplnou adresou, telefonním číslem a emailovou adresou.
Objekt:
10 – rodinný dům, přízemí, 1. patro až 3. patro, podkroví, „Zweispänner“
99084 Erfurt
Krämpferufer 4
Rok výstavby: 1906
Renovace: 1996/1997
První pronájem od: 01.11.1997
Byty:
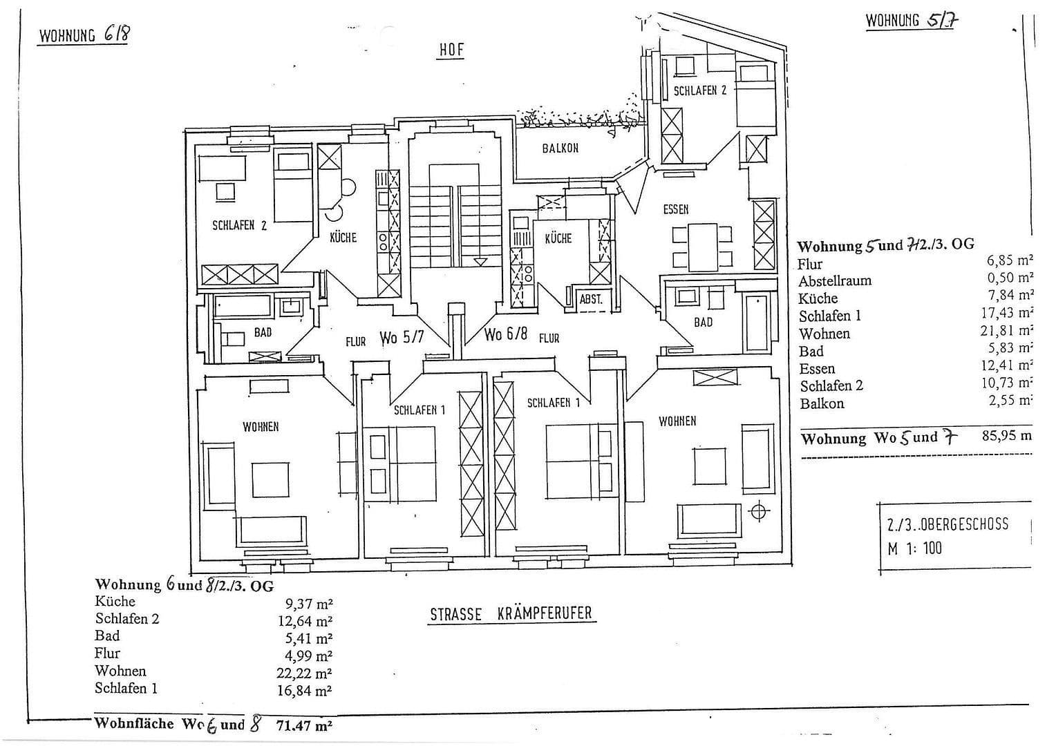
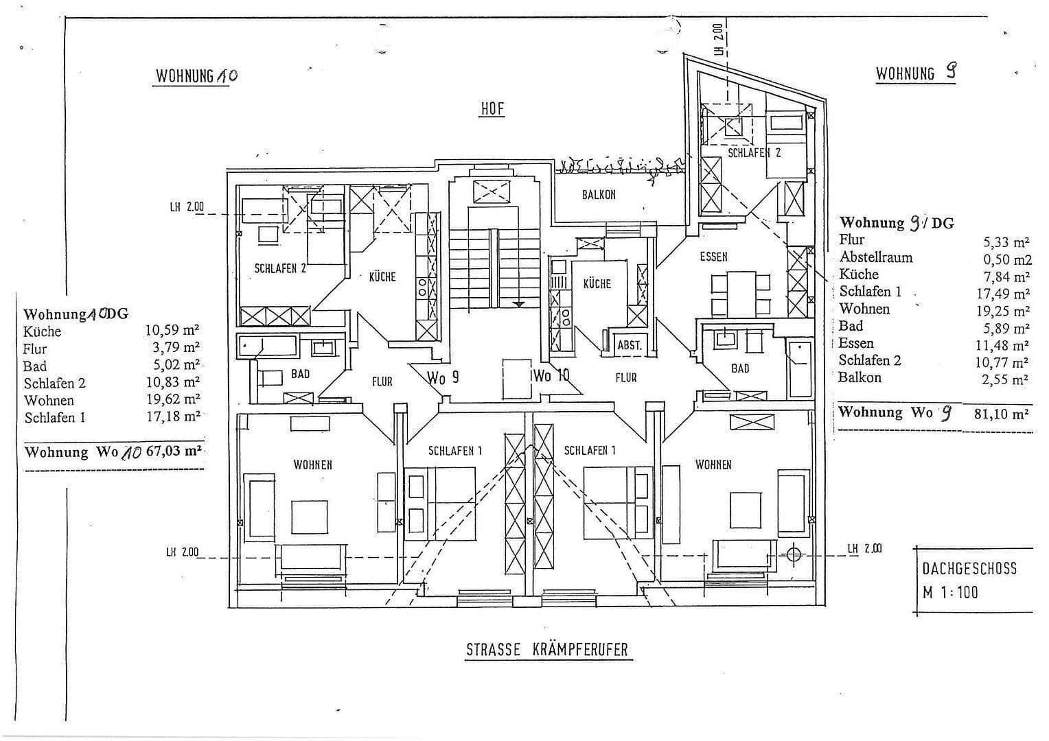
• 5 x 3,5-pokojové byty o rozloze 80 až 86 m² s balkonem (umístěné v přízemí, 1. patře až podkroví)
• 1 x 2pokojový byt o rozloze 60 m² v přízemí
• 4 x 3pokojové byty s rozlohou 67 až 71 m² (umístěné v 1. patře až podkroví)
Celková obytná plocha: 754 m²
Osvědčení o vymezení bytové jednotky (WEG) je k dispozici.
Získaný čistý nájem (bez služeb) v roce 2025: 67 152 €
(Plně obsazeno)
Což odpovídá průměrnému nájemnému 7,42 €/m², s rozpětím od 6,40 €/m² do 8,26 €/m².
Při posledním pronájmu k 01.02.2025 byl u 3pokojového bytu bez balkonu dosažen nájem 8,26 €/m².
Poslední navýšení nájemného proběhla k 01.10.2024.
Energetický štítek ze dne 20.11.2025, 74,2 kWh/(m²·rok)
Energetická třída: B
Pozemek: 280 m²
Katastrální území: Erfurt-Mitte, listina 127, parcelní číslo 67
Kompletní renovace v letech 1996/1997 zahrnovala následující opatření:
• Obnova všech rozvodů pro dodávky i odvody
• Instalace tepelné izolace na straně směrem k dvoru (6 cm)
• Nové uspořádání dispozic
• Obnova dveří
• Obnova elektroinstalace
• Nová centrální plynová topná jednotka
• Nový komín
• Cementový podklad v sklepě
• Litý asfalt v bytech
• Úprava podkroví
• Kompletně nová střešní konstrukce s novou střešní krytinou
• Montáž střešních oken
• Kontrola dřevěných stropních trámů a jejich částečná výměna tam, kde bylo třeba
• Všechny koupelny jsou vybaveny vanou
• V kuchyních jsou instalována připojení pro pračky
• Schodiště bylo obloženo mramorovou dlažbou
• K dispozici je a využívá se hvězdicové kabelové propojení pro televizní signál
• Obnova oken – dřevěná okna s izolačním dvojsklem, s hodnotou K 1,3 a zvukovou třídou 2
• Vybudování pěti propojených (navrstvených) balkonů
• Fasáda na straně ulice byla vyčištěna, poškozená místa opravena, částečně nově omítkována
• Kuchyně, koupelny i obytné chodby jsou obklady dlažbou
• Pro dimenzování a plánování topného systému byla najata inženýrská kancelář
Novější práce:
• Podlahové krytiny v bytech jsou převážně laminátové (v bytě č. 2 je stále koberec)
• Ohřívač teplé vody byl v roce 2021 obnoven
• Cirkulační čerpadlo teplé vody bylo pořízeno v roce 2020
• Nádržní plnicí čerpadlo bylo instalováno v roce 2021
• V bytě č. 9 (pouze 1 DFF) byla provedena obnova v únoru 2017
• V bytě č. 10 (2 DFF, z toho 1 DFF) byla obnova provedena v září 2023
Parametry nemovitosti
| Stáří | Nad 50 let |
|---|---|
| Číslo inzerátu | 987942 |
| Užitná plocha | 754 m² |
| Celkem podlaží | 4 |
| Stav | Dobrý |
|---|---|
| PENB | B - Velmi úsporná |
| Plocha pozemku | 280 m² |
| Cena za jednotku | 1 923 € / m2 |
Co tato nemovitost nabízí?
| Balkón | |
| Sklep | |
| MHD 3 minuty pěšky |
V okolí nemovitosti najdete
Stále hledáte to pravé?
Nastavte si hlídacího psa. Nabídky vybrané na míru dostanete souhrnně 1× denně e-mailem. S Premium profilem máte k ruce hlídačů rovnou 5 a když se něco objeví, informují vás obratem.


















