
Pronájem bytu 4+1 • 103 m² bez realitky, Bavorsko
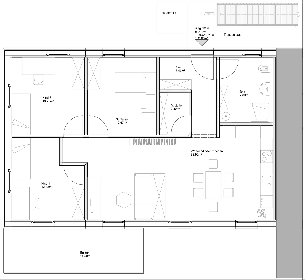
, BavorskoMHD 4 minuty pěšky • Výtah • ParkováníZažijte komfort bydlení v této exkluzivní světlé novostavbě ve Vilsbiburgu, která byla postavena ekologickou masivní dřevostavbou dle standardu KfW 40 EE a je poprvé obsazena. S obytnou plochou 102,42 m² a čtyřmi pokoji nabízí tento byt spoustu prostoru pro rodiny či páry, které kladou důraz na prostorné bydlení. Byt disponuje velkým balkonem, jenž zve k relaxaci. Atraktivní vybavení s vysoce kvalitními ekologickými materiály poskytuje zdravý komfort bydlení na nejvyšší úrovni. Výtah usnadňuje přístup ke všem patroům a sklepní místnost umožňuje další úložný prostor. Topení zajišťují moderní infračervené topné tělesa. Decentralizovaný ventilační systém s rekuperací tepla udržuje nízké náklady na vytápění a zajišťuje stálý přísun čerstvého vzduchu. Spolu s dubovými masivními dřevěnými podlahami a odhalenými dřevěnými prvky na vnějších stěnách a stropě se byt stává unikátním zážitkem bydlení. Navíc je zde možnost využití solární energie (fotovoltaika) a také nabíjecí možnosti pro elektrická auta. Volitelně může být k dispozici vybavená kuchyň za 70 €/měsíc. Dvě venkovní parkovací místa (25 €/měsíc) jsou rovněž k dispozici.
Byt je k dispozici ihned. Domácí zvířata nejsou povolena.
Prohlídky jsou možné kdykoli.
Město Vilsbiburg vám nabízí dokonalou symbiózu přírodní rekreace a městského komfortu. Zakotvené v malebném údolí řeky Vils se tato lokalita pyšní vysokou hodnotou pro volnočasové aktivity: ať už jde o procházky podél řeky Vils, výlety do okolních lesů nebo aktivní společenský život – zde naleznou rodiny ideální prostředí.
Všechny vzdělávací instituce od základních škol až po gymnázia a četné možnosti péče o děti jsou přímo v místě a často dostupné pěšky nebo bezpečně na kole. Lékařskou péči zajišťuje místní nemocnice (LAKUMED) a řada specialistů na špičkových úrovních. Zde si užijete klid maloměsta, aniž byste se museli vzdát výhod moderní infrastruktury.
V okolí nemovitosti najdete
Stále hledáte to pravé?
Nastavte si hlídacího psa. Nabídky vybrané na míru dostanete souhrnně 1× denně e-mailem. S Premium profilem máte k ruce hlídačů rovnou 5 a když se něco objeví, informují vás obratem.









