
Pronájem bytu 3+1 • 82 m² bez realitkyBreitenweg 1A, , Porýní-Falc
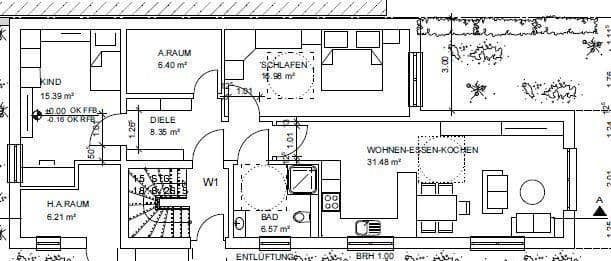
Breitenweg 1A, , Porýní-FalcMHD 2 minuty pěšky • ParkováníK pronájmu je exkluzivní 3-pokojový novostavba byt umístěný v přízemí moderního čtyřrodinného domu v Römerberg-Mechtersheim, Breitenweg 1A. Jedná se o první obsazení, které spojuje nejvyšší komfort bydlení s moderním, energeticky úsporným způsobem výstavby. Bezbariérový byt má obytnou plochu cca 82 m² a překvapí promyšlenou dispozicí i velmi kvalitním vybavením.
Byt nabízí prostorný obývací a jídelní kout s přímým přístupem na dlážděnou terasu, která bude dokončena v únoru. Odtud vede samostatný zadní vchod s přímým přístupem k parkovacím místům. Vnější prostor doplňuje malá zahrádka s umělým trávníkem, která poskytuje další prostor pro relaxaci na čerstvém vzduchu.
Byt disponuje vysoce kvalitně vybavenou koupelnou s moderní bezbariérovou sprchou, stylovým sanitárním nábytkem a prvotřídními dlaždicemi, čímž důsledně naplňuje vysoké nároky na komfort a funkčnost.
Všechny obytné místnosti jsou opatřeny hladkými stěnami a kvalitními tapetami z glattvlies. Vytápění je zajištěno prostřednictvím moderního vzduch-voda tepelným čerpadlem v kombinaci s podlahovým vytápěním ve všech místnostech. Navíc je v letních měsících možné využít podlahové vytápění i k chladícímu efektu místností. Trojitě zasklená okna a elektrické rolety ve všech místnostech přispívají k vysokému komfortu bydlení, energetické účinnosti třídy A+ a příjemné atmosféře uvnitř. Moderní videointerkomunikační systém zase zvyšuje bezpečnost a komfort.
Byt je vybaven moderními digitálními vodoměry a měřiči tepla, takže veškeré spotřeby lze transparentně a pohodlně sledovat pomocí aplikace.
Parkovací stání jsou k dispozici samostatně k pronájmu a účtují se 50,00 € za místo za měsíc. Lze si pronajmout jedno či dvě parkovací místa.
Lokalita v Römerberg-Mechtersheim vyniká klidným a upraveným obytným prostředím, které zároveň nabízí velmi dobrou infrastrukturu. Obchody, lékaři, lékárny, stejně jako mateřské školy a školy jsou snadno dostupné. Okolí je poznamenáno hojností zeleně, poli a nedalekými rýnskými loukami, které zvou ke procházkám a volnočasovým aktivitám. Oblíbené koupaliště se nachází v bezprostřední blízkosti a zejména v letních měsících nabízí vysokou kvalitu volnočasových a relaxačních aktivit. Současně zde existují dobrá dopravní spojení směrem do Speyeru, Germersheimu, Ludwigshafenu a Mannheimu, což činí byt velmi atraktivním i pro pendlery.
V okolí nemovitosti najdete
Stále hledáte to pravé?
Nastavte si hlídacího psa. Nabídky vybrané na míru dostanete souhrnně 1× denně e-mailem. S Premium profilem máte k ruce hlídačů rovnou 5 a když se něco objeví, informují vás obratem.









