Prodej kanceláře • 739 m² bez realitkyDönseler Straße 4, , Dolní Sasko
Velkorysý, zrekonstruovaný komerční objekt s kancelářskými, ordinacemi a výrobními prostory a s apartmánem pro nájemce v Dickelu.
Budova byla postavena v roce 1955 jako školní budova a v roce 2003 byla kompletně zrekonstruována.
Hlavní body:
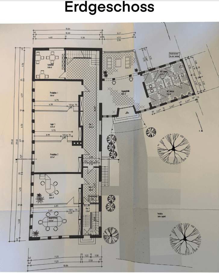
• Přibližně 647 m² kancelářských/ordinací prostor
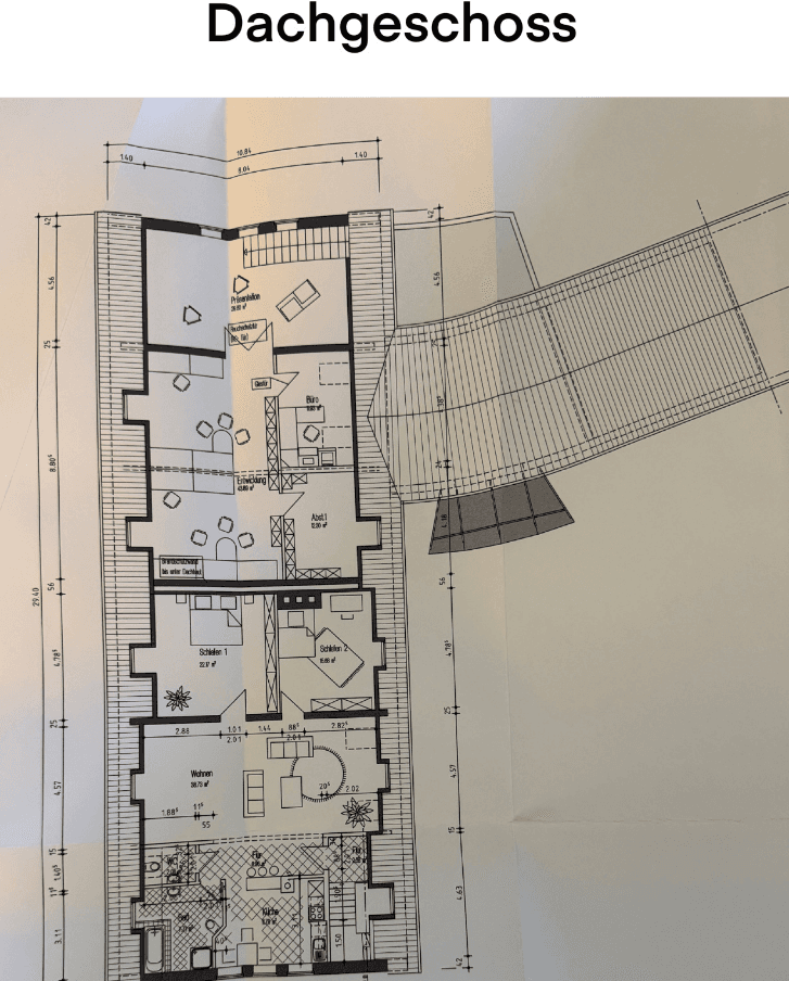
• Přibližně 92–107 m² apartmán pro nájemce
• 3 podlaží (sklep, přízemí, nadzemí)
• Ústřední topení (plyn)
• 10 parkovacích míst na vlastním dvoře
• Velkorysý pozemek o rozloze cca 4 350 m²
• Rentgenově chráněný bunker ve sklepě
• Půda s možností dalšího využití
Ideální pro firmy, ordinace, výrobu, laboratoře nebo řemeslné provozy. Flexibilní dispozice prostor a světlé místnosti umožňují okamžité využití nebo individuální úpravy. Integrovaný apartmán pro nájemce je vhodný jako byt pro vedoucího provozu, pro zaměstnance nebo k samostatnému pronájmu.
Nemovitost se nachází v klidné, venkovské oblasti v malebné obci Dickel (Dolní Sasko).
Infrastruktura a okolí:
• Přibližně 4 km do Rehden, kde naleznete: EDEKA, ALDI, lékárnu, pobočku pošty
• Mateřská škola a základní škola v blízkosti
• Veřejná doprava dostupná pěšky
• Dobrá dostupnost do měst Barnstorf a Diepholz a k regionálním dálnicím
• Obklopeno spoustou zeleně, přírody a možnostmi volnočasových aktivit (turistické a cyklistické stezky)
Lokalita kombinuje klidné pracovní prostředí s dobrou dostupností pro zaměstnance, zákazníky a dodavatele.
Detaily interiéru a vybavení:
• Podlahy: dlaždice, kámen, vinyl
• Sanitární vybavení: vana, hostinská toaleta
• Kuchyň: vestavěná kuchyň v apartmánu pro nájemce
• Zvláštnosti: zimní zahrada, terasa, zahrada, sklep, půda, rentgenově chráněný bunker
• Topení: ústřední topení, palivo plyn
• Parkovací místa: 10 venkovních parkovacích míst
Stav: zrekonstruováno a ihned k využití
Dostupnost: dle dohody
Rok výstavby: 1955 (rekonstrukce 2003)
Pozemek: 4 350 m², s možností další výstavby
Zvláštnost: apartmán pro nájemce, půda, rentgenově chráněný bunker
Využití: kombinace komerčního a rezidenčního využití
Možnost online prohlídky
Tento komerční objekt nabízí historii, prostor, flexibilitu a rozvojový potenciál – ideální pro firmy, které hledají klidnou lokalitu s dobrou infrastrukturou.
Parametry nemovitosti
| Stáří | Nad 50 let |
|---|---|
| Podlaží | 1. podlaží z 3 |
| Plocha kanceláře | 739 m² |
| Stav | Po rekonstrukci |
|---|---|
| Číslo inzerátu | 988415 |
| Cena za jednotku | 744 € / m2 |
Co tato nemovitost nabízí?
| Sklep | |
| Parkování | |
| Terasa |
| MHD 2 minuty pěšky |
V okolí nemovitosti najdete
Stále hledáte to pravé?
Nastavte si hlídacího psa. Nabídky vybrané na míru dostanete souhrnně 1× denně e-mailem. S Premium profilem máte k ruce hlídačů rovnou 5 a když se něco objeví, informují vás obratem.
























