Prodej domu 7+1 • 226 m² bez realitky, Dolní Sasko
, Dolní SaskoMHD 2 minuty pěšky • Parkování • GarážExkluzivní architektonický dům (rok 2017) v klidné svahu na okraji lesa v Bilshausenu u Göttingenu. Přibližně 226 m² obytné plochy (cca 271,2 m² užitné plochy) se nachází na slunném pozemku o rozloze 952 m² a nabízí celkem 7 místností, moderní tepelné čerpadlo a energeticky úspornou stavbu na úrovni pasivního domu (16,9 kWh/m²·rok). Prostorné skleněné plochy, luxusní koupelny, krytá terasa a jižně orientovaná zahrada se třemi terasami a nezastavitelným výhledem na přírodu a les vytvářejí jedinečný pocit z bydlení. Nabídku doplňuje izolační dvojgaráž s přímým vstupem do domu.
Ideální pro rodiny, které chtějí kombinovat bydlení v přírodě s moderním designem, klidem, soukromím a rychlým spojením s Göttingenem.
Tento výjimečný architektonický dům byl postaven v roce 2017 za použití kvalitní zděné techniky a spojuje moderní design s energeticky úspornou technikou a zároveň nabízí vzácnou polohu na svažitém pozemku u lesa. Nemovitost se prezentuje ve stavu jako nový a mimořádně udržovaném, přičemž zaujme čistými architektonickými liniemi, prostornými místnostmi naplněnými světlem a vysoce kvalitním vybavením.
Velkorysé, podlahové až ke stropu sahající skleněné plochy otevírají výhled do okolní přírody a vytvářejí tak zvláštní atmosféru bydlení s trvale nezastavitelným výhledem na přírodu a les. Vnitřní a vnější prostory plynule navazují jeden na druhý a dodávají pocit prostornosti, klidu i vysoké kvality života.
Jedním z hlavních lákadel je propracovaná designová exteriérová úprava s terasovitým zahradním konceptem, kdy několik úrovní propojuje architekturu s krajinou do harmonického celku. Tři terasy – z nichž jedna je velkorysá terasou z Bangkirai dřeva a nabízí různé místa pro pobyt s optimálním orientací ke slunci. Elegantní vodní prvek, chytré osvětlení, vyzrálá živá plotová kultura a kvalitní výsadba s trávami, levandulí a dalšími pečlivě vybranými rostlinami vytvářejí poklidnou, elegantní atmosféru a podtrhují exkluzivní charakter nemovitosti. Integrovaný kapkový zavlažovací systém zaručuje pohodlnou a udržitelnou péči o zahradu.
Díky moderní technologii tepelného čerpadla a energeticky úsporné výstavbě nemovitost nabízí extrémně nízké náklady na energie, technologie zajišťující budoucnost a udržitelné bydlení na vysoké úrovni.
Unikátní poloha přímo u retenční nádrže – se pouze jedním bezprostředním sousedem a bez zástavby na zadní straně – zaručuje maximální míru klidu, soukromí a výhledu. Pravidelné pozorování volně žijících zvířat na vlastní zahradě podtrhuje blízkost přírody a dodává tomuto domovu výjimečnou kvalitu života.
Nemovitost se nachází v klidné svažité poloze na okraji lesa v Bilshausenu (okres Göttingen) v ustálené obytné ulici bez průjezdu. Poloha spojuje bydlení v přírodě s vysokou kvalitou života a výbornou dostupností univerzitního města Göttingen.
Doprava je jak autem, tak veřejnou dopravou velmi dobrá: Göttingen je dosažitelné přibližně za 20 minut (cca 18 km) autem. Kromě toho existuje autobusové spojení linkou 171. Nejbližší nádraží se nachází ve sousedním Wulften, odkud pak vedou další vlaková spojení v regionu.
Bilshausen sám nabízí solidní infrastrukturu a je oblíbený zejména u rodin i dojíždějících pracovníků. Navzdory idylickému okolí máte k dispozici velmi dobrou infrastrukturu a krátké vzdálenosti ke všem nákupním a službám. Moderní obchodní řetězec Tante-Enso se nachází přímo v obci; další možnosti jako Edeka, Lidl, Rewe a Rossmann jsou v nedalekém Gieboldehausen rychle dostupné. V obci najdete také pekárny, řeznictví, zahradnictví, obchod s oděvy, kadeřnictví a poštovní pobočku.
Gastronomická nabídka je také pestrá – mezi patří například venkovský hostinec Venjakob „Venne“, hospoda Zum Löwen, kavárna Rhume-Mühlen a další gastronomická zařízení v bezprostředním okolí. Zdravotnická péče, zubní ordinace, veterinární péče, nabídky v oblasti fyzioterapie, fitness, přepravní služby i autoškola jsou rovněž v bezprostřední blízkosti, částečně dokonce ve stejné ulici.
Rodiny ocením dobrou vzdělávací infrastrukturou: V obci se nachází katolická mateřská škola i základní škola Bilshausen. Střední školy pak jsou rychle dosažitelné v Göttingenu nebo Duderstadtu.
Kromě bydlení v přírodě s četnými možnostmi pro procházky, cyklistiku a venkovní aktivity nabízí místní spolky širokou škálu sportovních a kulturních volnočasových aktivit. Navíc jsou k dispozici i volnočasové nabídky, jako například minigolfové hřiště v obci.
Nemovitost zaujme vysoce kvalitním a moderním vybavením i energeticky úspornou, technologicky budoucnost zajišťující technikou:
• Rok výstavby: 2017
• Stavba: kvalitní zděná výstavba
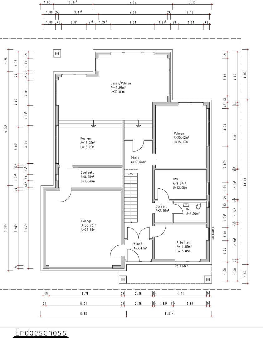
• Obytná plocha: cca 226 m²
• Užitná plocha: cca 271,2 m²
• Pozemek: cca 952 m²
• Spotřeba energie: 16,9 kWh/(m²·rok)
• Stav: jako nová a mimořádně udržovaná
• Podlaží: 2
• Pokoje: 7
• Koupelny: 3
• Vytápění: Energeticky úsporné vzduch-voda tepelné čerpadlo a podlahové vytápění v celém domě, včetně sprchových koutů, záložní kuchyně/spíže a technické místnosti
• Zahrada: Ano. Jižně orientovaná zahrada se třemi terasami (jedna z nich krytá) a nezastavitelným výhledem do přírody
• Vestavěná kuchyně: Ano. Hlavní kuchyně s kvalitním vybavením a záložní kuchyně s přístroji značek Miele a Bora
• Garáž: Ano. Izolovaná dvojgaráž s elektrickou bránou a dvěma přímými vstupy do domu (zástupná předsíň a záložní kuchyně/spíže) + 2 venkovní parkovací místa
• Připojení na trojfázové napětí / Příprava pro wallbox v prostorné dvojgaráži – ideální pro elektromobilitu
• Velkorysé, podlahové až ke stropu sahající trojitě zaryté skleněné plochy pro maximální množství světla
• Kvalitní podlahové krytiny a exkluzivní sanitární vybavení
• Elektrické rolety ve všech ložnicích. Solární ochranné zasklení v obývacím a jídelním pokoji
• Prostorová šatna
• Krytá terasa v horním patře
• Dlabačkované příjezdové cesty a automatizovaný kapkový zavlažovací systém pro zahradu a živé ploty
• Na zahradě je instalován robotický sekač Husqvarna® Automower® 435X AWD
Přízemí – Prostorné bydlení ve spojení s přírodou
Otevřený obývací a jídelní prostor tvoří srdce domu. Velkorysé, od podlahy až ke stropu sahající okna zajišťují maximální množství přirozeného světla a vytvářejí plynulé přechody na krytou terasu i venkovní prostory s nezastavitelným výhledem do zeleně. Vysoké stropy dodávají dojem prostornosti a podtrhují architektonickou velkorysost, zatímco nepřímá světla vytvářejí příjemnou a útulnou atmosféru.
Samostatná, kvalitně vybavená kuchyně zaujme moderním designem a vysokou funkčností. Elegantní pracovní deska z Ceasarstone a kvalitní spotřebiče značek Miele a Bora podtrhují exkluzivní nárok. Kuchyni doplňuje také další záložní kuchyně, která může sloužit jako druhá kuchyně nebo praktická spíž.
Druhá obývací místnost nabízí mnohostranné možnosti využití – ideální jako rodinná místnost, dětský prostor nebo mediální místnost. Kromě toho je k dispozici flexibilně využitelný pokoj pro hosty nebo pracovnu, který se výborně hodí pro home office či další ložnici.
Dále se v přízemí nachází hostinská toaleta s přístupem ke sprše, příjemná vstupní hala s prostorou pro šatnu a prostorná technická místnost s denním světlem a vestavěnými skříňovými systémy, které doplňují prostorovou nabídku přízemí.
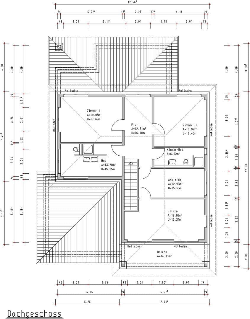
Přízemí – Soukromý ústup s komfortem
Přes elegantní dřevěné schody v teplých ořešákových tónech s moderním skleněným zábradlím a nepřímým osvětlením se dostanete do horního patra. Právě zde se plně projeví vysoce kvalitní architektonický koncept domu.
Horní patro nabízí soukromý ústup s velkorysou hlavní ložnicí pro rodiče a dvěma plnohodnotnými dětskými pokoji, které poskytují dostatek prostoru pro individuální vyžití.
Pro rodiče je ideálním doplňkem šatna s oknem, jež výrazně zvyšuje komfort každodenního bydlení. Dvě luxusně a vysoce kvalitně vybavené koupelny s přístupem ke sprchám zajišťují vysokou úroveň bydlení a komfortu pro celou rodinu.
Krytá terasa s výhledem do zeleně pak představuje další soukromý ústup a zve k odpočinku. Doplňkově se v chodbě nachází otevřený pracovní koutek, který se ideálně hodí jako čtecí koutek nebo pracovní prostor pro home office.
Pozemek a exteriér
Pozemek o rozloze cca 952 m² nabízí výjimečnou kombinaci soukromí, propojení s přírodou a vysoce kvalitní úpravu.
Více teras vytváří různorodé venkovní prostory a harmonicky propojuje vnitřní a vnější prostory.
Speciální poloha na okraji lesa bez zástavby na zadní straně zaručuje trvalý klid, maximální soukromí a výjimečný pocit z bydlení s nezastavitelným výhledem do přírody.
V okolí nemovitosti najdete
Stále hledáte to pravé?
Nastavte si hlídacího psa. Nabídky vybrané na míru dostanete souhrnně 1× denně e-mailem. S Premium profilem máte k ruce hlídačů rovnou 5 a když se něco objeví, informují vás obratem.





























