Prodej domu 7+1 • 153 m² bez realitky, Severní Porýní-Vestfálsko
, Severní Porýní-VestfálskoMHD 1 minuta pěšky • ParkováníPůvabný obytný celkový komplex s potenciálem výnosu: Prostorný duplex s přístavnou bytovou jednotkou
Tato výjimečná nemovitost v Geldern-Vernum spojuje historický půvab budovy z přelomu století s moderní funkčností a mnohostrannými možnostmi využití. Na rozlehlém pozemku o rozloze cca 1.055 m² nabízí tento pečlivě udržovaný objekt atraktivní domov i vynikající investiční příležitost.
Architektura a rekonstrukce
Původní budova, postavená okolo roku 1900, byla v průběhu let důkladně a s péčí udržována. Zvláště je třeba vyzdvihnout kompletní rekonstrukci v roce 2002, renovaci v roce 2015 a nedávné přestavby v roce 2023. Masivní konstrukce s větraným omítkovým obkladem a moderní tepelnou izolací zajišťuje příjemné obytné klima a odpovídá současným energetickým standardům (energetická třída D).
Promyšlené rozdělení prostoru ve dvou obytných jednotkách
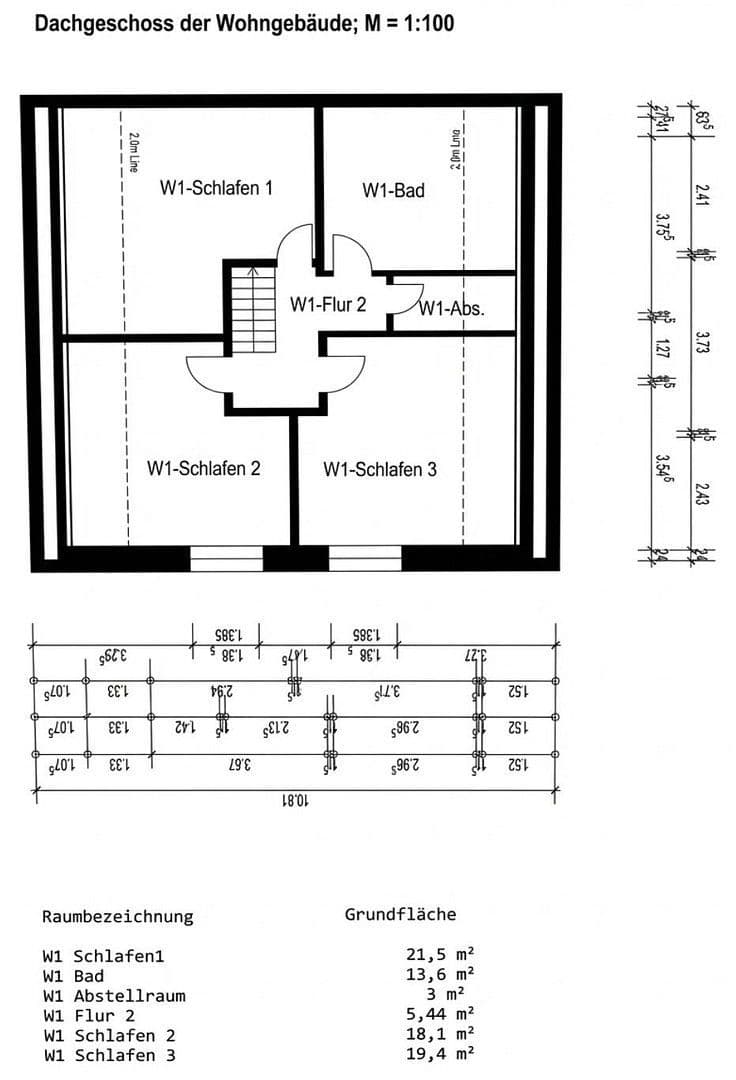
Nemovitost se rozprostírá na celkem cca 153 m² obytné plochy a cca 167,6 m² užitkové plochy, rozdělených do dvou samostatných jednotek:
Hlavní byt (W1): S 5 pokoji na cca 104 m² nabízí tato jednotka prostorný prostor pro rodinu. V přízemí se nachází útulný obývací a jídelní kout, hostinská toaleta a kuchyně. V podkroví jsou umístěny tři ložnice, koupelna a praktická prádelna. Navíc nabízí vysouvací střechové schodiště přístup k dalším skladovacím prostorům.
Přístavná bytová jednotka (W2): Tento moderní, přibližně 43 m² velký dvupokojový byt byl přestavěn v roce 2023 a je plně zařízen. Disponuje kombinovaným obývacím, jídelním a kuchyňským koutem, samostatnou ložnicí a novou koupelnou.
Vybavení a venkovní prostory
Objekt zaujme svou udržovanou základní výbavou.
Příjemná atmosféra: V roce 2024 byl instalován nový krb, který zajišťuje útulné chvíle a splňuje nejnovější ekologické požadavky.
Venkovní prostor: Nemovitost s množstvím ovocných stromů je rájem pro milovníky pobytu venku. Celkem čtyři terasy (z toho tři zastřešené) nabízejí ideální místo pro venkovní posezení kdykoli během dne. Bývalá dílna dnes slouží jako přestavěný venkovní prostor a poskytuje dodatečnou užitkovou plochu.
Parkovací místa: Pro vozidla jsou přímo u domu k dispozici tři parkovací stání.
Ekonomika a využití
Nemovitost se předává v pečlivě udržovaném, pronajatém stavu (od roku 2023 je pronajata). S ročními příjmy z nájmu ve výši 15.600 € (bez příloh) nabízí objekt solidní výnos již od prvního dne.
Domovní technologie: Soukromá malá čistírna odpadních vod
Likvidace odpadních vod probíhá zcela samostatně prostřednictvím vlastní malé čistírny. Jedná se o vysoce kvalitní systém výrobce Uponor (model 3K Plus), který byl odborně instalován v říjnu 2003.
Profesionální údržba: Čistička je pravidelně, dvakrát ročně, udržována odbornou firmou, aby byl zajištěn bezchybný provoz.
Toto technické řešení vám zaručuje nezávislost a bezpečnost při likvidaci odpadních vod na vlastním pozemku.
Klidné bydlení v zeleném srdci Geldern-Vernum
Nemovitost se nachází v atraktivní rezidenční lokalitě Geldern, v idylické části Vernum. Zde se propojuje bydlení v souladu s přírodou s vynikající dostupností k městskému životu.
Exkluzivita a soukromí
Objekt leží na okraji ustálené a velmi udržované obytné zóny. Neformální zástavba zaručuje vysokou míru soukromí a klidu, což umožňuje nerušené vychutnání výhledu do zeleně.
Infrastruktura a každodenní život
Přestože je lokalita klidná, občanská vybavenost je na vynikající úrovni:
Nákupy: Pulsující centrum Geldern s butiky a trhy je dosažitelné za pouhých 6 minut autem nebo 12 minut na kole. Supermarket pro každodenní potřeby je vzdálen jen 4 minuty jízdy autem.
Vzdělání a zdravotní péče: Rodiny těží z dostupnosti mateřských školek a středních škol v okolí. Zdravotní péče je zajištěna místní nemocnicí a řadou specialistů v bezprostřední blízkosti.
Volný čas a příroda
Milovníci přírody si zde přijdou na své. Lokalita je ideální pro dlouhé procházky a cyklistické výlety podél řeky Niers nebo v typické nízkoníderajské krajině. Kromě toho jsou snadno dostupné četné sportovní kluby a rekreační zařízení.
Vynikající mobilita
Dopravní spojení je ideální pro dojíždějící i cestovatele:
MHD: Nádraží Geldern nabízí pravidelné a přímé spoje směrem do Düsseldorfu, Krefeldu a Kleve pomocí "Niers-Express" (RE 10).
Silnice: Díky státním silnicím B9 a B58 máte rychlý přístup na dálnice A40 a A57, což zajišťuje optimální dostupnost jak do Ruhrpothie, tak do nedalekých nizozemských oblastí.
Exkluzivní balíček vybavení: Připraveno k okamžitému užívání bez dodatečných investic!
Výjimečným lákadlem této nabídky je kompletní převzetí udržovaného vybavení. Jelikož je zařízení nedílnou součástí stávajících nájemních smluv, je nemovitost prodávána včetně celého interiéru.
Tím získáte jako kupující nenahraditelnou výhodu – můžete pokračovat v pronájmu bez prodlení či nutnosti dalších investic do vybavení.
Detaily balíčku vybavení
Za atraktivní paušální cenu 10.000 € – která se platí nad rámec kupní ceny nemovitosti – obdržíte rozsáhlý balíček vybavení:
• Moderní vestavěné kuchyně: Obě obytné jednotky jsou vybaveny udržovanými kuchyněmi včetně elektrospotřebičů (hlavní byt z roku 2016, přístavná jednotka z roku 2023).
• Kompletně zařízený přístavný byt: Od útulné pohovky, přes zakázkově vyrobené vestavěné skříně až po kompletní vybavení koupelny a pračku – vše je k dispozici.
• Zakázkové řešení v hlavním bytě: Využijte výhod přesně přizpůsobených vestavěných skříní v ložnici, koupelně a u hostinské toalety.
• Venkovní prostory: Veškeré stavby v rozlehlém venkovním prostoru jsou rovněž zahrnuty v ceně.
Obě obytné jednotky jsou navíc opatřeny samostatnými měřiči pro elektřinu, plyn a vodu.
Daňová výhoda
Kupní cena za vybavení je v kupní smlouvě uvedena zvlášť. To je pro vás ekonomicky atraktivní, jelikož tato částka snižuje základ pro výpočet daňové povinnosti při převodu nemovitosti. Tak investujete přímo do hmotných aktiv a současně šetříte na souvisejících nákladech.
V okolí nemovitosti najdete
Stále hledáte to pravé?
Nastavte si hlídacího psa. Nabídky vybrané na míru dostanete souhrnně 1× denně e-mailem. S Premium profilem máte k ruce hlídačů rovnou 5 a když se něco objeví, informují vás obratem.


























