Pronájem domu 3+1 • 73 m² bez realitkyOldenburg Oldenburg (Oldb) Niedersachsen 26133
Oldenburg Oldenburg (Oldb) Niedersachsen 26133MHD do minuty pěšky • ParkováníOkamžitě k dispozici!
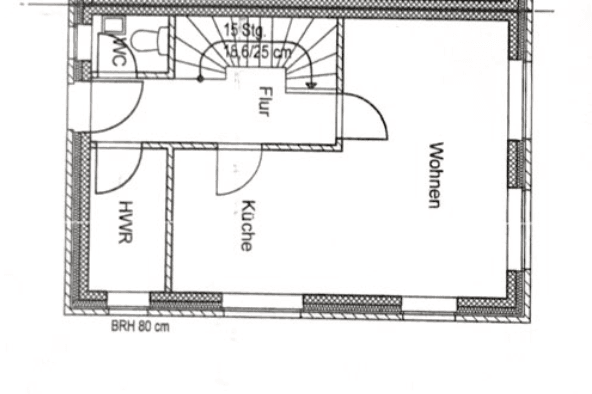
K pronájmu je nabízena udržovaná polovina dvojdomu s přibližně 73 m² obytné plochy, umístěná v klidné rezidenční oblasti Oldenburgu (26133). Dům se rozkládá na přízemí a podkroví a nabízí příjemný, samostatný pocit bydlení.
V přízemí se nachází otevřený obývací-jídelní prostor s integrovanou kuchyní a také hostinská záchodová místnost. Odtud vede přístup na terasu. Podkroví disponuje ložnicí, dalším pokojem (např. pracovnou nebo pokojem pro hosty) a koupelnou s přirozeným denním světlem a sprchou. Navíc je k dispozici půda, kterou lze využít jako úložný prostor.
Polovina dvojdomu se nachází v klidném obytném území v oldenburské čtvrti Kreyenbrück (PSČ 26133). Okolí je charakterizováno rodinnými domy a polovinami dvojdomů spolu s udržovanou obytnou výstavbou a nabízí příjemné, vyzrálé rezidenční prostředí. V bezprostřední blízkosti najdete obchody s potřebami pro každodenní život, supermarkety, pekárny, lékárny a ordinace. Školy, mateřské školy i sportovní a volnočasová zařízení jsou rovněž velmi dobře dostupná. Několik autobusových linek zajišťuje skvělou dopravu do centra Oldenburgu i do dalších městských částí. Nemocnice Oldenburg je odsud dosažitelná během několika minut, což činí lokalitu zvláště atraktivní pro pracovníky ve zdravotnictví. Kombinace klidného bydlení, městské infrastruktury a výborné dostupnosti nabízí vysokou kvalitu bydlení.
Polovina dvojdomu disponuje solidním a udržovaným vybavením. V přízemí jsou položeny dlaždice, které se snadno udržují, zatímco podkroví je vybaveno kobercem. Pokoje jsou světlé a funkčně řešené. Otevřený obývací-jídelní prostor s integrovanou kuchyní tvoří centrální část domu a je zde také vestavěná kuchyň. Navíc je v přízemí k dispozici samostatná hostinská záchodová místnost. Koupelna v podkroví je vybavena sprchou a denním světlem.
Na oknech jsou instalovány rolety, které poskytují ochranu před pohledem i sluncem. Dům je vytápěn pomocí plynového centrálního topení. K nemovitosti dále patří terasa s ochranou soukromí a parkovací místo přímo u domu.
V okolí nemovitosti najdete
Stále hledáte to pravé?
Nastavte si hlídacího psa. Nabídky vybrané na míru dostanete souhrnně 1× denně e-mailem. S Premium profilem máte k ruce hlídačů rovnou 5 a když se něco objeví, informují vás obratem.














