Prodej bytu 3+1 • 101 m² bez realitkyGera Gera Thüringen 07545
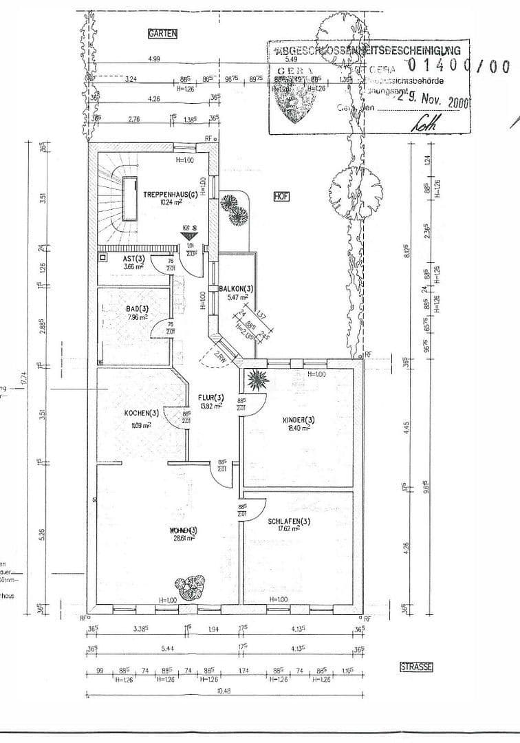
Gera Gera Thüringen 07545MHD 1 minuta pěšky • ParkováníNa prodej je dobře udržovaná 3-pokojová bytová jednotka ve vyhledávané centra města Gera. Byt se nachází v rodinném domě postaveném v roce 2002 a láká svou prostornou dispozicí a centrální polohou.
S přibližně 101 m² obytné plochy nabízí byt tři pokoje, otevřenou kuchyň, koupelnu a tichý balkon. V přízemí se nachází společenská místnost pro kola, dětské kočárky apod. Na půdním patře se nachází oddělená uzamykatelná komora.
Díky centrální poloze jsou obchody, veřejná doprava, lékaři, školy a další zařízení každodenní potřeby dosažitelné pěšky. Autobusová zastávka se nachází bezprostředně u domu. V chráněném vnitrovoří se nachází parkovací místo pro vaše vozidlo.
Současný stav umožňuje okamžité nastěhování bez nutnosti rozsáhlých rekonstrukcí.
V okolí nemovitosti najdete
Stále hledáte to pravé?
Nastavte si hlídacího psa. Nabídky vybrané na míru dostanete souhrnně 1× denně e-mailem. S Premium profilem máte k ruce hlídačů rovnou 5 a když se něco objeví, informují vás obratem.








