Prodej domu 6+1 • 200 m² bez realitkyNiederwihl 95, , Bádensko-Württembersko
Niederwihl 95, , Bádensko-WürttemberskoMHD 3 minuty pěšky • Parkování • GarážTento přívětivý rodinný dům nabízí s přibližně 200 m² obytné plochy a prostorným pozemkem o rozloze 713 m² ideální předpoklady pro komfortní bydlení. Nemovitost se nachází v klidné lokalitě Görwihl-Niederwihl a zaujme promyšleným uspořádáním místností a mnoha možnostmi využití – ideální pro rodiny, mezigenerační bydlení nebo jako příjemná letní rezidence.
Zvláštní předností je samostatně přístupný příčkový byt, který se výborně hodí jako rekreační byt, prostor pro hosty nebo k dlouhodobému pronájmu. Díky tomu získáte další flexibilitu a atraktivní možnosti využití.
Pozemek ležící v atraktivní svahové poloze se rozprostírá na dvou úrovních, což venkovní prostor dodává jedinečnou strukturu a prostornost. Horní úroveň je ideální pro terasu, zahradu nebo útulné posezení, zatímco spodní úroveň poskytuje dodatečný prostor pro volnočasové aktivity, hru či individuální nápady na úpravu. Tak vzniká pestrý venkovní prostor s velkým potenciálem.
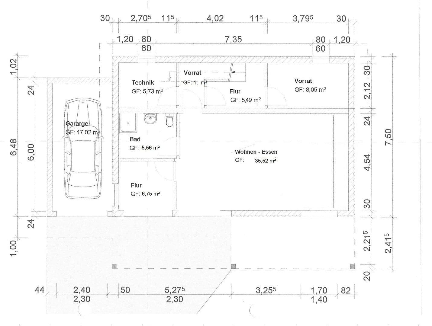
Celkem na třech patrech naleznete 6 dobře rozvržených místností a 3 koupelny, které zajišťují vysoký komfort bydlení. K dispozici je také hostinská toaleta, která výborně doplňuje celkové uspořádání. Dále zde najdete sklep, který poskytuje dodatečný úložný prostor a prakticky rozšiřuje obytnou plochu.
Interiér je udržovaný a nabízí solidní základ pro realizaci vlastních představ a modernizačních záměrů. Velká okna zajišťují světlé a příjemné místnosti s útulnou atmosférou.
Předání nemovitosti je možné ihned.
Dům s velkým šarmem, prostorem a potenciálem – ideální pro ty, kteří hledají všestranný domov s možností navíc pronájmu.
Görwihl je venkovská obec v okrese Waldshut a nabízí klidné bydlení v přírodním prostředí s vysokou rekreační hodnotou. Okolní krajina láká k rozmanitým volnočasovým aktivitám, jako je turistika, cyklistika či prodloužené procházky.
Základní občanská vybavenost je zajištěna obchody s denní potřebou v blízkém okolí. Navíc je zde dobré spojení s veřejnou dopravou: místní autobusové linky spojují Görwihl spolehlivě s okolními obcemi a regionálními centry.
Výhodou je také blízkost švýcarské hranice, která je vzdálena pouhých asi 8 km. Díky tomu máte krátké cesty do Švýcarska – ideální pro dojíždějící pracovníky nebo volnočasové aktivity v sousední zemi.
V hlavním obytném prostoru i v příčkovém bytě je k dispozici moderní vestavěná kuchyň.
Pro útulnou atmosféru se v obou jednotkách postarají kvalitní dřevěné krbové kamna, která v chladných dnech poskytují příjemné teplo a dodávají obytným prostorům přívětivý charakter.
Dalším plusem je dostupné optické připojení, které umožňuje rychlý a stabilní internet – ideální pro práci z domova, streamování či digitální pronájem příčkového bytu.
V okolí nemovitosti najdete
Stále hledáte to pravé?
Nastavte si hlídacího psa. Nabídky vybrané na míru dostanete souhrnně 1× denně e-mailem. S Premium profilem máte k ruce hlídačů rovnou 5 a když se něco objeví, informují vás obratem.

















