
Prodej domu 3+1 • 87 m² bez realitkyGRUNDSTÜCK 800M GRAZ EXKLUSIV NUR FÜR DANWOOD-HAUSBAU Hart bei Graz Steiermark 8075
GRUNDSTÜCK 800M GRAZ EXKLUSIV NUR FÜR DANWOOD-HAUSBAU Hart bei Graz Steiermark 8075MHD 2 minuty pěšky • GarážBungalov: Níže v PDF naleznete několik příkladů cen!
Vážení stavební investoři,
chcete si splnit sen o vlastním bydlení, ale nejste si jisti, který dodavatel je pro vás ten pravý nebo kdo vám může nabídnout dům v požadovaném stylu stavby?
S DAN-WOOD-HOUSE můžete zrealizovat dům svých snů – i když zatím nemáte konkrétní stavební plán. Vyberte si z 130 různých typů domů a upravte si je zdarma podle vlastních představ. Navíc je na výběr z různých typů zdiva.
Jaký skvělý poznatek: Nejde o to, co DAN-WOOD nebo jednotlivé firmy nabízejí, ale jak vypadají vaše individuální představy o vysněném bydlení! Zde vám bude nabídnuto odborné poradenství, které vás nadchne!
Nabízím vám své individuální poradenství pro váš projekt! Začínám s první konzultací, kterou velmi rád/a provedu přímo na vašem stavebním pozemku. Tvar, rozdíl výšek a orientace pozemku jsou tady naprosto klíčové!
Nemáte ještě pozemek? Žádný problém! Rád/a vám poskytnu přehled mnoha skvělých možností, jak lze DAN-WOOD domy zařídit. Je tolik vzrušujících aspektů, které je třeba projednat: typ domu, dispozice, tvar střechy, vytápění, elektroinstalace, zajištění stínu a možné vybavení jako "Smart Home".
Je opravdu důležité znát celkové náklady včetně vzorkování!
S potěšením vám oznamuji, že pro tento účel provedu předběžné vzorkování. Tak si můžete tyto náklady jednoduše naplánovat! Je to opravdu skvělá pomoc! Díky tomu si nejen vytvoříte finanční plán, ale také budete moci hledat financování.
Neváhejte, kontaktujte mě ihned! 0676 5537747
Objednávka katalogu pod názvem "Katalog Serie Today" tatjana.wyss@danwood.at
Při objednávání uveďte prosím svou adresu a telefonní číslo.
Na vašem pozemku nebo v...
Güssing: cca 2 600 m², lokalita zcela rovinná, pozemkové velikosti a umístění pozemků dle vlastního výběru. Velikosti od 500 m² do 1500 m².
Zde najdete stavební pozemky první třídy! V nejlepší lokalitě s dechberoucím výhledem na nádherný hrad Güssing!
Güssing nabízí život, který je do budoucna bezpečný, dostupný a energeticky nezávislý – což činí investici do nemovitosti tam strategickou hodnotnou investicí.
Proč Güssing?
Energetický průkopník a udržitelnost:
Město je energeticky soběstačné a mezinárodně uznávané.
Vysoké pokrytí (přes 85 %) regionální biomasy pro dálkové vytápění vede k stabilním, nízkým nákladům na topení.
Dostupné ceny nemovitostí:
Ceny jsou dosud výrazně příznivější než průměrné ceny v Rakousku, což umožňuje sen o vlastním bydlení s prostornými pozemky.
Silná infrastruktura a kvalita života:
Jako okresní předměstí zaručuje Güssing krátké vzdálenosti a nejlepší občanskou vybavenost.
Plánované velké investice:
Nový vzdělávací kampus a moderní centrum lékařské péče (od roku 2026).
Kulturní centrum (hrad Güssing) a blízkost termálních lázní.
Plná otevřenost S7 přináší Güssingu a jeho obyvatelům značné výhody:
Rychlejší spojení s metropolitními oblastmi: Rychlostní silnice výrazně zkracuje dobu jízdy na dálnici A2 Süd, což výrazně snižuje doby cest do Grazu a Vídně.
Odlehčení regionu: Přesměrovává tranzitní dopravu, která dříve zatěžovala obce jako Fürstenfeld a Rudersdorf, na novou trasu.
Ekonomické stimuly: Nové napojení, mimo jiné přes přípojku u Rudersdorf/Dobersdorf a blízkost napojení Königsdorf, posiluje Güssing jako okresní předměstí a ekonomickou lokalitu díky lepší dostupnosti a podpoře nových průmyslových parků.
Stabilita hodnoty a rozvojový potenciál:
Cílené komunální investice do infrastruktury, oživení centra města a do technologického centra zajišťují dlouhodobou stabilitu hodnoty nemovitostí.
Komunální strategie je zaměřena na zvládání demografických výzev a na to, aby se Güssing stal atraktivním místem pro bydlení a podnikání.
Cílová skupina
Rodiny, které hledají budoucnost, bezpečí a přírodu, stejně jako všichni, kteří si cení nízkých nákladů na energii a ekologické odpovědnosti.
Další pozemky v:
Pozemek, 8323 Kohldorf: Stavební pozemek s dostatkem slunce v východo-rakouském kopcovitém terénu 15 km od Grazu!
Velikost 758 m², kupní cena € 66 000
Pozemek, 8323 Kohldorf: Slunný stavební pozemek v Kohldorfu, 15 km východně od Grazu!
Velikost 787 m², kupní cena € 69 000
Pozemek, 8311 Markt Hartmannsdorf: Plně inženýrsky připravený, slunný stavební pozemek v Markt Hartmannsdorf
Velikost 920 m², kupní cena € 53 000
Pozemek, 9335 Lölling Graben: Stavební pozemek s úchvatným výhledem do malebného karintského horského prostředí
Velikost 1001 m², kupní cena € 50 000
Pozemek, 8075 Hart u Grazu: Slunný pozemek na okraji Grazu
Velikost 1980 m², kupní cena € 475 000
Pozemek ke koupi ve Stainzu, slunný pozemek na okraji obce Stainz
Velikost 825 m², kupní cena € 149 000
Mezi vlastníkem pozemku a stavitelem domu neexistuje žádné ekonomické propojení.
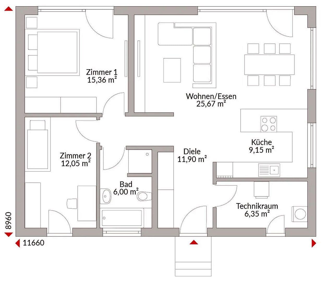
BUNGALOV, 3 pokoje, koupelna, WC, exkluzivní vybavení!
Pozemek, 500 m², 1000 m², 1500 m² – dle přání k dispozici.
V ceně:
Hotové provedení "na klíč" (nábytek nastěhovat a bydlet!)
Doručení a montáž od horní hrany fundace
Střešní konstrukce zesílená proti sněhové zátěži
Vzduch-voda tepelné čerpadlo, podlahové vytápění
Decentralizovaná větrání obytných prostor s rekuperací tepla (v létě chladí)
Elektrické rolety v celém domě
Veškeré podlahové krytiny podle vašeho výběru
Veškeré sanitární vybavení podle vašeho výběru.
Příprava na fotovoltaiku
Kompletní balíček bez starostí
VOLITELNĚ: Vlastní práce je samozřejmě možná!
Poradenství - prodej, paní Tatjana Wyss
+43 676553 77 47, tatjana.wyss@danwood.at
Okamžitá informace či první konzultace!
Další nabídky
https://qr.scan.page/uploads/pdf/1751712478803_686335a001f76.pdf
Požádejte o stavební popis a katalogy!
K tomu je nutné uvést telefonní číslo, e-mailovou adresu a adresu.
Mnohokrát děkuji!
V okolí nemovitosti najdete
Stále hledáte to pravé?
Nastavte si hlídacího psa. Nabídky vybrané na míru dostanete souhrnně 1× denně e-mailem. S Premium profilem máte k ruce hlídačů rovnou 5 a když se něco objeví, informují vás obratem.












