Prodej bytu 5+1 • 85 m² bez realitkyHamburg Horn Hamburg 22111
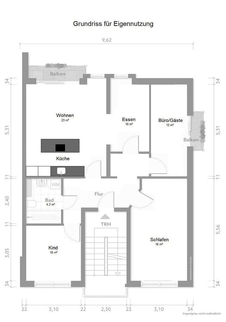
Hamburg Horn Hamburg 22111MHD 4 minuty pěškyNa prodej je rozsáhle modernizovaný 5-pokojový vlastnický byt se dvěma balkony, vhodný jak k vlastnímu užívání, tak i jako investice (viz půdorys č. 2). Nedávno dokončené práce zahrnovaly kompletní přestavbu celého bytu, včetně koupelny a kuchyně, mimo jiné s omítnutými a broušenými zdmi, velkoformátovými dlaždicemi 60×120 cm a 80×80 cm a LED stropními reflektory v chodbě a koupelně. Nová a otevřená kuchyně je vybavena moderními bezúchytkovými frontami, myčkou nádobí, indukční varnou deskou, kombinací chladničky a mrazáku, troubou umístěnou v moderní výšce a mnoha dalšími zařízeními.
Domovní poplatek je momentálně do předpokládaného roku 2027 dočasně zvýšen na 574 €, protože společenství vlastníků tímto způsobem spoří na plánovanou rekonstrukci balkonů. Poté se domovní poplatek vrátí na standardních 308 €, včetně všech běžných položek, jako jsou tvorba rezerv, poplatky za správu, náklady na vytápění a další provozní náklady.
Budova z roku 1958 je ve velmi udržovaném stavu, mnoho vlastníků zde bydlí sami a pravidelně ji udržuje.
Byt se nachází v městské části Hamburg Horn. Potřeby každodenního života jsou v bezprostřední blízkosti. Stanice metra U2/U4 Legienstraße je dosažitelná pěšky za pouhých 12 minut. Cesta do centra (hlavní nádraží) zabere jen dalších 12 minut. Díky centrální poloze je tato trasa snadno zvládnutelná i na kole.
V okolí nemovitosti najdete
Stále hledáte to pravé?
Nastavte si hlídacího psa. Nabídky vybrané na míru dostanete souhrnně 1× denně e-mailem. S Premium profilem máte k ruce hlídačů rovnou 5 a když se něco objeví, informují vás obratem.













