
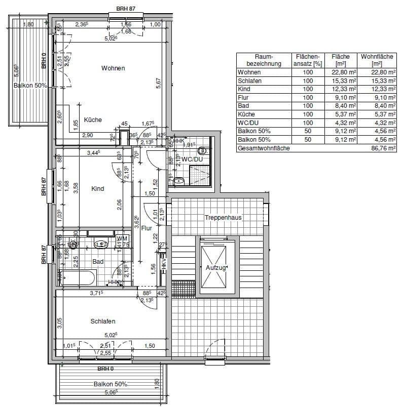
Pronájem bytu 3+1 • 87 m² bez realitkyAn der alten Gärtnerei 28 Berlin Mariendorf Berlin 12109
An der alten Gärtnerei 28 Berlin Mariendorf Berlin 12109MHD 4 minuty pěšky • Výtah • ParkováníTento nádherný 3-pokojový byt byl dokončen v roce 2024 a nachází se v moderní nové čtvrti „Hugos“. Nemovitost zaujme svým novým, současným stavem i promyšleným a prostorným dispozicím.
Světlý obývací a jídelní kout tvoří srdce bytu. Další dva pokoje se skvěle hodí jako ložnice, dětský pokoj nebo pracovna, což činí byt obzvláště atraktivním pro páry nebo malé rodiny hledající více prostoru.
K dispozici je také venparkovací místo, které toto atraktivní nabídku pohodlně doplňuje.
Nemovitost se nachází v berlínské čtvrti Mariendorf na mimořádně atraktivním místě – přímo naproti Britzer Garten. Tato těsná blízkost k jednomu z nejkrásnějších parků Berlína poskytuje ideální podmínky pro odpočinkové procházky, sportovní aktivity a uvolněné chvíle v přírodě.
Čtvrť samotná dále vyniká svou výbornou infrastrukturou: V areálu se přímo nachází mateřská škola i obchodní řetězec EDEKA, což umožňuje krátké denní cesty. Kromě toho mají obyvatelé k dispozici soukromé hřiště v rámci čtvrti, které dětem poskytuje bezpečný prostor pro hraní a objevování.
I spojení s veřejnou dopravou je vynikající: Zastávka autobusu se nachází přímo před čtvrtí a zajišťuje pohodlné a rychlé spojení s okolními částmi města i s berlínským centrem.
Byt je pronajímán plně zařízený, což poskytuje ihned nastěhovatelné domov s vysokým komfortem bydlení.
Moderní vestavěná kuchyně je kompletně vybavená a neopomene žádné detaily. Disponuje kvalitními elektrospotřebiči – včetně myčky nádobí, lednice, sporáku a mikrovlnné trouby – a nabízí ideální podmínky pro každodenní použití.
Obzvláště komfortní se prezentuje i koupelnová vybavenost: Byt disponuje dvěma moderními koupelnami. Jedna je vybavena vanou, která zve k relaxaci, zatímco druhá má bezbariérový sprchový kout a tak zajišťuje další pohodlí v běžném životě.
Pro příjemné klima v bytě přispívá podlahové vytápění, které ve všech místnostech zajišťuje rovnoměrné a útulné rozložení tepla.
Kromě toho je k dispozici samostatná sklepní místnost, která poskytuje praktický úložný prostor pro osobní věci.
V okolí nemovitosti najdete
Stále hledáte to pravé?
Nastavte si hlídacího psa. Nabídky vybrané na míru dostanete souhrnně 1× denně e-mailem. S Premium profilem máte k ruce hlídačů rovnou 5 a když se něco objeví, informují vás obratem.


















