Prodej bytu 3+kk • 200 m² bez realitkyPforzheim Hohenwart Baden-Württemberg 75181
Příjezd. Nádech. Být doma.
Tento neobvyklý loftový byt v přízemí je stvořen pro lidi, kteří touží po prostorném, komfortním a přírodní bydlení – a přitom nechtějí ztratit výhodnou dostupnost a praktičnost každodenního života.
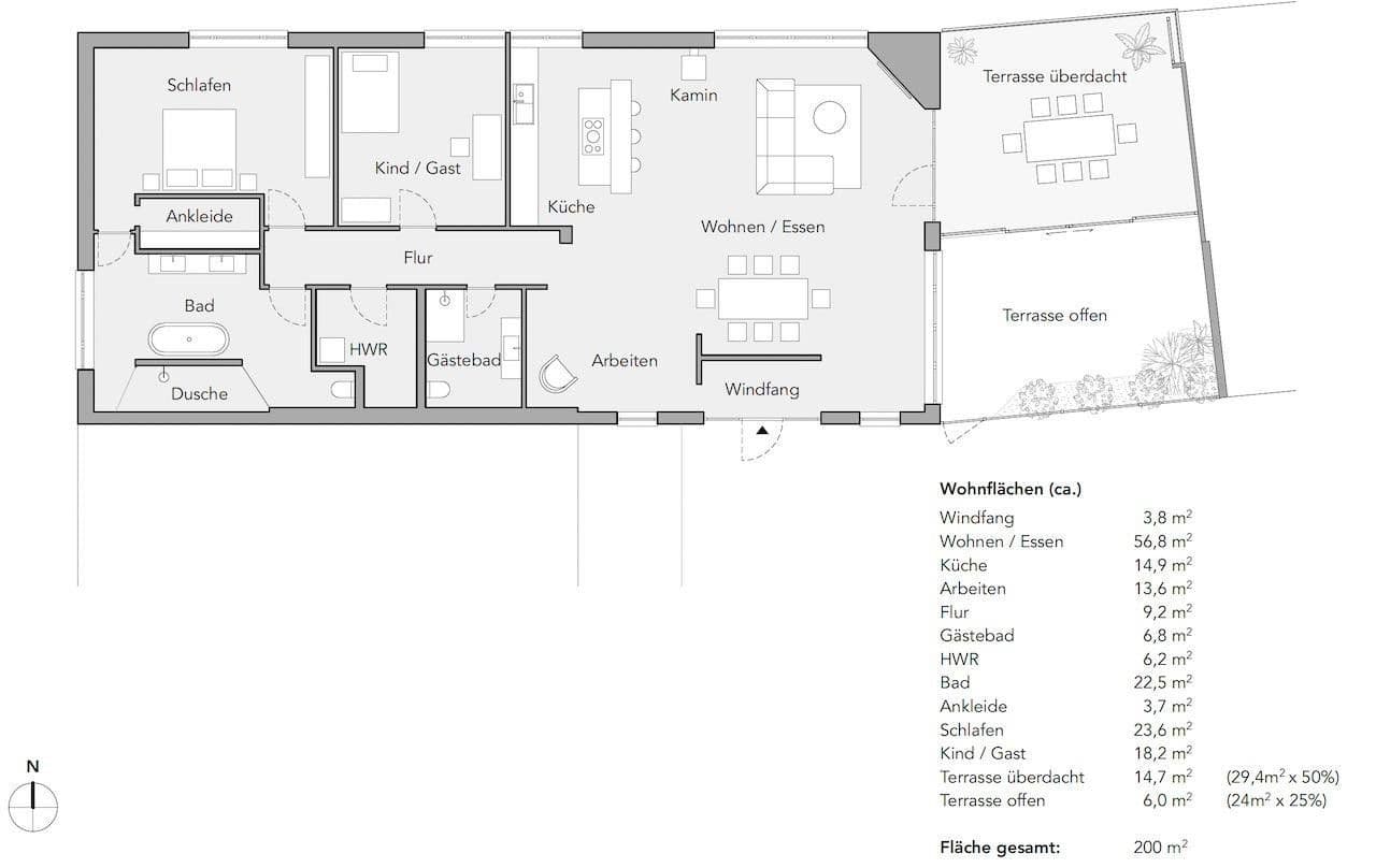
Přes vjezd do nádvoří se dostanete k zasazenému, klidně situovanému loftu. Po vstupu vlastním vstupem do domu se na přibližně 200 m² obytné plochy rozprostírá otevřený, světlým denním světlem naplněný obytný koncept s 3metrovými stropy, velkými skleněnými plochami a dostatkem prostoru pro individuální život. Zde se bydlení, stolování, vaření i práce plynule prolínají. Krbová kamna dodávají atmosféru a kvalitní vybavení zajišťuje příjemný pocit z bydlení.
Všechno je na jedné úrovni: Klidná ložnice s šatnou a vlastní koupelnou tvoří soukromou oázu. Další místnost s vlastní sprchou se ideálně hodí jako pokoj pro hosty, pro mladistvé nebo jako pracovnu. Samostatná technická místnost doplňuje promyšlený prostorový koncept.
Zvláštním lákadlem je částečně krytá, chráněná terasa – téměř celoročně využitelná a přirozené rozšíření venkovního obytného prostoru.
Dvě auta zaparkujete pohodlně ve dvouvrtém garáži, která se nachází přímo naproti vstupu do domu. Nabíjecí stanice (wallbox) a fotovoltaická elektrárna podtrhují moderní, na komfort zaměřený přístup tohoto domova.
Domov pro lidi, kterým je důležitá kvalita života a kteří vědomě oceňují prostor, klid a pohodlí.
Hohenwart, čtvrť na jih od Pforzheimu, leží v klidu, obklopena zelení a přitom má dobré spojení. Příroda, možnosti turistiky a volnočasových aktivit začínají přímo za dveřmi, zatímco možnosti nákupu, lékařská péče a města Pforzheim, Karlsruhe i Stuttgart jsou dobře dostupné.
Místo leží idylicky a rodinně přívětivě na okraji severního Schwarzwaldu. Okolí je charakteristické zelenými loukami, lesy a idylickými turistickými stezkami, které vybízejí ke procházkám a aktivitám na čerstvém vzduchu. Lázně Bad Liebenzell, Bad Wildbad, Bad Herrenalb nebo Schömberg jsou přímo za dveřmi. Zvláštní lákadlo, zejména pro milovníky golfu, představuje golfový klub Bad Liebenzell, do kterého se autem dostanete za 15 minut. Mateřská škola, základní škola, vesnický obchod, venkovská hostina a centrum „Hohenwart-Forum“ (hotel a konferenční centrum) se nacházejí přímo ve vesnici.
Lékaři a veškeré obchody denní potřeby se nacházejí v okolních obcích Huchenfeld, Schellbronn nebo Neuhausen. Všechno je dosažitelné autem za přibližně 10 minut. Centrum Pforzheimu je vzdálené jen krátkou jízdu autobusem nebo autem. Nabízí řadu nákupních možností, restaurací, kulturních akcí, sportovních vyžití a veškerou lékařskou péči. Jsou zde k dispozici všechny typy škol, včetně vysoké školy ekonomie, techniky a designu.
- Soukromí díky zasazené poloze a vlastním vchodu
- Bezbariérové, otevřené a moderní bydlení
- Loftový pocit díky výšce stropu cca 3 m
- Velký obývací, jídelní a kuchyňský prostor s dubovou parketou
- Krbová kamna „Hotbox“ od Wodtke
- Moderní vestavěná kuchyň s vysoce kvalitními značkovými spotřebiči
- Dvouvrtní garáž s wallboxem pro elektromobil
- Samostatná koupelna pro hosty se sprchou
- Technická místnost pro pračku a sušičku
- Elektrická žaluzie
- Terasa s velkou krytou a bočně chráněnou částí
- Fotovoltaická elektrárna o výkonu 8,2 kWp
- Suterénní místnost o výměře 7 m²
Modernizace
2010: Kompletní rekonstrukce a přestavba na loftový byt
2015: Výměna centrální topení na olejové za zemní plyn
2021: Rekonstrukce celého příjezdu do nádvoří a garáže
2021: Přepracování terasy (podlahové prkna, příčkové stěny)
2021: Nové vstupní dveře s lepší tepelnou a vloupací ochranou
2021: Instalace wallboxu v dvojgaráži (11 kW)
2022: Rekonstrukce koupelny pro hosty
2023: Uvedení fotovoltaické elektrárny do provozu (8,2 kWp)
Společné náklady:
Na první pohled se společné náklady ve výši 879 eur/měsíc mohou zdát poněkud vysoké. Vzhledem k prostorné obytné ploše však činí 4,39 eura/m², což je v souladu s moderními bytovými jednotkami.
V okolí nemovitosti najdete
Stále hledáte to pravé?
Nastavte si hlídacího psa. Nabídky vybrané na míru dostanete souhrnně 1× denně e-mailem. S Premium profilem máte k ruce hlídačů rovnou 5 a když se něco objeví, informují vás obratem.














