Pronájem domu 7+1 • 150 m² bez realitkyWaldblickstr. 30, , Bavorsko
Waldblickstr. 30, , BavorskoMHD 5 minut pěšky • Parkování • GarážDiese moderne Neubau-Doppelhaushälfte mit ca. 220 m² Gesamtfläche bietet viel Platz zum Wohlfühlen, Arbeiten und Leben.
Tento moderní novostavěný dvojdům s celkovou rozlohou cca 220 m² nabízí spoustu prostoru pro pohodlný život, práci a volný čas.
Das Haus ist hochwertig ausgestattet, energieeffizient (Wärmepumpe & Fußbodenheizung in allen Etagen) und verfügt über einen großen Garten sowie eine Doppelgarage.
Dům je vybavený špičkovým materiálem, energeticky úsporný (tepelná čerpadla a podlahové vytápění na všech patrech) a disponuje velkou zahradou i dvojitou garáží.
Raumaufteilung:
Rozložení místností:
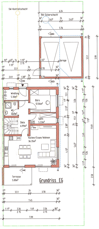
Erdgeschoss (ca. 75 m²):
Přízemí (cca 75 m²):
- großzügiger Wohn-/Essbereich mit Zugang zur Terrasse & Garten
- prostorný obývací/jídelní prostor s přístupem na terasu a do zahrady
- offene Küche
- otevřená kuchyň
- Büro oder Gästezimmer
- kancelář nebo hostinský pokoj
- Duschbad
- koupelna se sprchou
- Speisekammer
- spíž
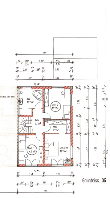
Obergeschoss (ca. 75 m²):
Patro (cca 75 m²):
- 3 Schlafzimmer
- 3 ložnice
- großes Bad mit Badewanne
- velká koupelna s vanou
- heller Flur
- světlá chodba
Kellergeschoss (ca. 70 m²):
Suterén (cca 70 m²):
- vollständig ausgebaut, beheizt & mit separatem Eingang
- zcela zařízený, vytápěný a se samostatným vchodem
- ideal nutzbar für große Kinder, Großeltern, Büro oder Homeoffice
- ideální využití pro dospělé děti, prarodiče, kancelář nebo domácí kancelář
- heller Wohn-/Essbereich
- světlý obývací/jídelní prostor
- 2 weitere Zimmer
- 2 další místnosti
- modernes Duschbad
- moderní koupelna se sprchou
Simbach am Inn liegt idyllisch an der Grenze zu Österreich und bietet gleichzeitig eine hervorragende Verkehrsanbindung.
Simbach am Inn se klidně nachází na hranici s Rakouskem a zároveň nabízí vynikající dopravní spojení.
Die A94 ermöglicht eine schnelle Verbindung nach München in ca. 1 Stunde.
Dálnice A94 umožňuje rychlé spojení do Mnichova za cca 1 hodinu.
Einkaufsmöglichkeiten, Schulen, Kindergärten und medizinische Versorgung sind vor Ort.
Obchodní možnosti, školy, mateřské školy a zdravotní péče jsou v místě k dispozici.
Die umliegende Natur bietet zahlreiche Freizeitmöglichkeiten – von Radwegen entlang des Inns bis zu Ausflügen ins nahegelegene Österreich.
Okolní příroda poskytuje řadu možností pro volnočasové aktivity – od cyklostezek podél řeky Inn po výlety do nedalekého Rakouska.
- Neubau, Fertigstellung 2025
- Novostavba, dokončení v roce 2025
- ca. 220 m² Gesamtfläche (inkl. ausgebautem Souterrain)
- cca 220 m² celkové plochy (včetně upraveného suterénu)
- Fußbodenheizung in allen Etagen
- podlahové vytápění na všech patrech
- energieeffiziente Wärmepumpe
- energeticky úsporné tepelné čerpadlo
– Hochwertige Fliesen & Bodenbeläge
– kvalitní dlaždice a podlahové krytiny
– Moderne Bäder mit ebenerdigen Duschen
– moderní koupelny s bezbariérovými sprchami
- große Terrasse mit Garten
- velká terasa se zahradou
- Doppelgarage inklusive
- včetně dvojité garáže
– Bezugsfertig ab sofort
– K nastěhování ihned
– Doppelgarage + Stellplätze
– dvojitá garáž + parkovací místa
– Wärmepumpe (niedrige Betriebskosten)
– tepelné čerpadlo (nízké provozní náklady)
- Glasfaseranschluss
- připojení optickým internetem
V okolí nemovitosti najdete
Stále hledáte to pravé?
Nastavte si hlídacího psa. Nabídky vybrané na míru dostanete souhrnně 1× denně e-mailem. S Premium profilem máte k ruce hlídačů rovnou 5 a když se něco objeví, informují vás obratem.















