Prodej domu 5+1 • 217 m² bez realitkyGRUNDSTÜCK MIT SEEBLICK EXKLUSIV NUR FÜR DANWOOD-HAUSBAU Millstatt Kärnten 9872
GRUNDSTÜCK MIT SEEBLICK EXKLUSIV NUR FÜR DANWOOD-HAUSBAU Millstatt Kärnten 9872MHD do minuty pěškyPOINT 217 S ARCHITEKTURÁLNÍM PROHLÁŠENÍM
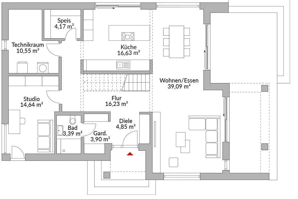
Jako kulisa vás tato dům přivítá s vyvýšenou vstupní částí a dveřmi, které vytvářejí prostor pro očekávání. Okenice ve střeše – nápadný prvek, slib.
Okna dotýkající se podlahy nechávají světlo volně proudit a prostory dýchat. Kuchyň – otevřená, vstřícná – se stává prodloužením obývacího prostoru, zatímco posuvné dveře otevírají cestu na terasu.
Studio v přízemí – útočiště, ateliér, pokoj pro hosty. Prostory, které usnadňují každodenní život, aniž by ho ovládaly.
A nahoře? Ložnice jako útočiště. S prostupnou šatnou, exkluzivní koupelnou, dvojitým umyvadlem – s možností volně stojící vany. Místo, které inspiruje.
Na vašem pozemku nebo v…
Güssing: cca 2 600 m², terén zcela rovinatý. Velikosti pozemků a jejich umístění jsou volně volitelné. Rozměry od 500 m² do 1500 m².
Zde naleznete stavební pozemky extra třídy! V nejlepší lokalitě a s úchvatným výhledem na nádherný hrad Güssing!
Güssing nabízí život šetrný k životnímu prostředí, ekonomicky dostupný a energeticky nezávislý, což z investice do nemovitosti zde činí strategicky hodnotný aktiva.
Proč Güssing
Energetický průkopník a udržitelnost:
Město je energeticky soběstačné a mezinárodně uznávané.
Vysoké pokrytí (více než 85 %) regionální biomasy dálkovým vytápěním přináší stabilní a výhodné náklady na topení.
Ekonomicky dostupné ceny nemovitostí:
Ceny jsou stále výrazně nižší než průměr v Rakousku, což umožňuje sen o vlastním domově s prostornými pozemky.
Silná infrastruktura a kvalita života:
Jako okresní předměstí zaručuje Güssing krátké docházkové vzdálenosti a nejlepší občanskou vybavenost.
Plánované velké investice:
Nový vzdělávací kampus a moderní lékařské centrum (od roku 2026).
Kulturní centrum (hrad Güssing) a blízkost termálních lázní.
Úplné uvedení S7 do provozu přinese Güssingu a jeho obyvatelům značné výhody:
Rychlejší napojení na metropolitní centra: Rychlostnice výrazně zkracuje cestu na dálnici A2 směrem na jih, čímž se výrazně snižuje doba dojezdu do Grapfu a Vídně.
Uvolnění regionu: Nasměruje tranzitní dopravu, která předtím výrazně zatěžovala obce jako Fürstenfeld a Rudersdorf, po nové trase.
Ekonomické impulzy: Nové napojení, mimo jiné přes příjezd u Rudersdorf/Dobersdorf a blízkost napojení na Königsdorf, posiluje Güssing jako okresní předměstí a ekonomické centrum díky lepší dostupnosti a podpoře nových podnikatelských parků.
Stabilita hodnoty a potenciál rozvoje:
Cílené obecní investice do infrastruktury, oživení městského jádra a technologického centra zajišťují dlouhodobou stabilitu hodnoty nemovitostí.
Obecní strategie se zaměřuje na zvládnutí demografických výzev a etablování Güssingu jako atraktivního místa k bydlení i podnikání.
Cílová skupina
Rodiny hledající budoucnost, bezpečí a přírodu, stejně tak všichni, kteří kladou důraz na nízké náklady na energii a ekologickou odpovědnost.
Další pozemky v:
Pozemek, 8323 Kohldorf: Stavební pozemek s dostatkem slunce v hornatém kraji východního Štýrska, 15 km od Grapfu!
Rozloha 758 m², prodejní cena 66 000 €
Pozemek, 8323 Kohldorf: Slunný stavební pozemek v Kohldorfu, 15 km východně od Grapfu!
Rozloha 787 m², prodejní cena 69 000 €
Pozemek, 8311 Markt Hartmannsdorf: Plně zpevněný, slunný stavební pozemek v Markt Hartmannsdorf
Rozloha 920 m², prodejní cena 53 000 €
Pozemek, 9335 Lölling Graben: Stavební pozemek s nádherným výhledem v malebném Kärntner pohoří
Rozloha 1001 m², prodejní cena 50 000 €
Pozemek, 8075 Hart bei Graz: Slunný pozemek před branami Grapfu
Rozloha 1980 m², prodejní cena 475 000 €
Pozemek ke koupi ve Stainzu: Slunný pozemek na okraji Stainzu
Rozloha 825 m², prodejní cena 149 000 €
Mezi vlastníkem pozemku a stavitelem domu neexistuje žádné ekonomické propojení.
VISION – Stavba na klíč a popis prací – Domy na základové desce!
Rozsah prací
STROPNÍ VÝŠKA: Přízemí 3,05 m, podkroví 2,67 m
Technika
Technika, která usnadňuje bydlení. Technologický balíček Today 3BL kombinuje moderní technologii tepelného čerpadla s prostorným zásobníkem teplé vody a inteligentním větracím systémem. Výsledek: domov, který se sám stará o příjemné klima – teplý v zimě, svěží v létě, efektivní po celý rok. Podlahové vytápění zajišťuje útulné teplo v každém pokoji, zatímco centrální větrání s rekuperací tepla šetří energii a zároveň poskytuje neustále čerstvý vzduch. Technologický balíček, který dokonale spojuje komfort, efektivitu a budoucí připravenost.
Elektrické žaluzie
Žaluzie od DANWOOD jsou dokonalým doplňkem k energeticky úsporné technologii stavby od DANWOOD. Chrání před horkem v létě, udržují teplo v domě v zimě a zároveň poskytují kdykoliv soukromí a bezpečnost. S elektrickým ovládáním nebo chytrým systémem se dají pohodlně a intuitivně používat – komfort, který oceníte každý den. Stručně řečeno: U DANWOOD jsou žaluzie volitelným, ale technicky dokonale integrovatelným prvkem – elektrické, odolné a ideální pro moderní architekturu.
Sanitární vybavení:
Sprcha – bezpečná, pohodlná a ideální pro děti i dospělé
Závěsné WC – snadno se čistí, hygienické, vhodné pro rodiny
Umyvadlo
Vysoce kvalitní armatury – odolné, snadno ovladatelné, termicky stabilní
Volitelně dle modelu:
Koupelna – perfektní pro děti, odpočinek nebo společné večerní rituály
Dvojité umyvadlo – žádné shonění během rána
Skryté armatury – bezpečné, elegantní, snadno se čistí
Vše je navrženo tak, aby usnadnilo každodenní život a zároveň zůstalo dlouho krásné.
Malířské práce
Stěny a stropy – připravené k nastěhování. Všechny vnitřní stěny a stropy budou provedeny v standardním provedení na klíč. To znamená:
• Hladké, zardebované a broušené povrchy
• Bílá finální úprava vysoce kvalitní dispersní barvou
• Čistý, jednotný vzhled ve všech obytných místnostech. DANWOOD již dodává hotový povrch.
• Žádné viditelné spáry či přechody díky průmyslové preciznosti
Tak bude dům ihned obyvatelný, aniž by bylo nutné provádět další malířské práce.
Podlahy
Obytné a ložnicové prostory – teplé, robustní, vítající!
Všechny obytné a ložnicové prostory budou vybaveny vysoce kvalitními, snadno udržovatelnými podlahovými krytinami, které spojují teplo, komfort a praktickou využitelnost. Standardní provedení (dle modelu):
• Vysoce kvalitní vinylová podlaha designu v dřevěném vzhledu
• Odolná, tichá, příjemná na chůzi
• Ideální pro rodiny, domácí mazlíčky a každodenní použití
• Harmonické barevné řešení (světlá dub, přírodní dub, šedý dub – dle výběru v Design Center Pinkafeld)
Volitelné:
• Laminát v prémiové kvalitě
• Masivní parkety (za příplatek)
• Alternativní designové linie (betonový vzhled, tmavý dřevěný vzhled, teplé přírodní odstíny)
Poznámka: Všechny ceny domů jsou uvedeny od horní hrany základové desky. Obrázky mohou zobrazovat volitelné speciální vybavení.
V okolí nemovitosti najdete
Stále hledáte to pravé?
Nastavte si hlídacího psa. Nabídky vybrané na míru dostanete souhrnně 1× denně e-mailem. S Premium profilem máte k ruce hlídačů rovnou 5 a když se něco objeví, informují vás obratem.


















