Prodej domu 5+1 • 217 m² bez realitkyGRUNDSTÜCK FERNLICK EXKLUSIV NUR FÜR DANWOOD-HAUSBAU Lölling Graben Lölling Graben Steiermark 9335
GRUNDSTÜCK FERNLICK EXKLUSIV NUR FÜR DANWOOD-HAUSBAU Lölling Graben Lölling Graben Steiermark 9335MHD 3 minuty pěškyPOINT 217 S ARCHITEKTONICKÝM PROHLÁŠENÍM
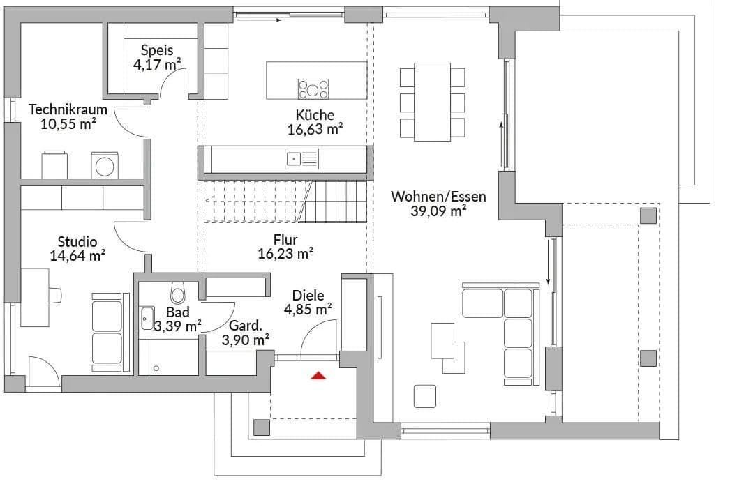
Jako jevištní kulisa vás tento dům přivítá s vyvýšenou vstupní částí a dveřmi, které vytvářejí prostor pro očekávání. Okna ve štítu – nápadný prvek, slib. Okna, která sahají až k podlaze, nechávají proudit světlo a umožňují prostorem "dýchat". Kuchyně – otevřená, lákavá – se spojuje s obývacím prostorem, zatímco posuvné dveře otevírají cestu na terasu.
Ateliér v přízemí – útočiště, atelier, pokoj pro hosty. Prostory, které usnadňují každodenní život, aniž by ho dominovaly.
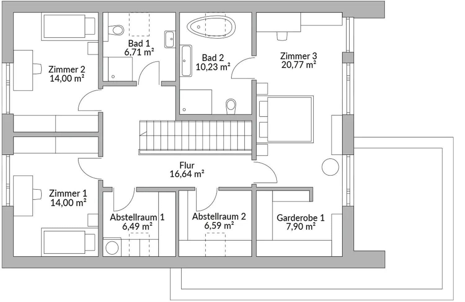
A nahoře? Ložnice jako útočiště. S prostorem, ve kterém se volně pohybujete, s exkluzivní koupelnou, dvojitým umyvadlem – a s možností volně stojící vany. Místo, které inspiruje.
Na vašem pozemku nebo v…
Güssing: Přibližně 2 600 m², pozemek zcela rovinatý. Velikosti i umístění pozemků jsou na výběr. Rozměry od 500 m² do 1500 m².
Toto jsou stavební pozemky z extra třídy! V nejlepší lokalitě a s dechberoucím výhledem na nádherný hrad Güssing!
Güssing nabízí život, který je připraven na budoucnost, cenově dostupný a energeticky nezávislý v zeleném prostředí, což z investice do nemovitosti zde činí strategickou hodnotovou investici.
Proč Güssing
Energetický průkopník a udržitelnost:
Město je energeticky nezávislé a mezinárodně uznávané.
Vysoké pokrytí (přes 85 %) regionálním biomasovým dálkovým vytápěním vede ke stabilním a nízkým nákladům na vytápění.
Dostupné ceny nemovitostí:
Ceny jsou stále výrazně nižší, než je rakouský průměr, což umožňuje splnění snu o vlastním domě s prostornými pozemky.
Silná infrastruktura a kvalita života:
Jako okresní předměstí zaručuje Güssing krátké vzdálenosti a nejlepší zázemí.
Plánované velké investice:
Nový vzdělávací kampus a moderní centrum pro lékaře (od roku 2026).
Kulturní centrum (hrad Güssing) a blízkost termálních lázní.
Plná otevření S7 přinese Güssingu a jeho obyvatelům značné výhody:
• Rychlejší napojení na metropolitní oblasti: Rychlostní silnice výrazně zkracuje dobu jízdy k dálnici A2 Süd, čímž se výrazně zkracují časy cest do Grazu a Vídně.
• Odlehčení regionu: Přesměrovává průjezdovou dopravu, která dříve zatěžovala obce jako Fürstenfeld a Rudersdorf, na novou trasu.
• Ekonomické impulzy: Nové napojení, mimo jiné přes odbočku u Rudersdorf/Dobersdorf a blízkost připojení u Königsdorfu, posiluje Güssing jako okresní předměstí a lokalitu pro podnikání díky lepší dostupnosti a podpoře nových průmyslových parků.
Stabilita hodnot a potenciál rozvoje:
Cílené komunální investice do infrastruktury, oživení centra města a technologického centra zajišťují dlouhodobou stabilitu hodnoty nemovitostí.
Městská strategie se zaměřuje na řešení demografických výzev a etablování Güssingu jako atraktivního sídla pro bydlení a podnikání.
Cílová skupina
Rodiny, které hledají budoucnost, bezpečnost a přírodu, a také všichni, kteří kladou důraz na nízké náklady na energii a ekologickou odpovědnost.
Další pozemky v:
Pozemek, 8323 Kohldorf: Stavební pozemek s bohatým slunečním zářením v kopcovitém regionu východního Štýrska, 15 km od Grazu!
Velikost: 758 m²; Koupní cena: 66 000 €
Pozemek, 8323 Kohldorf: Slunný stavební pozemek v Kohldorfu, 15 km východně od Grazu!
Velikost: 787 m²; Koupní cena: 69 000 €
Pozemek, 8311 Markt Hartmannsdorf: Plně zajištěný, slunný stavební pozemek v Markt Hartmannsdorf
Velikost: 920 m²; Koupní cena: 53 000 €
Pozemek, 9335 Lölling Graben: Stavební pozemek s úchvatným výhledem do dálky v malebném karnevalském horském prostředí Korutan
Velikost: 1001 m²; Koupní cena: 50 000 €
Pozemek, 8075 Hart bei Graz: Slunný pozemek před branami Grazu
Velikost: 1980 m²; Koupní cena: 475 000 €
Pozemek ke koupi ve Stainzu: Slunný pozemek na okraji obce Stainz
Velikost: 825 m²; Koupní cena: 149 000 €
Mezi vlastníkem pozemku a stavitelem domu neexistuje žádné ekonomické spojení.
VISION Klíčový stavební a výkonnostní popis – Domy na základové desce!
Rozsah služeb
VÝŠKA PODOLOVÍ: Přízemí 3,05 m, podkroví 2,67 m
Technika
Technika, která usnadňuje bydlení
Technický balíček Today 3BL kombinuje moderní tepelná čerpadla s prostorným zásobníkem teplé vody a inteligentním ventilačním systémem. Výsledek: domov, který se automaticky stará o příjemnou atmosféru – teplo v zimě, svěžest v létě, efektivně po celý rok. Podlahové topení zajišťuje útulné teplo v každém prostoru, zatímco centrální ventilace s rekuperací tepla šetří energii a zároveň dodává stálý přísun čerstvého vzduchu. Technický balíček, který dokonale spojuje komfort, efektivitu a připravenost do budoucna.
Elektrické rolety
Rolety od DANWOOD jsou dokonalým doplňkem energeticky efektivní výstavby DANWOOD. Chrání v létě před horkem, udržují v zimě teplo v domě a zároveň zajišťují soukromí a bezpečnost. S elektrickým ovládáním nebo chytrým řízením je lze pohodlně a intuitivně používat – komfort, který pocítíte každý den. Stručně řečeno, u DANWOOD jsou rolety volitelné, ale technicky perfektně integrovatelné – elektrické, odolné a ideální pro moderní architekturu.
Sanitární vybavení:
• Sprcha – bezpečná, pohodlná a ideální pro děti i dospělé
• Zavěšené WC – snadno se čistí, hygienické, vhodné pro rodiny
• Umyvadlo
• Kvalitní armatury – odolné, snadno ovladatelné, s teplotní stabilitou
• Volitelně dle modelu:
◦ Vana – ideální pro děti, relaxaci nebo společné večerní rituály
◦ Dvojité umyvadlo – bez ranního slovního shonu
◦ Zabudované armatury – bezpečné, elegantní, snadno čistitelné
Vše je navrženo tak, aby usnadnilo každodenní život a zároveň zůstalo krásné po dlouhou dobu.
Malířské práce
Stěny a stropy – připraveny k nastěhování. Všechny vnitřní stěny a stropy budou ve standardu provedeny „na klíč“. To znamená:
• Hladké, tmelované a broušené povrchy
• Bílá finální úprava vysoce kvalitní disperzní barvou
• Čistý, rovnoměrný vzhled ve všech obytných prostorech. DANWOOD již dodává hotovou povrchovou úpravu
• Žádné viditelné spáry či přechody díky průmyslové preciznosti
Díky tomu je dům ihned obyvatelný, aniž by bylo nutné provádět další malířské práce.
Podlahy
Obytné a ložnicové prostory – teplé, robustní, příjemné!
Všechny obytné a ložnicové místnosti budou vybaveny kvalitními, nenáročnými podlahovými krytinami, které spojují teplo, komfort a praktickou každodennost.
Standardní provedení (v závislosti na modelu):
• Kvalitní designový vinylový podlahový kryt ve vzhledu dřeva
• Odolný, tichý, příjemný na chůzi bosýma nohama
• Ideální pro rodiny, domácí mazlíčky a každodenní využití
• Harmonické barevné varianty (světlý dub, přírodní dub, šedý dub – dle výběru v Design Center Pinkafeld)
Volitelné:
• Laminát ve prémiové kvalitě
• Parkety z masivního dřeva (za příplatek)
• Alternativní designové linie (betonový vzhled, tmavý dřevěný vzhled, teplé přírodní tóny)
Poznámka: Všechny ceny domů jsou uváděny od horní hrany základové desky. Ukázkové obrázky mohou zobrazovat volitelné speciální vybavení.
V okolí nemovitosti najdete
Stále hledáte to pravé?
Nastavte si hlídacího psa. Nabídky vybrané na míru dostanete souhrnně 1× denně e-mailem. S Premium profilem máte k ruce hlídačů rovnou 5 a když se něco objeví, informují vás obratem.


















