
Prodej bytu 2+1 • 46 m² bez realitkyAlte Waisenstiftung 7 Schwerin Werdervorstadt Mecklenburg-Vorpommern 19055
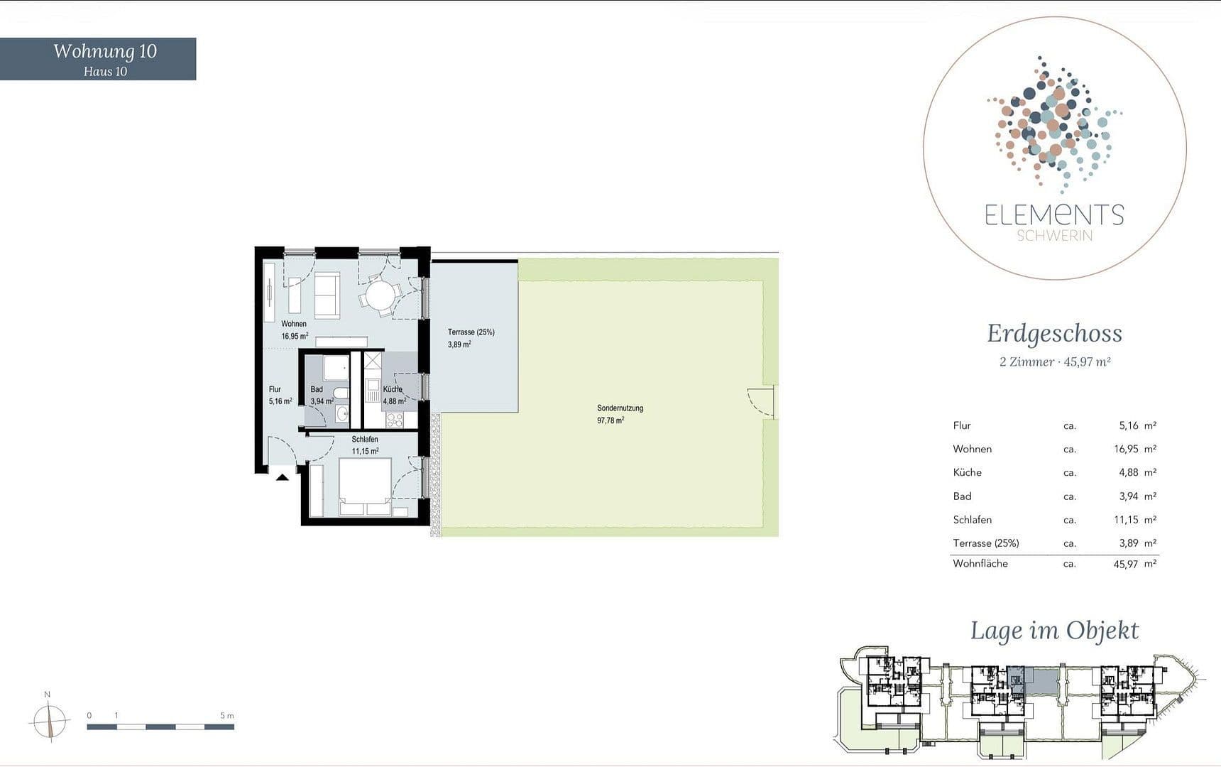
Alte Waisenstiftung 7 Schwerin Werdervorstadt Mecklenburg-Vorpommern 19055MHD 5 minut pěšky • Výtah • GarážTento atraktivně zařízený a plně vybavený novostavbový 2-pokojový byt v přízemí s velkou terasou a vlastním zahrádkou se nachází v první stavební linii u Schweriner See v nové části města mezi Werdervorstadt a městským přístavem ve Schwerinu.
Přímý vstup přes velkou terasu s orientací na jihovýchod do vlastní zahrady je ideální pro relaxační chvíle venku.
Velké zahradní pozemky se středověkou ovocnou zahradou obklopují nezastavěnou jižní stranu komplexu a mohou být využívány všemi spoluvlastníky.
Elegantní zařízení bytu, kvalitní parkety z masivního dřeva a moderní vybavení vytvářejí v prostorném obývacím a jídelním pokoji elegantní a útulnou atmosféru.
Podlahová okna s tepelně izolačním zasklením zajišťují dostatek světla v místnostech, které lze zatemnit elektrickými roletami.
Ložnice bytu se promění v útulné útočiště. Je vybavena manželskou postelí, televizí a velkou skříní.
I koupelna s koutovou sprchou překvapuje svým kvalitním vybavením.
Plně zařízený byt vytváří díky promyšlenému dispozici a prostornému venkovnímu prostoru výjimečnou kvalitu života.
Zažijte moderní komfort bydlení v elegantním prostředí vlastnického bytu, který lze také využít jako schválenou rekreační nemovitost, na jedinečné lokalitě ve Schwerinu.
Bydlíte v preferované oblasti nové rezidenční čtvrti přímo u Schweriner See. Za přibližně 15 minut pěšky dosáhnete centra města, zámku a zámkového parku nebo muzea a divadla.
Hlavní město spolkové země se svou rezidenční architekturou z 19. století stojí za to vidět. Celý rezidenční soubor Schwerin nese od roku 2024 titul "UNESCO světové dědictví".
Krátkými cestami získáte rozmanité zážitky a najdete zde také dostatek restaurací a obchodů.
Kulturní, sportovní a zdravotnické zařízení jsou v bezprostřední blízkosti a veřejná doprava je ve Schwerinu dobrou alternativou k autu.
Při dlouhých procházkách nebo cyklistických výletech ve volném čase můžete krásně objevovat město Schwerin, přírodu a četná nedaleká jezera.
Schweriner See a ostatní nedaleká jezera jsou ideální pro příjemný odpočinek u vody nebo ve vodě. Pokud máte rádi slanou vodu, Baltské moře je dostupné po dálnici směrem na Wismar za 30 minut.
Byt je nový, má podlahové vytápění, tepelně izolační zasklení a venkovní žaluzie ve všech místnostech. V obytné a ložnicové části je instalována ochrana proti hmyzu.
Kvalitně vestavěná kuchyň vybavená indukcí, troubou/mikrovlnkou, vestavěným digestořem a varnou deskou s troubou, veškerý nábytek a televizory byly vybrány a umístěny s důrazem na vysokou užitnou hodnotu. Pohovka v obývacím pokoji má i rozkládací funkci.
Parkety z masivního dřeva, osvětlení místností a celkové doplňky vytvářejí jedinečný pocit z bydlení. Díky stukovým lištám v celém bytě působí výška místností 2,68 m velmi harmonicky.
K technickému vybavení bytu patří WLAN a domovní interkom s video funkcí.
Terasa bytu je osvětlena a zahradní nábytek pro 6 osob je k dispozici. Zahrada o rozloze cca 100 m² tvoří trávník k lehnutí a lze ji dále upravit podle vlastních představ.
Úložný prostor v suterénu byl vybaven policemi a připojením pro pračku. Je přístupný po schodech nebo výtahem.
Na vlastním podzemním parkovacím místě (S13) je auto v bezpečí. Připojení pro instalaci wallboxu je na parkovacím místě připraveno.
V okolí nemovitosti najdete
Stále hledáte to pravé?
Nastavte si hlídacího psa. Nabídky vybrané na míru dostanete souhrnně 1× denně e-mailem. S Premium profilem máte k ruce hlídačů rovnou 5 a když se něco objeví, informují vás obratem.



























