
Pronájem bytu 2+1 • 56 m² bez realitkyZáhřebská, Brno - Žabovřesky, Jihomoravský kraj
Máte o nabídku zájem?
Ušetřete 19 500 Kč na provizi a komunikujte se všemi majiteli.
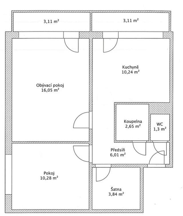
Nabízím k pronájmu krásný a světlý 2+1 byt umístěný v panelové budově, která se pyšní skvělou dostupností díky výtahu. Byt o rozloze 56 m² se nachází ve čtvrtém a zároveň posledním podlaží, což zajišťuje maximální klid a výhled bez rušivých okolních sousedství.
Interiér bytu je ve velmi dobrém stavu a vyznačuje se částečnou vybaveností, díky čemuž si můžete prostor okamžitě začít přizpůsobovat podle vlastních představ. Dispozice bytu je funkčně řešená, což podtrhuje jeho praktičnost pro bydlení jednotlivce, páru či malé rodiny.
K bytu je rovněž náležející 2 lodžie o rozloze 7 m², kde si můžete vychutnat ranní kávu či odpolední relaxaci.
Dům je zateplen, nová střecha, v bytě jsou plovoucí podlahy, klimatizace, plastová okna s žaluziemi a sítěmi proti hmyzu, odhlučněné vstupní dveře, nové rozvody elektřiny v mědi, vymalováno bílou barvou.
Nabídka je určena pro ty, kteří hledají pohodlné a klidné bydlení bez starostí se spolubydlením či parkováním.Byt je volný ihned.
Nájem uzavírán na rok tedy dobu určitou s možností opakovaného prodloužení
1 měsíční nájem vratná kauce, energie budou převedeny na nájemce (elektřina a plyn).
Pokud vás zaujala nabídka, neváhejte mě kontaktovat a domluvíme si osobní prohlídku.
V okolí nemovitosti najdete
Máte o nabídku zájem?
Ušetřete 19 500 Kč na provizi a komunikujte se všemi majiteli.
Stále hledáte to pravé?
Nastavte si hlídacího psa. Nabídky vybrané na míru dostanete souhrnně 1× denně e-mailem. S Premium profilem máte k ruce hlídačů rovnou 5 a když se něco objeví, informují vás obratem.














