
Prodej domu 5+kk • 225 m² bez realitkyMünchen Am Hart Bayern 80937
Nemovitost byla postavena v roce 2008 masivní konstrukcí a zaujme svou vysokou kvalitou a světlým designem. V přízemí a prvním patře jsou položené olejované podlahy z masivního dřeva, zatímco koupelny, kuchyně a chodby jsou vybaveny elegantními břidlicovými podlahami.
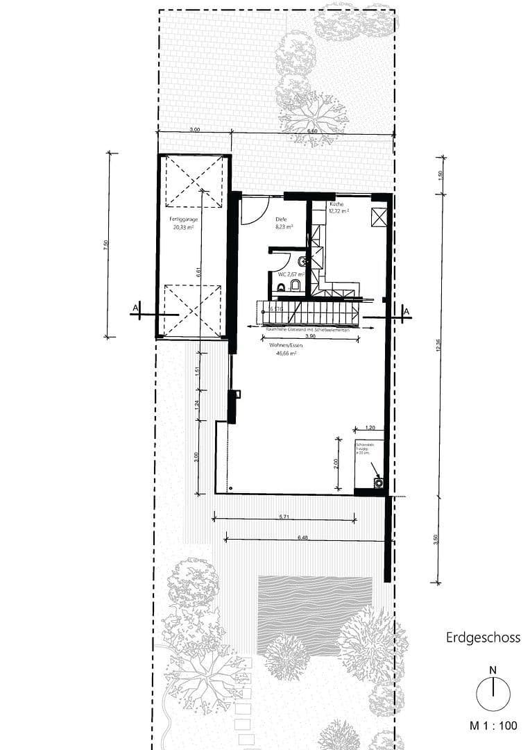
Velkorysý obývací/jídelní pokoj (cca 45 m²) ohromí skleněnou stěnou širokou 9 m, výškou prostoru 2,50 m a jihozápadní orientací – ideální pro slunečné hodiny. Merbau parkety a moderní otevřený krb vytvářejí příjemnou a stylovou atmosféru. Třímetrové posuvné skleněné dveře vedou na 30 m² velkou dřevěnou terasu s integrovaným rybníkem a sousední jižní zahradou. Elektricky ovládaná markýza Markilux zajistí podle potřeby příjemné zastínění.
V přízemí se dále nachází hostinské WC s pisuárem a předsíň s věšáky. Světlá a kvalitní kuchyně Plana nabízí díky podlahovým oknům přímý přístup do předzahrady – praktické například při vykládání nákupů.
Další patra jsou přístupná pohodlnými a rovnými betonovými schody. Zasklená schodiště propouštějí spoustu denního světla a vytvářejí pocit otevřeného prostoru.
V suterénu se nachází přibližně 35 m² velký hobby pokoj s denním světlem, parketovou podlahou, podlahovým vytápěním a prostorovou výškou 2,50 m – plnohodnotný obytný prostor. Suterén dále nabízí prostornou prádelnu s podlahovým vytápěním a zvedací pumpou a dvě další sklepní místnosti, které poskytují dostatek úložného prostoru.
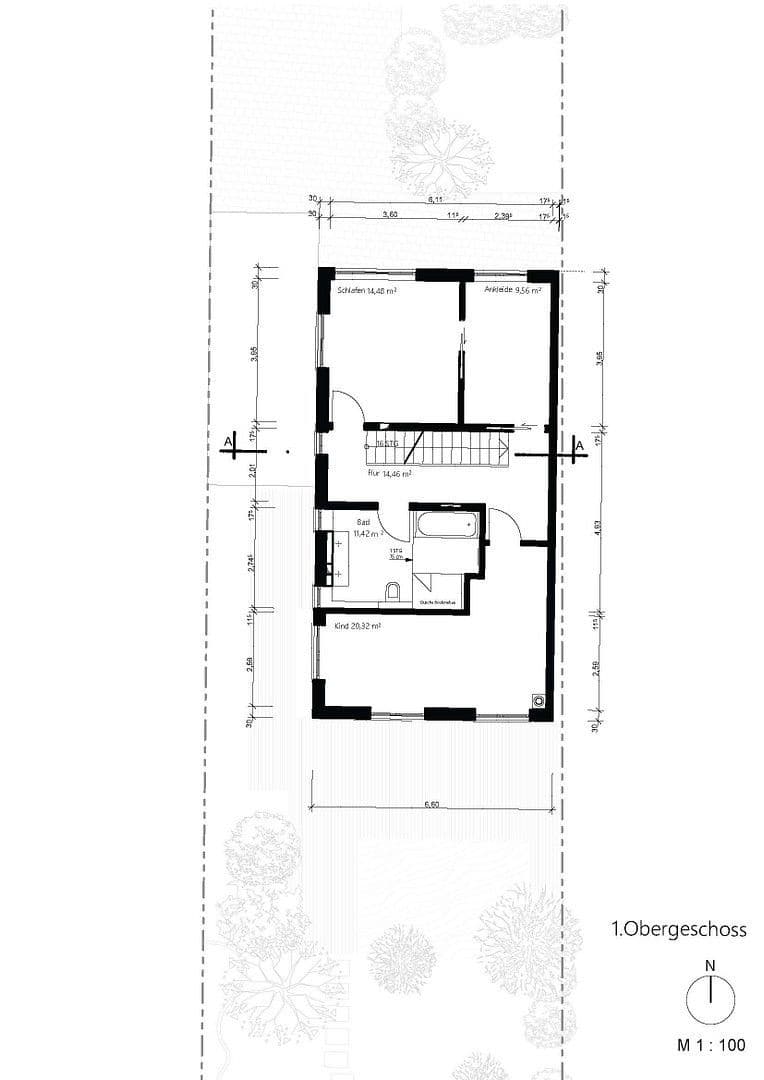
V prvním patře se nachází prostorná hlavní ložnice doplněná samostatnou šatnou. Na jižní straně pak leží prostorný dětský pokoj, který svou orientací nejen že je prosvětlený, ale také nabízí nádherný výhled na terasu pod ním a sousední zahradu. Podlahová okna ve všech místnostech zajišťují světlou, přátelskou atmosféru a přímé propojení s přírodou.
Stylově zařízená koupelna toto patro dokončuje. Disponuje bezprahovým sprchovým koutem i prostornou vanou – ideální pro relaxaci. Moderní umyvadlový stolek se velkým zrcadlem a promyšleným integrovaným úložným prostorem je navržen pro dvě osoby a spojuje design s vysokou funkčností.
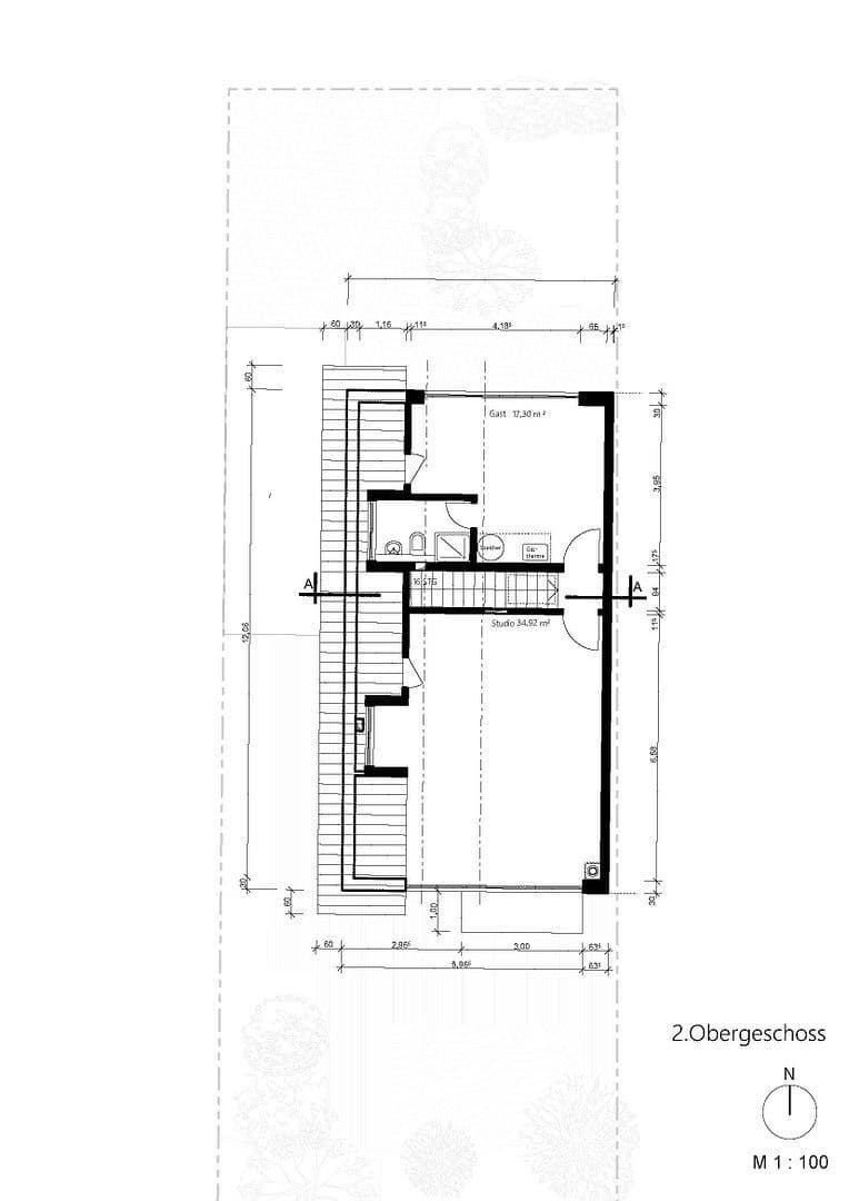
Ve druhém patře, v podkrovních studiích, čekají na návštěvníky okna vysoká 4,5 m a předem orientovaný velký balkon na jih. Výhled vede přes přilehlé zahrady do zeleně a je vidět i Olympiaturm. Jižní studio obsahuje také uzamykatelný úložný prostor ve šikmé střeše. Severní studio mimo jiné obsahuje plynové topení se solární termikou a z něj se dostanete do druhé koupelny, která rovněž disponuje sprchou. Obě studia mají velké vikýře.
Nemovitost se nachází v příjemně klidné obytné oblasti na severu Mnichova, jen několik minut chůze od BMW FIZ (Centrum výzkumu a inovací). Napojení na veřejnou dopravu je excelentní: autobusy i stanice metra Am Hart (linka U2) jsou dosažitelné pěšky za asi 7 minut. V bezprostředním okolí se rovněž nachází základní škola a gymnázium, lékařské centrum Nord a Euro-průmyslový park s četnými obchodními možnostmi. Díky blízkosti dálnice A99 existuje také přímé propojení na regionální dopravní síť. Centrum Mnichova je autem dosažitelné přibližně za 10 minut, což činí lokaci obzvláště atraktivní pro dojíždějící profesionály a rodiny.
Samostatná kupní cena za garáž je 40.000 €.
V okolí nemovitosti najdete
Stále hledáte to pravé?
Nastavte si hlídacího psa. Nabídky vybrané na míru dostanete souhrnně 1× denně e-mailem. S Premium profilem máte k ruce hlídačů rovnou 5 a když se něco objeví, informují vás obratem.

























