
Prodej domu 5+1 • 122 m² bez realitky, Země Sársko
, Země SárskoMHD 3 minuty pěšky • Parkování • GarážPrivátní prodej – bez provizí!
Tento bungalov, postavený ve typickém stylu 70. let a udržovaný, se nachází na konci slepé ulice v žádoucí obytné čtvrti Ormesheim. Celá budova je masivně postavena a s výjimkou garáže má plně sklepněnou základnu. Veškeré obytné prostory jsou na jednom patře, a proto je dům ideální jak pro mladé, tak pro starší.
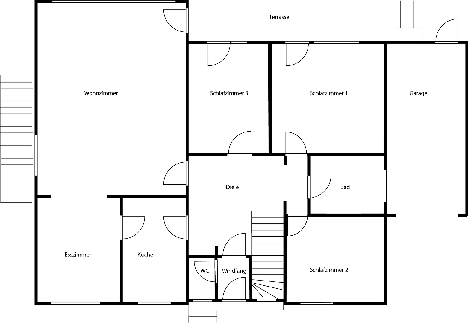
Několik schodů vede k vstupním dveřím. V předsíni se nachází větrací prostor s přístupem k hostinskému záchodu. Rovnou se dostanete do prostorné haly, ze které jsou přístupné všechny místnosti. Po levé straně, míjející vestavěnou skříň, pokračujete do kuchyně a dále do přibližně 50 m² velkého obývacího a jídelního pokoje, kde velké květinové okno nabízí nádherný výhled do zahrady.
V přízemí se dále nachází 3 ložnice a koupelna s oknem a přístupnou sprchou. Obývací pokoj a dvě z ložnic mají pak vstup na terasu a do zahrady.
V suterénu pak najdete dvě místnosti a koupelnu se sprchou (cca 45–60 m²), které poskytují další možnosti využití domu. Zbytek plochy v suterénu tvoří prádelna, kotelna, sklep na palivo a ještě 3 další sklepní místnosti.
Zahrada je krásně upravená a díky trávníku, ochranným rostlinám a stromovému porostu je téměř zcela skrytá.
K přístavbě garáže patří elektrická garážová vrata a garáž má rovněž výstup na terasu. Na pozemku se dále nachází další dvě parkovací místa.
Lokalita:
Obec Mandelbachtal se nachází v srdci biosférického rezervátu Bliesgau. Zejména část Ormesheim nabízí klidné a rodinné bydlení v Sasku s dobrou infrastrukturou – obchody, lékaři i školy jsou v dosahu.
Doprava do Saarbrückenu je zajištěna jak autem, tak veřejnou dopravou. Všechny dálkové spoje jsou rychle dostupné.
Četné možnosti volnočasových aktivit v přírodě, jako jsou pěší a cyklistické stezky, vybízejí k odpočinku.
Dům se nachází v žádoucí obytné lokalitě nad středem Ormesheimu, na konci slepé ulice. Je jen několik minut od centra a zároveň obklopen rozsáhlou přírodou.
Na první pohled:
• Obytná plocha: cca 122 m² + cca 45–60 m² v suterénu
• Pozemek: 714 m²
• Rozložení místností:
Přízemí: obývací a jídelna s přístupem na terasu a do zahrady, kuchyně s vestavěnou kuchyňskou linkou, hala se skříňovým kójem, 3 ložnice (dvě z nich s přístupem na terasu a do zahrady), koupelna s oknem a přístupnou sprchou, větrací prostor a hostinský záchod.
Suterén: ložnice/kancelář, společenská místnost, hala, koupelna se sprchou, 3 sklepní místnosti, prádelna, kotelna a sklep na palivo.
• Okna: vysoce kvalitní dřevěno-hliníková okna s dvojskly, uzamykatelnými klikami a elektrickými žaluzie
• Vytápění: nízkoteplotní olejové topení (rok 1998) – kotel z roku 2011; průměrná roční spotřeba oleje za 10 let cca 2 700 litrů/rok
• Garáž/parkovací místo: 1 garáž, 2 parkovací místa
• Zvláštnost: satelitní anténa, připojení na optické vlákno a plynové připojení v domě
Energetický štítek je momentálně v přípravě. Pravděpodobně se bude hodnotit jako energetická účinnost F (?).
Tato nabídka je určena výhradně seriózním zájemcům o koupi. Realitním makléřům zdvořile žádáme, aby se nedotazovali.
Rádi vám poskytneme další informace a domluvíme prohlídku.
V okolí nemovitosti najdete
Stále hledáte to pravé?
Nastavte si hlídacího psa. Nabídky vybrané na míru dostanete souhrnně 1× denně e-mailem. S Premium profilem máte k ruce hlídačů rovnou 5 a když se něco objeví, informují vás obratem.





























